









Le seguenti pagine propongono le esperienze progettuali condotte in Africa Subsahariana dall’architetto André Ravéreau (Limoges 1919 – Aubenas 2017). I suoi progetti, realizzati e non, sono sempre fortemente integrati al contesto e rappresentano una delle molte declinazioni del Movimento Moderno a sud del Sahara.
Architetto francese, poco noto in Italia, Ravérau si forma all’École des beaux-arts prima a Rouen, poi a Parigi dove diventa allievo di Auguste Perret, dal quale impara ad apprezzare soprattutto il particolare costruttivo (Cfr. Ravéreau 2007, pp.15-16). Sebbene più vicino agli insegnamenti di Perret, Ravéreau si appassiona all’opera di Le Corbusier, tanto da decidere di ripercorre le sue tracce, recandosi in Algeria nel 1949 per studiare l’architettura sahariana della valle del M’Zab, resa nota all’Occidente per la prima volta grazie ai carnet de voyage dello stesso Le Corbusier (1931-33)[1].
André Ravéreau, architetto viaggiatore «alla ricerca di occasioni per affermarsi in modo autonomo nel proprio mestiere» (De Maio 2020, p. 6), dopo varie peregrinazioni nel Mediterraneo, si trasferisce ad Algeri negli anni Sessanta. In quel periodo la capitale algerina è in pieno fermento culturale – preludio alla stagione delle indipendenze – ed è al contempo il crocevia di architetti e urbanisti del Movimento Moderno provenienti dal Vecchio Continente[2]. Tra questi Ravéreau, il quale lavorerà tra Algeri e il M’Zab per circa vent’anni, ricoprendo cariche importanti tra cui quella di Architecte en chef des monuments historiques d’Algérie (Architetto a capo della soprintendenza per i beni architettonici e storici d’Algeria) dal 1965 al 1973. Sotto sua iniziativa la valle del M’Zab verrà inserita nell’elenco dei Patrimoni dell’umanità dell’UNESCO nel 1982.
Nella compagine di architetti europei che operano in Africa dal secondo dopoguerra, Ravéreau dimostra una profonda autonomia dagli stilemi modernisti, giungendo a elaborare un linguaggio personale strettamente legato alla propria esperienza biografica. A partire dagli anni Settanta il lavoro lo porterà a spingersi oltre il deserto algerino, in Africa Subsahariana, dove riceve commesse per edifici scolastici e sanitari in Mali, Mauritania e Burkina Faso, paesi liberati dal colonialismo, ma ancora sotto l’influenza francese; partecipa poi al concorso per il progetto dell’Ambasciata francese in Uganda. Nella scoperta di questa “nuova Africa”, Ravéreau porta con sé l’esperienza appresa nel deserto algerino e dall’architettura tradizionale mozabita, che trasferisce nei suoi progetti Subsahariani, approdando a nuove soluzioni sempre fortemente contestualizzate a un luogo specifico.
Dalla lezione del M’Zab al Sahel, il Centro di sanità di Mopti
Il Centro di sanità di Mopti, ideato tra1970 e 1971 e costruito tra 1974 e 1976, avvia una nuova stagione di edifici realizzati da André Ravéreau: innanzitutto per il confronto con un contesto geografico climatico e con una struttura urbana diversi da quelli dall’area sahariana, principale terreno di prova delle sue sperimentazioni professionali.
Philippe Lauwers, architetto che collabora diversi anni con Ravéreau, descrive così l’esperienza a Mopti (2003, p. 109): «altra regione, altro clima, altra sfida!»[3]. Inoltre in questa occasione Ravéreau ha modo di testare per la prima volta la tecnica costruttiva del banco che non aveva potuto utilizzare in Algeria[4]. Commissionato dal Ministère de la Santé du Mali e dal Ministère de l’Aménagement et du Développement du Mali, il progetto rientra in un programma finanziato da FED, Fonds Européen de Développent[5]. Ravéreau fu scelto dalla commissione FED proprio perché grazie alla sua «esperienza pluriennale di lavoro in Algeria […] in particolare nella regione del M’Zab, calda e arida, era particolarmente predisposto e preparato per cogliere i vincoli climatici, sociali ed economici della situazione saheliana» (Khan eds. 1984, p. 37).
Del resto l’esperienza nel M’Zab, sebbene costituisca un caso studio specifico geograficamente contestualizzato, permise a Ravéreau di comprendere le relazioni tra clima e architettura; egli stesso afferma (Ravéreau 2003b, p. 18) riferendosi al primo viaggio studio nel M’Zab, effettuato nel 1949:
Ho capito ciò che l’umidità arrecava alla Normandia solo dopo aver visto ciò che il clima secco apportava al M’Zab. Attraverso la differenza, il fenomeno del M’Zab mi è apparso più chiaro. Ho quindi lavorato per il mio diploma di Laurea sulla Normandia dove avevo vissuto dall’età di dodici anni.
Da quel momento, le riflessioni sul rapporto tra architettura e clima, che egli sviluppa nel corso degli anni anche attraverso la pratica professionale, lo spingeranno costantemente nella ricerca di soluzioni adatte di volta in volta a un nuovo contesto climatico.
Il Centro di sanità di Mopti sorge lungo un importante e trafficato asse viario della città, Avenue de l’Indépendance, più precisamente in un lotto di circa 4600 metri quadrati, sito tra la grande Moschea del venerdì – che si trova esattamente di fronte al lotto, al di là dell’Avenue – e il fiume Bani, una diramazione del Niger.
Ravéreau dunque deve confrontarsi, da un lato con il denso tessuto urbano di Mopti, dall’altro con il diretto affaccio sul fiume, ma soprattutto con l’imponente Moschea in terra cruda caratterizzata da slanciati minareti e pinnacoli. Pertanto, i nuovi edifici del Centro sanitario, nel rispetto di tale importante preesistenza, hanno un’altezza modesta, di un piano massimo due. Così, per chi arriva a Mopti dal fiume il nuovo edificio appare come un basamento in terra cruda su cui sorge la moschea.
Il Centro di sanità è costituito da un complesso di edifici a loro volta composti da “cellule” aggregate di diversa dimensione. Ravéreau sperimenta già una simile soluzione compositiva in alcuni progetti per il M’Zab, dove reinterpreta la cellula abitativa mozabita e ne riadatta il sistema di aggregazione urbana alla scala dell’edificio. Ad esempio nell’Hôtel des postes di Ghardaïa (1966-67) la matrice della cellula abitativa viene ora ripetuta – ma mai copiando esattamente la “cellula tipo” – ora dilatata, al fine di coniugare nella stessa architettura gli spazi di un edificio pubblico con quelli domestici e privati dell’abitazione del direttore delle poste.
Il complesso sanitario di Mopti, leggermente arretrato rispetto all’Avenue de l’Indépendance, è separato da questa tramite un muro in banco con due varchi di accesso – uno a nord-ovest del lotto, l’altro più interno a sud-est –, che conducono un asse centrale pedonale, in modo da evitare l’accesso diretto dall’affollata e polverosa arteria viaria principale. L’asse interno, disposto parallelamente rispetto all’Avenue de l’Indépendance, «costituisce la spina dorsale del progetto, con vari servizi interconnessi attraverso passaggi ombreggiati, dove spazi passanti stretti si alternano a spazi aperti e corti piantumate» (Khan eds. 1984, Ibid.). Gli edifici del complesso si dispongono ai lati di tale asse; due blocchi, disposti sia lungo l’Avenue che al passaggio centrale, ospitano due dispensari, rispettivamente, quello ovest specializzato in Malattie endemiche, e quello est specializzato in Educazione infantile. In testa al dispensario per Malattie endemiche si trova una cellula di due piani, l’abitazione del dottore residente, che si affaccia su una corte privata. Quest’ultima, che ha l’acceso diretto anche dalla strada principale, separa l’edificio dal secondo dispensario.
Dall’altro lato dell’asse, il blocco è costituito da un corpo di fabbrica parallelo al passaggio interno, su cui s’innestano dei corpi di fabbrica perpendicolari di dimensioni diverse; i due più grandi, in cui si trovano i reparti di maternità con una capienza di 70 letti, racchiudono una corte semi-privata aperta verso il fiume e servita da una galleria. Il terzo corpo di fabbrica più piccolo, ospita la sala parto e la sala operatoria, e anch’esso racchiude una corte attorno alla quale si sviluppano altri edifici posti all’estremità occidentale del lotto, tra cui locali di servizio, alloggi per addetti ai lavori, un edificio amministrativo precedentemente esistente. Sia nelle corti che nell’asse centrale sono presenti alberi e vegetazione preesistenti, che sono stati volutamente integrati nel nuovo complesso sanitario.
In questa vicenda progettuale, la sfida più grande per Ravéreau consiste nel trovare soluzioni efficaci per contrastare le difficili condizioni climatiche locali; oltre all’utilizzo di spessi muri in banco, che fungono da buon isolante termico, egli progetta zone filtro tra interno ed esterno sempre ombreggiate. Una volta entrato in funzione il Centro, queste zone filtro vengono particolarmente apprezzate dalla comunità locale, poiché i pazienti vi possono sostare in attesa delle cure, e incontrare i familiari, che a loro volta possono cucinare per i propri cari come da tradizione. A tal proposito Ravéreau decide di escludere la progettazione di una cucina centrale, e di attrezzare la galleria della maternità con ulteriori panche e un podio per incontri collettivi di varia natura, quest’ultimi tuttavia non sono stati realizzati.
All’interno degli edifici Ravéreau adotta degli importanti accorgimenti al fine di garantire ventilazione e illuminazione naturali. Le diverse altezze dei soffitti insieme al posizionamento di finestre in alto favoriscono l’uscita dell’aria calda. Nelle camere da letto dei reparti maternità, ulteriori forature per la ventilazione naturale dell’edificio sono poste in prossimità del suolo. Le finestre non sono vetrate, ma sono dotate di persiane metalliche sia per la privacy dei pazienti che per filtrare la luce. Queste aperture sono profondamente incassate nei muri e protette da “spallette” sporgenti in muratura, per evitare che i raggi diretti del sole riscaldino le persiane metalliche. Sia gli infissi metallici che le porte in legno sono rigorosamente di produzione locale.
La costruzione del Centro con materiali e tecniche edificatorie del luogo è infatti un altro obiettivo che si pone Ravéreau nel corso di questa esperienza. Il complesso viene quindi realizzato con mattoni di argilla grigia locale, apportando dei miglioramenti dal punto di vista tecnologico e statico: i muri e parte delle partizioni orizzontali sono costruite in banco[6] stabilizzato con l’aggiunta di una percentuale di cemento del 13% (Cfr. Agha Kanhn Brief, 2013). Le coperture, invece, vengono realizzate in lastre di cemento armato con uno strato di protezione termica in terra. L’utilizzo della terra cruda come finitura ha conferito alla struttura un colore ocra. Terrazze e pavimenti sono rifinite con piastrelle in terra cotta di produzione locale.
Il Centro di sanità di Mopti riceve il premio Aga Khan nel 1980 per la categoria “Ricerca di un utilizzo contemporaneo del linguaggio tradizionale”, tuttavia a riguardo Ravéreau afferma (2003a, p. 149) che la categoria non rispecchia propriamente il principio guida del suo progetto, che invece consisteva nel «perpetuare la coerenza della costruzione in terra cruda nelle condizioni adeguate. La sua isometria, la qualità del materiale naturale (tanto apprezzato dagli ecologisti) potevano essere sviluppati nella continuità della tradizione, senza necessità di rieducazione della manodopera locale». Per questo motivo, per il rispetto del tessuto consolidato e delle preesistenze in generale, per il tentativo di inserimento del nuovo edificio nella vita della comunità locale, il Centro di sanità di Mopti risulta perfettamente integrato al contesto sia dal punto di vista formale, strutturale, che climatico, sociale ed economico, nonostante alcune criticità siano emerse una volta entrato in funzione, tra cui l’accumulo di polvere negli ambienti interni a causa della mancanza di finestre vetrate e la necessità di miglioramento per l’eliminazione delle acque reflue. Tuttavia bisogna fare presente che il budget per la realizzazione del Centro sanitario era limitato, per cui la direzione di cantiere non fu affidata a Ravéreau, ma alla Direction Nationale de l’Urbanisme e de la Construction. Ciononostante Ravéreau, che visitò il Centro di sanità a costruzione terminata si ritenne soddisfatto del risultato[7].
Trasposizioni sintesi e a sud del Sahara, verso un’architettura “tropicale”
Nel 1980 Ravéreau elabora, in collaborazione con Philippe Lauwers, il progetto per il Convitto del Liceo tecnico di Ouagadougou, promosso da FED. Il progetto arrivato fino alla gara d’appalto, secondo la testimonianza di Ravéreau, venne sospeso per vicissitudini politiche (Ravéreau 2003a, p.151). Il programma richiedeva l’ampliamento del liceo esistente con un convitto per 360 letti, un refettorio e altri servizi di pertinenza, fra cui bagni e docce comuni.
Ravéreau propone un edificio composto ancora una volta da cellule aggregate, ma stavolta di dimensioni uguali. Lo studio della “cellula madre” si basa essenzialmente sulle dimensioni di una camera con 2 letti, che viene raddoppiata per arrivare a un massimo di 4 letti per camera. Il progetto prevedeva tre corpi di fabbrica per le camere e un blocco contenente refettorio e servizi articolati attorno a uno cortile centrale coperto da un tetto terrazza di raccordo tra gli edifici. Il complesso sarebbe stato costruito in terra cruda e le coperture dei tre blocchi con volte senza centina per cellula.
Ravéreau parla di questo insuccesso in un’intervista rilasciata alla rivista Techniques & Architecture, in un numero completamente dedicato all’architettura in Algeria, ribattendo alla principale critica mossa dal Ministero, che bloccò la realizzazione del progetto giudicandolo troppo “arabo” (1980, p.76):
Una volta non è araba perché essa è una volta. Se questa è ventilata, se risponde alle esigenze costruttive e climatiche soprattutto, questa è conforme alla tradizione. Come i popoli mesopotamici, dopo le loro avventure ecologiche, noi siamo ora nella condizione d’inventare la volta ‘proprio al giorno d’oggi’ nella storia del paese. Se questa si rivela veramente buona questa può diventare tradizione.
Questo passaggio è fondamentale per comprendere il filo logico dell’opera di Ravéreau: l’architetto ritiene prioritarie le esigenze strutturali e funzionali, che, secondo la sua lettura, sono strettamente legate alle questioni di adattamento climatico.
Da queste derivano gli aspetti formali della tradizione, che si differenziano localmente a seconda della latitudine; di base però le matrici originali degli elementi architettonici, come ad esempio l’arco o la volta, sono universali[8].
Nel caso del Convitto in Burkina Faso, pur muovendo da una lettura della tradizione locale, Ravéreau giunge ad esiti che si distanziano da essa e che attingono a un immaginario sincretico di forme e paesaggi del Mediterraneo in senso lato e in generale dell’Africa. Proprio questo processo di sintesi si traduce talvolta in insuccesso professionale – una vicenda analoga avviene per il complesso termale di Hammam Salahine (1965-66 non realizzato)[9] – poiché le proposte avanzate non vengono comprese dalle amministrazioni coinvolte, mentre nella produzione teorica porta a definire tappe importanti in quel percorso volto all’identificazione di categorie a priori in architettura (Ruggeri 2020).
Qualche anno dopo, nel 1982 Ravéreau lavora per il Ministero francese della Cooperazione, in associazione con l’architetto Michel Charmont, al progetto del Liceo francese di Nouakchott, completato nel 1986[10].
L’opera rappresenta un vero e proprio scarto rispetto ai progetti precedentemente proposti da Ravérau, qui egli riesce a coniugare la padronanza nell’utilizzo del cemento armato, avviata accanto a Perret e acquisita con la pratica professionale, con le conoscenze derivate dallo studio dell’architettura tradizionale, seppur il richiamo all’architettura locale sia più concettuale che diretto. Nel Liceo francese di Nouakchott, Ravéreau reinventa alcuni dispostivi architettonici sperimentati in Algeria, adattandoli al clima tropicale del sud della Mauritania, caratterizzato da frequenti tempeste di sabbia.
Il complesso, similmente agli altri fino a ora descritti, è costituito da tre blocchi composti da cellule aggregate di dimensioni differenti. Il principio insediativo muove da due vincoli posti dall’architetto: esporre al vento i fronti minori degli edifici e garantire all’interno la maggiore illuminazione naturale possibile, rispetto alla posizione del sole nell’arco della giornata. Il blocco che ospita i locali amministrativi, i servizi, la guardiola del custode e alcune classi per attività speciali, si sviluppa lungo il muro di recinzione che costeggia la strada Habib Ould Mahfoudh; sul lato opposto alla strada, l’edificio presenta dei portici in legno e si affaccia su un giardino interno.
Gli altri due blocchi scolastici – uno per la scuola primaria, l’altro per quella secondaria – subiscono una rotazione di circa 45 gradi rispetto al blocco amministrativo, seguendo la direzione dei venti, est-ovest. Le cellule che ospitano le aule degradano al fine di creare degli accessi protetti dal vento da una corte di pertinenza.
Ravéreau realizza qui una nuova versione di quel sistema a doppia parete ventilata ideato in Algeria, che egli chiama mure masque, “muro maschera o muro schermo”.
Se nel M’Zab il mure masque è costituito all’interno da blocchi in cemento, all’esterno da forati di terracotta con una finitura di intonaco a base di calce e sabbia, nel Liceo di Nouakchott, per la prima volta, questo è realizzato interamente da pezzi prefabbricati in cemento armato. Nella fattispecie, la parte esterna è ottenuta mediante il ricorso a un pezzo unico prefabbricato con una sezione ad L, una sorta di pannello-pensilina, posto tra pilastri e che poggia su dei montanti metallici orizzontali. Tale dispositivo e le forature poste in prossimità del suolo, a mo’ di porta finestra, permettono un riparo dal sole efficace. Nelle finestre delle aule, oltre al pannello-pensilina, Ravéreau inserisce delle sedute in modo da ridurne ulteriormente l’altezza. Nelle aule la ventilazione naturale è altresì garantita tramite delle piccole forature poste in alto, che possono essere aperte dagli stessi allievi salendo su un apposito rialzo. Nel mure masque del M’Zab, concepito per un clima secco con piogge sporadiche, la ventilazione avviene lateralmente. Nel mure masque del Sahel, invece, la ventilazione avviene verticalmente, permettendo alla sabbia trasportata dal vento di evacuare naturalmente, e qualora a causa delle piogge dovessero crearsi degli accumuli arenosi, è possibile rimuoverli manualmente. Ravéreau riutilizza altri riferimenti provenienti dal repertorio del M’Zab, come le scoline dell’acqua, chiaramente ispirate alle Seguià algerine che però vengono qui integrate ai pilastri in cemento armato. Si tratta di elementi ricorrenti nelle opere di Ravéreau, e costituiscono una sorta di “scatola di strumenti” che viene aggiornata e adattata al contesto Subsahariano.
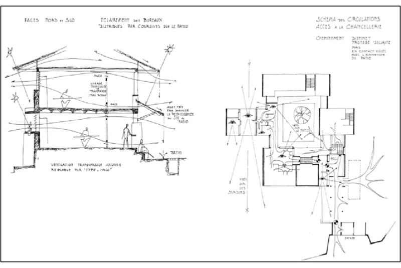
L’ultima pagina delle esperienze progettuali di Ravéreau nel contesto Subsahariano è rimasta sulla carta. Si tratta del progetto presentato insieme a Philippe Lauwers al concorso per l’Ambasciata francese in Uganda nel 1987, di cui restano poche testimonianze. Uno dei requisiti richiesti dal concorso poneva come condizione che l’edificio potesse essere facilmente difeso da eventuali assedi in caso di tensioni sociali. Per questo Ravéreau sceglie come sito un lotto boschivo, naturalmente difeso dalla fitta vegetazione, dove raggruppare gli edifici principali attorno a un patio centrale in modo da facilitare le comunicazioni in caso di emergenze.
La risposta a una condizione climatica estrema costituisce sempre la principale riflessione attorno a cui ruota il progetto; qui il clima tropicale umido è contraddistinto da piogge frequenti che talvolta non cadono in direzione perpendicolare al suolo ma seguono l’inclinazione dei venti. Ravéreau propone dunque delle coperture a falda molto inclinata, rivestite in lamiera metallica: «Queste coperture, di fatto, appartengono, alle coperture asiatiche al fine di rispondere a questo clima tropicale prossimo a quello dell’Asia» (Ravéreau 2003b, p.255).
Per le partizioni verticali degli edifici attorno al patio centrale, Ravéreau ripropone il sistema mure masque in muratura, con poche forature, al piano terra, al fine di ottenere per una maggiore stabilità dell’edificio. Al piano superiore, invece, le pareti sarebbero state realizzate con materiali più leggeri, seguendo i principi della tradizione costruttiva locale. Non mancano brise-soleil e breathing walls, appartenenti a un repertorio “tropicale”, codificato dai più grandi protagonisti del Movimento Moderno in Africa Subsahariana, Maxwell Fry e Jane Drew[11]. Tuttavia il progetto non convince la giuria del concorso, forse proprio perché questo rappresenta uno degli esiti di quel lungo e non sempre lineare processo di sintesi e trasposizioni fra architetture del “Sud del modo”, che l’architetto tenta di raggiungere nelle sue opere.
Un’architettura Subsahariana, quella di Ravéreau, che da un lato reinterpreta il Moderno dall’altro accoglie la tradizione del luogo, dall’altro attinge a un repertorio ora geograficamente localizzato, ora immaginario, ma sempre dettato da esigenze climatiche, diventando progressivamente, secondo la sua personale interpretazione, “tropicale” a seconda della latitudine.
Note
[1] Si veda (Pauly 2013).
[2] Per approfondimenti si rimanda a (Cohen, Oulebsir e Kanoun 2003, pp. 160-265).
[3] La traduzione di tale citazione e di tutte le altre citazioni riportate nell’articolo sono state eseguite dall’autrice.
[4] In Algeria Ravéreau non utilizzò mai la terra cruda, neanche dopo l’esperienza di cantiere a Mopti. Per la costruzione degli alloggi popolari a Sidi-Abbaz (1976), infatti, egli utilizza lo stesso sistema costruttivo dell’Hôtels des postes di Ghardaïa (1966-67), dove abbina ai materiali locali, quali pietre e sabbia, il cemento. Nella fattispecie per le partizioni verticali Ravéreau utilizza blocchi di latero-cemento e forati in terra cotta. Tale soluzione risultava la più sostenibile in quel contesto (Cfr. Ravéreau 2003a, p. 140-141).
[5] Il Fonds Européen de Développent è uno strumento di aiuto comunitario per la cooperazione nello sviluppo dei paesi Africani, Caraibici del Pacifico e dei territori d’Oltre mare, inizialmente stabilito con il trattato di Roma del 1959-64, che prevedeva nella fattispecie l’aiuto dei paesi Africani colonizzati. Il Centro sanitario di Mopti rientra nel quadro del secondo accordo firmato a Yaoundé (Camerun) nel 1963, tra la Comunità economica europea e diciotto paesi africani che avevano acquisito l’indipendenza (l’Algeria e la Guinea rifiutarono tale accordo). Nel 1969, data di inizio del progetto del Centro sanitario di Mopti, milleseicento sei progetti erano in corso di realizzazione e venivano stanziate duemila borse di formazione (Cfr. Potié 2003, p. 90).
[6] Qui i mattoni sono stati prodotti con una pressa attivata a mano, ottenendo due vantaggi rispetto alle prestazioni dei mattoni realizzati comunemente nella regione con stampi di legno: in primo luogo, la forza di compressione che la pressa esercita sul banco produce un mattone più denso e più resistente alle sollecitazioni di compressione; in secondo luogo, con la pressa è possibile produrre più mattoni con meno uomini e in meno tempo (Cfr. Holod e Rastorfer 1983).
[7] Dichiarazione rilasciata da André Ravéreau alla sottoscritta nel corso di una delle tante interviste tenute a Lentillères nel mese di marzo 2014.
[8] Per approfondimenti si rimanda a (Ravéreau, Bertaud du Chazaud e Ravéreau 2007).
[9] Come nel progetto del Convitto in Burkina Faso, il complesso termale di Hammam Salahine prevedeva un sistema aggregativo basato in parte sulla ripetizione di cellule voltate senza centina.
[10] L’edificio ancora in buone condizioni è stato ampliato nel 2018 dallo studio Segond-Guyon Architectes.
[11] Per approfondimenti si rimanda a (Galli 2019).
Bibliografia
AGA KHAN AWARD FOR ARCHITECTURE (2013) – Medical Centre. Project Brief, Aga Khan Award for Architecture, Ginevra.