


























The
concept of Health Houses in Italy originates from the ministerial
conference of the same name in 2007, marking the beginning of a path,
guided by the amendments to Title V of the Constitution, which
transferred competences in the health field to the Regions.
Consequently, the Regions have started to legislate on the topic, as
demonstrated by Regional Council Resolution no. 291/2010 of
Emilia-Romagna, entitled «House of Health: regional indications
for implementation and organization» (DGR 2010).
Although only fifteen years have passed since their introduction, in
2021 554 institutions with this name are operational in Italy, a number
that is evidently insufficient for decentralized and widespread
structures of this type (Pesaresi 2022).
But the paramount issue does not lie so much or only in the quantity of
Health Houses at a national level, but rather in their location on an
urban and neighborhood scale, as well as in the relationship with the
surrounding environment and in the architectural and spatial quality
that should distinguish them.
The SARS-CoV-2 epidemic has acted as a catalyst for a profound
reflection on social and healthcare structures, revealing their
fragilities and indicating the need for new spaces and models of
healthcare facilities (Quintelli et al. 2020).
In response to these problems, within the National Recovery and
Resilience Plan, the contents of Ministerial Decree 77/2022 are
determined and entitled «Models and standards for the development
of territorial assistance in the National Health Service» (DM
2022). Planning and regulatory policies that define the characteristics
of Community Houses and provide for a significant numerical increase on
a national scale.
The National Recovery and Resilience Plan establishes the construction
of 1,350 (Italiadomani 2021) Community Houses, which later became 1,430
(Openpolis 2023) following the requests of the Regions, by mid-2026,
using both pre-existing and newly built structures, also if, following
the revision of the plan in the summer of 2023, the number is reduced
by approximately 400 units, thus significantly downsizing the original
programming. However, the analysis of the projects financed so far has
highlighted the scarcity of qualified architectural projects recognized
by critics through publications, underlining the need for a more marked
commitment in the design, even before the construction, of these
structures to guarantee their success in terms of full achievement of
the objectives.
It is important to underline that the presence of Health Houses (HH)
and Community Houses (CH) is significantly uneven in the regional
geography, with a greater concentration in the northern regions. In
this scenario, there is an increase in diffusion in the Emilia-Romagna
Region, traditionally at the forefront in the healthcare field.
From the analysis of an albeit limited Italian case study, some
significant HH and CH structures have been selected, in relation to
which it is possible to highlight some initial aspects of
characterization as being of critical importance. The selected
structures include: the HH of Carpaneto Piacentino (Province of
Piacenza), the CH Ljubljana-San Lazzaro (Parma), the HH of Casalgrande
(Province of Reggio Emilia), the HH G.P. Vecchi (Modena), the HH Navile
(Bologna), the CH of Predazzo (Province of Trento) and the CH of
Salò (Province of Brescia).
The project of the new HH in Carpaneto Piacentino, created by
A+C_Architettura e Città associated studio in 2017, envisages
its positioning between the historic structure of the former
slaughterhouse, whose functional destination currently remains
suspended, and the building post office, finding beyond the area
involved the spacious Piazza Rossi which, used mainly as a car park, as
well as for the market, appears as an asphalted space without a
distinctive urban quality in everyday life and with little relevance to
the CdS if not in terms of rest area.
The building is characterized by a simple, monoplanar and linear
structure, with distinctive elements such as the “L” shape
and extended arms that create a suggestive green semi-courtyard of
access, highlighted by the significant presence of a pre-existing tree.
The linear bodies facing the courtyard, with glass façades
protected from sunlight and rain by a projecting overhang, house the
entire distribution and waiting system of the structure.
The architecture is inserted into the area in order to facilitate the
creation of three green areas and a car park dedicated to staff.
Inside, two distribution trajectories intersect in the central corner,
appropriately hosting a reception space in that junction, albeit small
in size, also intended for an information and waiting desk. A
dimensional lack that calls into question the fulfillment of the
functions foreseen according to a condition of real reception.
The architectural project underlines the importance of visual comfort
and connection with the external environment by users, emphasizing
these aspects above all through the creation of widely glazed
distribution corridors, according to a language aimed at restoring
lightness and formal elegance to that space. The waiting areas are also
positioned along the corridors according to an unfortunately
consolidated practice, to which is added a lack of attention in the
placement of the seats which, oriented with the backrest against the
glass, do not allow waiting users to have a view of the space court
green. Furthermore, the presence of windows along the distribution
space, although it contributes to comfort in terms of vision and
brightness, does not guarantee sufficient privacy for waiting users.
Given the limited size of the HH, the flexibility of the building also
in terms of expansion is not conceivable except on the Piazza Rossi
side.
In the Parma context, the project created by Vincenzo Facchino (S.A.T.)
in 2022 for the new Ljubljana-San Lazzaro Community House stands out
through an architectural complex divided into four parts, each with a
clear functional destination. The first three parts, arranged in an
interconnected manner to form a single body with a “C”
structure, are designed to host the health activities of the CH and the
Territorial Social Centre. The fourth part is identified in a building
located behind and independent of the other mainly intended as a
Territorial Dialysis Centre, with further spaces dedicated to the 118
Operations Centre.
The central nucleus, identified as the main access point to the
structure, houses an entrance characterized by a reception space which
includes an information desk and for collecting reports. However, it is
clear that the current small size of this space could force users to
wait at the entrance door or, on certain occasions, outside the
structure, with evident problems of congestion in the access
environment. In fact, the lack of reception spaces and services,
probably due to a design dated well before the new regulatory
guidelines, risks at least partially compromising the very concept of
CH.
On the sides of the entrance, the two bodies connected to the central
nucleus host, with equal availability of spaces, the component of the
Territorial Social Center and the healthcare part. Critical issues
related to this rigid distribution of the operating surface clearly
emerge. The social part, represented by the Territorial Centre, enjoys
large and comfortable spaces, while the area dedicated to healthcare
activities appears undersized and on average crowded. It is a system
centered on a single corridor, on average crowded and with little
access to the outside, which has dimensions that are not adequate to
fully and effectively support the significant and qualified provision
of healthcare services present, creating a working environment not
entirely optimal for staff, with negative repercussions for users from
multiple points of view.
The waiting areas, often obtained from the use of an outpatient module
or from the placement of seats along the distribution corridor, further
contribute to the problems of use within this area of the complex.
The structure develops on a single floor, built on a previously unbuilt
area, free of constraints, and therefore originally susceptible to a
high architectural quality system.
Accessibility to the complex is guaranteed both through a pedestrian
entrance that leads to the common atrium facing via 24 Maggio, and
through a vehicular access that leads to a car park, located on the
side towards the north, dedicated to users and staff.
In the formal identity of the structure, an evident semantic
discrepancy emerges between the architectural image and the nature of
the functions carried out within it. In general, the architectural
choices are not concerned with representing the civil and urban value
that typifies a Community House even on an iconic level.
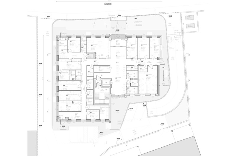
The project under construction for the New Health House in Casalgrande,
in the Province of Reggio-Emilia, designed by Bertani & Vezzali
architects & partners in 2017, according to a typology defined as a
“pavilion in the green”, is articulated through the
following functional blocks the acute triangle shape of the area. The
cellular organic character of the complex derives from the sequence of
different elements related through a large and articulated distribution
path, which also performs the function of a waiting space, up to the
nodal point where the entrance and reception are located.
The structure has differentiated entrances, a main one for the public,
a separate one for child neuropsychiatry and a side service
corresponding to the driveway access. Volumetrically developed on a
single floor, it has a height highlight in the part dedicated to the
entrance and reception area. The area not occupied by the building is
intended for protected public greenery.
The layout of the clinics and treatment rooms is developed through
areas opposite the main access side, guaranteeing reserved and
protected spaces. At the same time, the common distribution area for
the various services offers welcoming waiting spaces with dual north
and south exposure, capable of providing high brightness and visual
permeability also from a safety point of view.
Even within a residual space dictated by the road infrastructure, the
architects wanted to give the building an architectural and urban
identity through a network of functional and urban relationships,
stitching together the western edge with the countryside, the nearby
rural courtyards, the expansion recent residential area, the
distribution avenues and the public and private garden areas close to
the historic centre. This texture extends to include the library, the
town hall, the theater and the public park, creating a concatenation of
urban places integrated into the dynamics of the village.
Currently, the area includes a car park accessible to both users and
staff and is served by a cycle/pedestrian sidewalk along the entire Via
Carlo Marx, ensuring an excellent connection for low environmental
impact travel towards the center of Casalgrande.
The project for the construction of the Health House G.P. Vecchi in
Modena, created by Studio Lenzi & Associati and ZPZ partners and
completed in 2020, is spread over four functional floors, with a
basement and an upper floor dedicated to logistics and plant
management. The design approach is based on a block system, highlighted
on the ground floor by a vast room, a central “square”,
above which, through a vertical hollow space, the different levels are
perceived.
The “square” plays a fundamental organizing role in the
structure, acting as an entry, sorting and passage point for access to
the upper floors, as well as a waiting area for the clinics. This space
optimizes the internal distribution of the building and is also an
information and orientation point for users.
The reception and related waiting areas are distributed on all levels
of the building starting from the “square”, with furnished
spaces overlooking the central cavity. A distinctive element is the use
of color which varies according to its health or social function; this
not only facilitates user orientation but also contributes to creating
a more “humanized” environment that differs from
standardized healthcare facilities historically characterized by poor
chromatic variety.
Particular attention is paid to children, with a specifically designed
area on the ground floor, near the café, to entertain them while
they wait. Furthermore, each floor has seating areas dedicated to the
little ones, creating a welcoming environment suited to their needs.
The external formal identity of the building appears semantically
ambiguous and partially reflects its healthcare and community function,
unlike the characterization developed internally.
The architectural entity of the Health House in the Navile district of
Bologna, built by MATE Engineering in 2018, emerges significantly,
almost signally, in the urban landscape, thanks to its volumetric
character and the cladding in green panels that completely envelops the
entire structure. Distinctive aspects that would like to underline the
importance of this large health service center relating to the
north-west area of Bologna.
The structure of the Casa della Salute Navile is characterized by a
compact architectural block layout, within which, starting from the
second floor, an open courtyard cavity is created to provide air and
light, while on the first two levels there are determines a central
closed double-height environment, including waiting spaces, reception
areas and booking services. An arrangement on four floors above ground,
capable of adequately organizing the various healthcare and
administrative activities envisaged.
The choice to use a sort of covered internal hall as the fulcrum of the
activities reflects an architectural approach aimed at creating a
single central, welcoming and multifunctional distribution environment,
although it presents similarities with the character of a tertiary hall
or a commercial mall as highlighted by the presence of an escalator, an
element not entirely suitable in a healthcare context for functional
and management reasons. The escalator, in fact, does not contribute to
encouraging physical activity, does not favor access to users with
limited mobility and has high management costs that are difficult to
amortise in the absence of a strong flow of users.
The waiting space presents a concentration of sessions with inevitable
consequences in terms of acoustics, health distancing logics and
proximity to outpatient services.
The white porticoed base band on the facade plays an important role in
signaling the access points, where the portico acts as a protected
transit area and at the same time capable of integrating the building
into the surrounding urban context.
The design approach for the Community House of Salò, designed by
Stefano Boeri Architetti in 2022, adopts a circular layout, divided
into two levels above ground and a basement. A building also
characterized by two distinctive elements: the open courtyard and the
green facade, conceived as fundamental landscape features of the
project.
The ring configuration of the system marks a onerous route development,
according to a single corridor through which to reach the services
located at the opposite ends.
The volumes that overlook the open courtyard are intended to
accommodate the social, refreshment and waiting areas.
The roof of these volumes is transformed into an open terrace,
accessible to the patients of the facility. The court is designed to
offer a protected environment, but without covered yet open mediation
spaces.
The external facade of the CH of Salò stands out for its large
windows which favor visual permeability between the internal and
external spaces, thus guaranteeing adequate natural lighting inside the
structure, a choice which however must take into account privacy of
users and healthcare professionals. The façade is integrated
with a wooden structure, anchored to the main system, which acts as a
shading and support system for the vegetation called upon to play a
preponderant role up to what is now often defined as a jungle effect.
The project focuses heavily on image, in terms of sustainability and
the role of greenery; however, it was contested by the State
Superintendency for the protection of the landscape as its
implementation would have inevitably led to the “gutting of the
wooded slope” in the context of its inclusion.
The last case analyzed in this provisional comparative review, the
Community House of Predazzo not yet built and designed by Weber +
Winterle architects in 2023, concerns a building project characterized
by a block system that emerges through its relevant structure on five
levels, including a basement and an attic, from which the extent of the
planned functional equipment can be obtained. A building whose image
does not capture the need for semantic denotation required by a
community-type healthcare facility in the urban landscape, remaining
suspended between the idea of the residential condominium and the
office building, furthermore devoid of contextual references.
The structure has a main entrance and a secondary entrance positioned
on the opposite side, both aimed at facilitating access to the
reception space, which, designed to act as a hinge for the entire
structure, is however limited in terms of dimensions, resulting
proportionally reduced compared to the expected influx of users that
the Community House should receive.
Defined by the designers as a “hall / waiting space”, this
environment, more comparable to a large hallway, is proposed on all
floors intended to provide specific services and ends up taking the
form mainly as a standardized waiting area, with a acceptance, without
adequate differentiation for the different types of users. A key space
but without any connection with the outside except for the functions of
access and overlooking the street, therefore devoid of characteristics
capable of translating situations of a community nature, both
functional, perceptive and symbolic.
This is a condition, among others of an architectural nature, which
deserves in-depth reflection on the aspects determining user
satisfaction within a public service structure such as the CH.
This first itinerary within the Italian context, although as already
mentioned on a necessarily limited sample, has so far highlighted a
lack of relevant creations in terms of the typo-morphological and urban
quality of the Health Houses and Community Houses built or in the
project phase.
However, it is possible to identify some recurring critical issues that
can be considered paradigmatic, together with some appreciable
attempts, regarding the design of the spaces required by the potential
of the foreseen integrated services.
From the collection and analysis of the cases carried out, the
predominant issues relating to these structures emerge as the
pre-eminent question of their location at an urban and neighborhood
level, the relationship with the surrounding context, a distribution
typology and an iconic definition still not well focused on the
functional and identity innovation of the Community House.
These structures are often positioned within the territory in a random
manner, selecting areas available to the Municipality or other
competent body, sometimes characterized by limited accessibility
especially in terms of cycle-pedestrian paths. Furthermore, they have a
poor connection with green spaces and with the places and public
services characterizing the condition of urban aggregation. Fundamental
public service spaces which thus do not contribute to the processes of
concentration and integration of essential services for the city
community.
In other words, at times there emerges a lack of awareness of being the
House of Health and even more so of the Community, a center of public
services which is not limited only to healthcare provision, but which
invests in a much broader way in the various needs of the elderly, the
disabled , young people, women and families within neighborhood life in
the contemporary city.
Starting from this interpretative deficit, it is difficult to
functionally represent, through architectural forms, the concept of
“health” aimed at improving both individual and social
well-being. In this context, it is important to underline how the
quality of the built space can have a significant impact on the
functioning of the services offered and, at the same time, on the sense
of belonging, representativeness and inclusion of the citizens who
should benefit from the socio-health services according to an approach
increasingly oriented towards the community dimension.
In the design of social and healthcare facilities, the architect takes
on a role of primary importance that extends beyond mere aesthetics and
compliance with specific regulations and technical observances. The
conception of an optimal care environment requires an approach based on
the direct identification of the needs of users, understood as
culturally denoted subjects, placing the architect at the forefront as
an agent who identifies with the social context in which he operates.
A fundamental perspective not only to understand the functional
dynamics, but also to immerse oneself deeply in the expectations and
experiences of both operators and patients, from which to derive a
logic of spaces that responds in an integral and anthropocentric way to
the complex needs inherent to care and well being.
Bibliography
AA. VV. (2020) – “La ri-definizione degli spazi di cura sarà un’attività che occuperà gran parte della futura programmazione sanitaria?”. Monographic issue of the magazine Forward 17, May.