Questioni compositive attraverso il tipo ospedaliero: un itinerario critico.

Enrico Prandi



Premessa
Questo testo non può che prendere le mosse da lontano, dagli antichi “luoghi di cura” che hanno portato alla progressiva razionalizzazione degli spazi della salute attuali intesi come perfette ed efficienti “macchine per curare”: non solo e non tanto, quindi, una storia architettonica degli ospedali, quanto delle tipologie spaziali che hanno assolto nel tempo il compito di “assistere e curare” nelle sue diverse declinazioni (dalla cura dello spirito e della mente ancor prima che del corpo). Se dovessimo immaginare una rappresentazione dell’evoluzione dello spazio di cura fino agli odierni orientamenti dell’assistenza medica e della cura decentrate, essa potrebbe essere un cerchio: dal luogo ibrido originario (la sala a navate mutuata dalla chiesa) ci si orienta progressivamente verso un grande organismo funzionalmente razionale e specializzato, quello foucaultiano della clinica, per poi tornare con la sanità territorializzata a tipologie polifunzionali da reinventare. In questo processo evolutivo, il tipo del luogo di cura, salvo in rari casi, ha letteralmente espulso dalla progettazione l’architetto responsabile della reinterpretazione tipologica per affidarsi ad una concezione razionale, funzionale, ingegneristica che ha portato ai grandi complessi del secondo Novecento.
La diffusione della medicina territoriale e di prossimità, rilanciata dalla messa in crisi dei sistemi sanitari ospedale-centrici avvenuta con l’epidemia da Covid-19, ha fornito le ragioni e gli strumenti per un ripensamento delle strutture sanitarie di base in un’ottica di primo presidio di cura, le cosiddette Case della Salute più recentemente evolutesi in Case della Comunità con l’aggiunta dell’assistenza sociale. Organismi plurifunzionali per eccellenza che hanno nella creazione di un sistema integrato di funzioni (medica, socio sanitaria e assistenziale) la loro ragione d’essere. Da architetti ci è sembrato, allora, l’occasione per riconquistare quello ‘spazio perduto dell’architettura (e dell’architetto) della reinterpretazione tipologica’ proprio a partire dagli esempi storici più significativi qui raccolti.

Dall’Asklepeion alla Casa della comunità: per una nozione complessa ed integrata di cura
Non vi è dubbio che la storia della tipologia dello spazio della cura abbia seguito l’evoluzione della tecnica, della scienza e della cultura mediche tanto che dal sacerdote guaritore alla definizione del medico specialista corrisponde una progressiva organizzazione spaziale suddivisa per ambiti specialistici che poco lascia all’invenzione tipologica.
Nelle città dell’antica Grecia, in cui le tipologie architettoniche sono frutto di riti collettivi, l’Asklepeion collocato in genere all’esterno in una sorta di ‘altra-città’ santa (il santuario definito dal recinto sacro) colloca in posizione centrale il Tempio del Dio della Medicina Asclepio, contornandolo da elementi tipici delle spazialità pubbliche dell’agorà come i lunghi loggiati (stoà che contengono le celle dei malati). è solo successivamente al III e II secolo a.C., però, che si configurano i luoghi dell’ospitalità come frutto del rapporto tra metodo di cura e lo spazio adibito all’assistenza medica mediante la creazione di ambienti riservati agli ammalati. Non ancora un edificio ospedaliero vero e proprio ma un luogo articolato in cui i diversi elementi come il bosco, la fonte, il tempio compartecipano al rito della guarigione. Significativi sono gli Asclepei di Epidauro, di Pergamo e di Kos del IV secolo a.C.. Nel caso di Epidauro l’Asklepeio si inserisce in un sistama composito distribuito all’interno del recinto sacro che comprende i dormitori, l’Altare e il Tempio di Asclepio e l’Abaton ossia lo spazio (un portico a due piani) per il sonno risanatore dei malati. Nel caso di Pergamo, al contrario l’Asklepeion è isolato e separato dal concentramento delle funzioni pubbliche a formare «un’architettura urbana di forma compiuta come sovrapposizione di continue aggiunte che seguono o hanno presente un disegno generale» (Aymonino 2005). Nell’ultimo caso, quello di Kos, l’Asklepeion assume la forma di un percorso ascensionale organizzato su due grandi corti e tre terrazzamenti: il primo, in basso conteneva le camere dei malati, la seconda terrazza conteneva l’Abaton e i due Templi dedicati ad Apollo (il padre) e di Asklepio (il figlio) mentre la terza terrazza era dominata dal grande Altare dedicato ad Asklepio.
È interessante notare come il termine stesso ospedale (che denota il luogo attualmente deputato alla cura) abbia avuto origine da una successiva serie di spazi anticamente dedicati all’ospitalità, ancor prima che alla cura. Hospitalis era, infatti, la parte dell’abitazione romana riservata agli ospiti (hospes) ossia il luogo dove erano accolti i viaggiatori. La domus romana presentava sovente uno spazio di cura tanto che la stessa diventa il modello per lo Iatreo, già affermatosi in epoca greca come luogo domestico per la cura degli ammalati, archetipo del moderno ambulatorio. Se la cura privata veniva esercitata a livello domestico, la cura pubblica si afferma attraverso l’istituzione caratteristica dei Valetudinaria, nelle due declinazioni per gli schiavi e per i soldati ossia le due entità produttive della società romana. Ogni accampamento romano stabile possedeva un Valetudinaria militare che insieme alle Terme, al Praetorium, al Quaestorium e alla Palestra costituiva la dotazione di edifici pubblici per la comunità (TABANELLI 1960). Secondo la prassi romana i Valetudinaria erano per lo più grandi corti quadrate con un corpo di fabbrica distribuito da un corridoio centrale e gli ambienti disposti su entrambi i lati come nel caso di Vengadissa in Svizzera e Vetera in Germania, mentra in alcuni casi poteva apparire come corte allungata a rettangolo (Novaesium in Germania).
Nel successivo affermarsi del Cristianesimo, dal 313 d.C., l’accoglienza e l’assistenza viene inglobata nei compiti istituzionali della Chiesa e praticata soprattutto nei luoghi conventuali e nelle abbazie in grandi spazi indistinti. Il passaggio formale avviene con il Consiglio di Nicea 325 d.C. che impose l’obbligo per ogni città sede di cattedrale di istituire un ospedale direttamente collegato alla chiesa ed a gestione diretta del clero. Gli Hospitiolum o Hospitium erano di fatto “luoghi ospitali” in cui l’assistenza e la cura erano per lo più impartite da uomini di fede e non da uomini di scienza ancorché empirica com’era al tempo. La medicina, infatti, consisteva in rimedi medicamentosi, come preparati di erboristeria, e chirurgici, come salassi e incisioni di vario tipo. Non stupisce, quindi se uno dei più antichi ospedali in Oriente, quello di Cesarea in Cappadocia (l’attuale Israele), fu fondato tra il 368 e il 372 d.C. da San Basilio, vescovo della città. Così progressivamente l’Oriente si viene a dotare di vari istituti assistenziali come gerontocomi, xenodochi, brefotrofi e nosocomi.
In Occidente la spinta all’evangelizzazione dei mendicanti e pellegrini portò in epoca medievale alla costruzione di numerosi Xenodochia posti in prossimità delle parrocchie sulle principali vie di comunicazione: essi tuttavia non hanno ancora un preciso riferimento tipologico dovuto soprattutto al tipo di assistenza medica ancora non definita in maniera scientifica. In alternativa alle Tabernea gestite da laici, gli Xenodochia offrivano ai pellegrini luoghi dediti alla meditazione e alla cura ed erano disposti a non più di 30-35 km l’uno dall’altro, la distanza percorribile in una giornata di cammino. I primi Xenodochia sorsero verso la fine del IV secolo, come testimonia quello di Ostia (398 d.C.) che, pur nell’evidente derivazione dal tempio, mostra i caratteri di una maggior articolazione in virtù della presenza di una corte porticata che precede la Basilica e di sale di degenza affiancate alla corte. Nel caso di Termanin in Siria, le due parti costitutive dell’impianto sono nettamente separate: da un lato la grande sala contornata da un portico mentre dall’altro la basilica autonoma e separata.
Sono soprattutto gli ordini religiosi – Benedettini, Cluniacensi e Cistercensi –, i responsabili della costruzione delle strutture di assistenza per gli infermi, ancora non individuabili come parti caratteristiche o caratterizzate dal punto di vista architettonico. Nell’organismo tipologico conventuale o abbaziale, quindi, gli spazi di assistenza e cura si uniformano alla tipologia degli spazi di culto perlopiù a sviluppo lineare, a una o più navate, con l’altare posto in posizione terminale come vuole la regola orientato verso est. Così è nel caso dell’abbazia benedettina di S. Gallo in Svizzera.
Il progetto fu influenzato dai dettami di accoglienza e assistenza insita nella Regola di San Benedetto e comprendeva, all’interno del complesso abbaziale medievale, un impianto d’assistenza ospedaliero simile alla disposizione planimetrica del convento stesso.
La chiesa abbaziale separa gli ospizi, dedicati a eventuali ospiti di passaggio, accolti nell’area d’ingresso e il complesso ospedaliero vero e proprio, situato a est. Il nucleo principale di quest’ultimo si dispone simmetricamente attorno a una chiesa minore, asse centrale del progetto, fornita di doppio altare, per permettere un simultaneo utilizzo ad ammalati ospitati in zone separate. Gli spazi funzionali sono progettati secondo una precisa divisione che li separa in luoghi di degenza e di cura. Ai lati della chiesa due chiostri collegano due distinti e uguali dipartimenti (uomini e donne) organizzati con stanze, dormitori, latrine, camere per i malati, contagiosi e i relativi servizi: refettorio, spazio riunioni e alloggio del sorvegliante. I locali destinati ai servizi generali, cucina e bagni, sono separati dalle degenze e differente per ciascun dipartimento. L’impianto è completato da un lato dal cimitero, dall’altro dagli edifici per i salassi, farmacia, camera per casi gravi, l’alloggio del medico e il giardino delle erbe medicamentose. (LI CALZI 2008, 63).
In questo periodo è possibile individuare due elementi invarianti da cui mutuare l’ospedale: la chiesa e il chiostro. Cosi che la tipologia della chiesa gotica si offre all’interpretazione di un’unica grande sala di degenza (a una o tre navate) con finestre aperte sui lati lunghi, mentre il chiostro diviene il contenitore degli spazi di servizio.
Nell’abbazia benedettina di Sant’Agostino di Canterbury in Inghilterra l’infermeria viene aggiunta utilizzando come snodo il cortile piccolo (little choister). Essa è costituita da una sala rettangolare e 3 navate di 75 x 21 m. Anche il convento di Cluny in Francia obbedisce sostanzialmente alle stesse regole tanto che nel XII secolo un ampliamento aggiunge la nuova infermeria costituita da una grande sala divisa in tre navate (55 x 27,5 m), collegata alla vecchia infermeria attraverso un chiostro quadrato.
Anche le abbazie cistercensi non fanno eccezione ed utilizzano il medesimo modello. Nell’abbazia di Fountains in Inghilterra è presente una sala-infermeria a tre navate di circa 55 x 25 m che presenta la particolarità di essere a ponte sul torrente probabilmente per ragioni igieniche e di approvvigionamento di acqua.
Se da un lato, quindi, la complessa struttura conventuale autosufficiente aveva nella chiesa-ospedale l’elemento dedicato alla cura dei malati, dall’altro la città medievale ingloba nella struttura urbana l’ospedale in progressiva e costante espansione sostituendo, adattando e riscrivendo di volta in volta gli spazi destinati ai servizi rispetto alla grande sala dei malati. È il caso degli Hôtel-Dieu francesi ed in particolare quello di Parigi nell’Ile de la citè in cui rimangono riconoscibili le sale ad infermeria unica, mano a mano aggiunte fino alla saturazione degli spazi urbani e costrette ad ampliarsi oltre la Senna mediante ponti costruiti ad uso infermerie.

Nello stesso periodo in Oriente progrediva rapidamente la disciplina medica dando origine ad ospedali tipologicamente mutuati dal tipo del palazzo reale in cui per la prima volta è presente anche la Scuola medica come nel caso dell’Ospedale al-Mansur Qalawun del Cairo del XIII secolo. Alla base di questo diverso paradigma tipologico vi erano le altrettanto diverse credenze medico-scientifiche non basate sulla pratica religiosa tanto è che è proprio in Oriente in continuità alla tradizione greca che si sviluppa la disciplina medica.
Nell’ambito della nascita della clinica, la scuola assunse un ruolo sempre maggiore fino a determinare una perfetta simmetria tra le due parti: ospedale e scuola. Tipologicamente, la corte porticata diviene la matrice da replicare per l’organizzare delle varie funzioni.
In Turchia in particolare sono gli edifici adibiti all’ospitalità di poveri e viandanti come i caravanserragli a fornire una tipologia da adottare per lo sviluppo dell’ospedale. Uno dei primi ospedali di Istanbul, il Suleymaniye si colloca attorno al recinto della Moschea insieme alle principali funzioni pubbliche. 
La tipologia della corte, con passaggi protetti ad uso delle stanze di degenza separate, diviene funzionale ai sistemi di cura che si evolvono e si sperimentano a diretto contatto con l’ammalato. In questo fenomeno, significatamente laico, si riconoscono gli impulsi che determineranno in Europa solo nel diciottesimo secolo la nascita delle prime cliniche ospedaliere. (LI CALZI 2008, 84).
Nel contesto in cui si inserisce questo studio, parallelamente allo sviluppo della clinica medica, assume particolare significato anche la farmacologia basata principalmente sull’uso dei semplici, le erbe appunto, coltivate negli orti intesi come giardini della medicina.

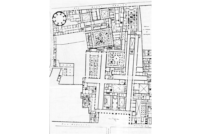
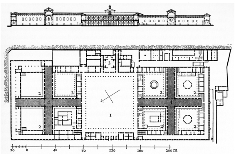
Se l’ospedale-monastero, si scopre poleogenetico originando città (come ad esempio nella città di San Gallo), la nuova società quattrocentesca imprime un rinnovamento nell’organizzazione dei malati e nella gestione dell’ospedale ancor prima che nella tipologia architettonica. Gli utenti iniziano ad essere suddivisi: i poveri, viandanti e pellegrini dai i malati e questi ultimi ulteriormente divisi per categorie (gli acuti dai cronici, ma anche per sesso): un complesso moderno gestito ormai dal potere laico. Si assiste alla nascita di un’autonoma tipologia (quella a crociera) intesa come fabbrica ospedaliera moderna. Il più alto esempio di un rinnovamento che investe tanto l’idea di città quanto quella di società (non senza significato simbolico) è riscontrabile nell’Ospedale Maggiore, la cosiddetta Ca’ Granda, di Milano iniziato nel 1456 ad opera di Antonio Averlino detto il Filarete. Quest’ultimo aveva infatti collocato l’Ospedale nella città ideale di Sforzinda al fianco delle grandi attrezzature urbane come il Palazzo del Signore, il Teatro, la Cattedrale, il Mercato, ecc.
Come era già avvenuto in passato, l’elemento tipologico di base è costituito dalla corte: una grande corte centrale, e quattro corti minori porticate, poste su entrambi i lati, suddivise da altrettanti corpi a crociera.
Nella concezione dell’ospedale si verifica una fondamentale inversione concettuale: se l’ospedale medievale è immagine della chiesa e del monastero, quello rinascimentale, come edificio rappresentativo della nuova organizzazione del potere della città, è immagine del palazzo civile e come tale ne assume il ruolo e la dignità.
Così che in questa nuova rinnovata impostazione sarà la chiesa ad essere inglobata nell’ospedale e non viceversa.
Se la crociera compare già a Firenze nell’Ospedale di Santa Maria Nuova (1445) sono la Lombardia e l’Emilia i territori in cui si diffonde progressivamente perfezionandosi: a Brescia (1447), a Pavia (1449), a Mantova (1450), a Milano (1456), Lodi (1459), Como (1468), Piacenza (1471) e Parma (1476). La disposizione della doppia crociera in parte sovrapposta di Firenze lascia il posto ad una precisa geometrizzazione peraltro coerente con i modelli simbolici rinascimentali.
Durante il ’600 si assiste sostanzialmente ad una rielaborazione geometrica fondata sulla combinazione di corti e crociere a determinare un impianto tipologico chiuso a recinto verso la città e soprattutto autonomo.
Verso la fine del secolo inizia a comparire una forma tipologica destinata ad avere un certo successo nel ‘700 costituita dallo schema radiale ‘a panottico’ generato dalla duplice esigenza di moltiplicare i corpi mantenendo una funzionalità dei percorsi…………
Una successiva variazione tipologica si ha con la comparsa delle cosiddette Almshouses, ossia strutture assistenziali residenziali destinate ai poveri che consistevano in edifici lineari contrapposti collegati in testata su un lato da un corpo principale determinando una corte aperta allungata. Questa tipologia, poi adottata in alcuni ospedali britannici, ha costituito l’archetipo per un altro tipo innovativo destinato ad essere utilizzato anche per altre funzioni di vita associata (per esempio i campus universitari) come l’impianto a padiglioni paralleli e isolati. Dapprima senza alcun tipo di collegamento fisico, che comparirà in seguito, i padiglioni quadrati o rettangolari erano disposti su schemi planimetrici geometrici subordinati ad un asse di simmetria alla cui estremità in genere era collocato l’edificio principale. Così era il Royal Naval Hospital di Christopher Wren a Greenwich (1694-1702) e il successivo Royal Naval Hospital di Alexander Rovehead a Stonehouse, Plymouth (1758-1764).
Il concorso per la costruzione dell’Hotel Dieu di Parigi (1777-1788), successivo all’incendio del 1772, ha fornito un contributo decisivo all’imposizione dell’ospedale a padiglioni come modello tipologico per l’ospedale moderno. L’occasione del concorso di un ospedale per una grande città com’era già Parigi a quel tempo ha catalizzato l’attenzione dei diversi saperi disciplinari contribuendo ad un decisivo avanzamento delle conoscenze in campo medico scientifico ed architettonico. Non a caso Michel Foucault (1976) le definisce “macchine per guarire” che obbediscono non solo ad un principio estetico formale ma ad un ordine funzionale: “l’ospedale-edificio si organizza poco a poco come strumento di azione medica” (Foucault 1975). Più di duecento progetti sollecitano le coscienze dei medici sulle problematiche medico scientifiche dando vita a ciò che egli ha definito “nascita della clinica”: “l’architettura della clinica si definisce progressivamente per una serie di polemiche sull’ordine interno, la posizione, la dimensione, la distribuzione e il numero di queste nuove macchine, progettate per guarire un grande numero di malati in economia” (Foucault 1963).
Nel processo manualistico enciclopedico che domina la seconda parte del secolo (vedi Diderot e D’Alembert) l’ospedale entra a tutti gli effetti come protagonista al pari dei grandi edifici pubblici. È comunque sempre la concezione sanitaria dell’areazione che giustifica l’adozione dei padiglioni separati e indipendenti che possono godere quindi di una corretta ventilazione vista come strumento terapeutico. Così è per i progetti dell’Hotel Dieu di Parigi come l’Ospedale a padiglioni di Jean Baptiste Leroy (1773) riferito direttamente al tipo del Palazzo Reale (quello di Marly), il quale è caratterizzato da una grande corte rettangolare ai lati della quale si collocano i padiglioni paralleli e isolati che contengono le sale di degenza, mentre due corti separate contengono i servizi generali e l’amministrazione. L’impianto è simmetrico e sul fondale dell’asse, si trova un portico ad esedra con la chiesa in posizione centrale. Una variante dell’ospedale a padiglioni è costituita dall’Ospedale a raggiera o panottico di Antoine Petit (1774). In questo caso sei lunghi edifici sono raccordati da una corte circolare esterna, mentre nel punto di raccordo centrale si colloca una sala rotonda con un cappella che culmina con un camino conico che diviene l’elemento principale del ricambio d’aria. Da notare come la posizione centrale da sempre occupata dalla funzione religiosa sia ora occupata dal camino nella sua importante funzione tecnologica. Nel successivo progetto a panottico di Bernard Poyet (1785) la moltiplicazione dei padiglioni a raggiera, ben sedici, impongono una minima variazione nello spazio centrale non più simbolicamente occupato dal pieno del camino ma dal vuoto di una corte aperta al cui centro è collocato un tempietto religioso.
Quest’ultimo progetto è sostanzialmente coevo al progetto di Panopticon di Jeremy Bentham (1785-1791), un prototipo di edificio ideato per contenere indifferentemente una scuola, una fabbrica, un ospedale o una prigione, che diverrà la base per lo sviluppo di tutta una serie di progetti teorici dimostrativi sviluppati nel corso dell’‘800 per funzioni museali, sociali, ecc.
Nonostante sia comparso già dal Rinascimento, negli ospedali ottocenteschi si impone anche il teatro anatomico o teatro scientifico inteso come lo spazio della ricerca e dell’insegnamento medico che si configura come anfiteatro con sedute a gradoni rivolte verso il tavolo delle dissezioni. Benchè in origine si configuri come spazio tipologicamente non caratterizzato essendo per lo più ricavato in sale convenzionali allestite con gradoni in legno, esso avrà un’importanza fondamentale al fine di una variazione tipologica interna degli spazi di cura ormai divenuti spesso anche luoghi in cui impartire la disciplina medica. Accanto agli spazi di cura, quindi, il palinsesto tipologico spaziale si arricchirà di spazi in cui studiare le malattie o rendere trasmissibile il sapere medico: aule, gabinetti, laboratori, ecc.
All’evoluzione tipologica degli spazi di assistenza e cura concorrono anche gli organismi nati per specifiche categorie di bisognosi come modificazione di un principio (anche scientifico) che vedeva tutte le tipologie ricoverate in un unica struttura e spesso in un unico spazio al più raggruppati per esigenze funzionali. Nascono così in Italia gli Ospedali degli incurabili destinati anche ai folli, ai sifilitici ed in generale ai cronici, le Case di San Lazzaro per i lebbrosi, i Lazzaretti per i contagiosi nei casi non poco frequenti di epidemie, gli Alberghi dei poveri, nati dall’esigenza sociale di sottrarre alla delinquenza i soggetti senza lavoro. A partire dal ‘600 (a cui seguiranno le riforme settecentesche) la tendenza ad un’organizzazione più complessa e strutturata dell’assistenza medica seguirà lo stesso processo di classificazione e suddivisione delle patologie ed una progressiva diversa organizzazione delle conoscenze mediche nelle specifiche discipline.
Un caso interessante in cui l’assistenza medica si incrocia con l’assistenza sociale condividendo l’impianto tipologico è costituito dall’esperienza delle Workhouses inglesi note anche come Poorhouses, un tipo di ospizio dei poveri nato a seguito della diffusione della Pandemia da Peste nera del ‘300 e che ha avuto soprattutto tra sette e ottocento un'evoluzione tipologica tra assistenza, controllo e detenzione contraddistinguendone i caratteri di impianto. È proprio in questa progressiva modificazione delle esigenze socio-assistenziali, soprattutto a seguito della New Poor Law del 1834, che si ha un incremento del dibattito anche architettonico con una conseguente proliferazione dei progetti architettonici.
Fu così che l’architetto Sampson Kempthorne, il cui padre era amico del capo della commissione legislativa, inizia a sviluppare una serie di modelli di Workhouse: il primo consiste in una pianta cruciforme di 3 piani racchiuso in un corpo basso quadrato che delimita quattro cortili interni divisi tra donne, uomini, ragazze e ragazzi. Se la parte centrale a crociera era riservata alle funzioni residenziali, il corpo perimetrale ospitava laboratori ed esercizi commerciali che si affacciavano all’interno del cortile mentre all’esterno il tutto era delimitato da mura. Organismi chiusi verso la città, tanto da meritarsi il soprannome di “pauper bastilles" (bastiglie dei poveri) che progressivamente si adeguano sempre più al modello del panottico benthamiano ispiratore dal punto di vista formale ma anche concettuale dei progetti successivi di forma esagonale (con il corpo centrale a forma di Y) e ottagonale a raggera. È proprio questa tendenza verso il modello concettuale contenitivo e reclusivo del panottico che valse ai progetti di Kempthorne le critiche più feroci tanto che fu attaccato duramente anche attraverso una critica che oggigiorno si direbbe comparativa.
Progressivamente, il modello tipologico adottato si sposta verso il più classico tipo a padiglioni spesso utilizzato come ampliamento di Workhouse esistenti come nel caso di Manchester in cui il corpo aggiunto dell’infermeria costituito da cinque padiglioni lineari a tre piani formanti un pettine sono collegati al piano terra da un porticato aperto.
Con il diffondersi della manualistica ottocentesca, anche in Italia l’ospedale a padiglioni viene assunto come modello e sviluppato, forse in virtù di una più contenuta richiesta di posti, secondo una variante tipologica che vede i padiglioni posti accoppiati e replicati parallelamente mentre la corte centrale sostituita da un percorso porticato o in alternativa un unico edificio lineare di collegamento che distribuisce ai padiglioni su entrambi i lati. L’ospedale modello di Andrea Busiri, professore accademico di San Luca pubblicato in uno studio del 1884 e l’ospedale di Broni di Febo Bottini del 1889-90 sono gli esempi di queste due varianti tipologiche.
Tra ‘800 e ‘900 il modello a padiglioni subirà adattamenti geometrici e variazioni di scala anche mediante l’incremento della superficie verde che contribuirà a definirlo spesso come “ospedale-giardino", fino a raggiungere tipologie miste come nel caso dell’ospedale Forlanini di Roma di Emanuele Caniggia (1934) o il Niguarda di Milano dell’ing. Giulio Marcovigi con l’apporto di Giulio Ulisse Arata (1939).
L’anello di congiunzione tra l’ospedale a padiglioni e l’ospedale a monoblocco, che costituisce il successivo modello tipologico della modernità, è costituito dal progetto dell’ospedale di Brescia dell’ing. Angelo Bordoni (1938), un ibrido tipologico che unisce l’idea dell’ospedale a blocco con l’idea dei padiglioni. Una corte esagonale a sua volta suddivisa da sei percorsi di collegamento a raggiera, si collega ai vertici ad altrettanti edifici ad Y. Tre assi mediani distribuiscono dal corpo dell’ingresso separato ad altri due corpi esterni.
Il protofunzionalismo dell’ospedale di Brescia (progettato non a caso da un ingegnere) lascerà il campo al funzionalismo di stampo fordista che vede nella razionalizzazione, dei percorsi (orizzontali e verticali) l’aspetto più importante. Il monoblocco crescerà soprattutto in altezza (dai 4/5 piani fino a 12 o più in America) e si imporrà nel corpo urbano più nella massa unitaria e pesante che in una articolazione tipologica.
Il tipo a monoblocco, a cui si aggiungerà il tipo a poliblocco, giunge a maturazione a seguito di evoluzioni scientifiche mediche e tecnologiche (queste ultime non dissimili da quelle che hanno determinato l’imporsi del tipo grattacielo) e può essere considerato come uno sviluppo in altezza del principio del padiglione. Esempio di tale tipologia può essere assunto Hôpital Beaujon di Parigi del 1935 di Jean Walter, Urbain Cassan & Louis Victor Plousey, in cui l’impianto planimetrico formato da 4 ali raccordate da un corpo trasversale è replicato per quasi 10 piani a determinare un complesso di notevole massa architettonica.

A parte qualche eccezione, alle soglie del Razionalismo, l’ospedale diventa il campo della progettazione ingegneristica (dai singoli specialisti ingegneri come Marcovigi alle attuali società di ingegneria) con l’architetto che, quando presente come nel caso di Giulio Ulisse Arata a Niguarda, interviene sull’aspetto estetico ma non su quello tipologico.
Nel medesimo periodo però la parabola che va dalla scoperta della cura alla definizione degli ambienti di cura delle malattie sanatoriali fornisce proprio agli architetti razionalisti una tipologia da inventare e da interpretare secondo i canoni dell’architettura moderna. Se da un lato, quindi, la specializzazione ospedaliera esclude gli architetti dall’ospedale, dall’altro prende piede l’invenzione di strutture sanitarie e luoghi di cura specifici come i dispensari antitubercolari (Gardella, Alessandria, Sert-Torres, Barcellona), le colonie elioterapiche (BBPR, Legnano, Del Debbio, Roma), le colonie marine (Mazzoni, Tirrenia, Busiri Vici, Cattolica, Vaccaro, Cesenatico, ecc.) o i sanatori (Duiker, Hilversum, Lurcart, Puy de Dome, Aalto, Paimo) in cui gli architetti moderni possono affermarsi nel loro ruolo primario.
È proprio nella caratterizzazione di questi spazi di cura al di fuori dell’ospedale (nei casi italiani anche al netto della retorica di regime) che si ritrova quell’attenzione ben bilanciata tra dispositivo funzionale e identità architettonica che può essere assunta come base di partenza per la progettazione delle Case della Comunità contemporanee.

Nel caso dei dispensari antitubercolari, da un lato Gardella ad Alessandria (1936-38) e dall’altro i razionalisti del GATEPAC, Sert, Torres Clavé e Subirana a Barcellona (1934-36) mettono in atto lo stesso involucro a trasparenze modulate (grazie anche all’utilizzo in entrambi gli edifici del vetrocemento) entro impianti planimetrici diversi; lineare nel caso di Alessandria, ad L nel caso di Barcellona. È proprio a Barcellona in cui oltre agli spazi di profilassi e analisi preventiva delle malattie tubercolotiche sono presenti una biblioteca ed un auditorium nel tentativo forse di arricchire la dotazione strettamente sanitaria con funzioni culturali e sociali utili alla popolazione.
Le colonie elioterapiche ebbero un forte impulso in epoca fascista per combattere il rachitismo infantile ed in genere favorire l’irrobustimento dei giovani delle classi meno abienti tramite l’esposizione al sole. Sono spesso collocate ai margini delle città nelle posizioni più salubri e organismi che cercano nella conformazione dell’impianto la migliore esposizione solare. Se i BBPR a Legnano (1937-38) adottano un impianto composito suddiviso in due parti formalmente geometriche, la grande sala da un lato e gli ambienti accessori dall’altro con il corpo scala che funge da perno, Enrico Del Debbio a Roma (1933-35) fa dell’adattamento al luogo un principio compositivo che partendo dalla testata si sviluppa dapprima in maniera lineare per poi curvare attorno ad un giardino circolare. Meno vincolate all’ambiente risultano le colonie marine, che altro non erano che colonie elioterapiche poste in prossimità del mare per poter godere al meglio della talassoterapia.
Anche i sanatori si basavano sostanzialmente sul principio dell’elioterapia ed erano strutture nate per contrastare malattie croniche a lunga degenza, tipicamente respiratorie come la tubercolosi.
Tra gli spazi di cura extraospedalieri è questo il caso in cui la struttura per caratteristiche dimensionali si avvicina maggiormente all’ospedale tradizionale. Ciò nonostante non vi è l’adozione dei modelli tipologici ospedalieri ma l’invenzione di tipi che oltre a conformarsi al paesaggio divengono istituzioni totali e “modello di abitazione collettiva". Architetture perfezionate come “dispositivi tipologici per captare il sole" attraverso terrazze o verande come prolungamento delle stanze di soggiorno o, nei casi ideali, come vere e proprie stanze all’aperto.
I sanatori, da ultimo, ci consentono di recuperare una significativa esperienza europea condotta da figure di architetti del Movimento Moderno. Abbiamo immaginato questi spazi attraverso il più celebre sanatorio della letteratura, il Berghotel Schatzalp di Davos, progettato da Otto Pfleghard e Max Haefeli di Zurigo nel 1899 e descritto magnificamente da Thomas Mann in La montagna incantata. A differenza di quest’ultimo, molto avanzato dal punto di vista della conformazione spaziale terapeutica ma ancora piuttosto vernacolare nel linguaggio architettonico, gli esempi che citiamo affiancano anche una riflessione tipologica specifica nell’adottare per esempio il principio dei gradoni in sezione, così come ha fatto Tony Garnier nel progetto di stabilimento elioterapico (1917) progettato come parte del comparto sanitario della Cité Industrielle. ,
Per quanto riguarda le realizzazioni, invece, il sanatorio Zonnestraal a Hilversum di Jan Duiker (1920-28), costituisce il primo riferimento costruito reinventando la tipologia del padiglione tramite una logica di libera articolazione nello spazio spesso caratterizzato da pregevoli paesaggi naturali alberati. Le singole parti, quindi, sottostanno simultaneamente sia al principio generale dell’impianto che al principio delle asimmetrie dell’architettura moderna.
Coevo al sanatorio di Duiker è il sanatorio Puy de Dome di André Lurçat a Durtol (1929) un edificio planimetricamente lineare che sfrutta il declivio del terreno per suddividere in 3 porzioni l’altezza di 6 piani. L’attenzione all’abitazione del malato è massima compresa l’esigenza funzionale di esposizione diretta al sole risolta mediante la rotazione del letto direttamente sul balcone esterno.
Ma è soprattutto Alvar Aalto, che aveva avuto modo di visitare sia il sanatorio di Duiker che quello di Aalto in un viaggio del 1928, con il Sanatorio di Paimio (1929-33) che riesce nell’intento di fare dell’architettura sanatoriale un esempio sincretico di qualità funzionale ed estetica.
Lo stesso Aalto scrive che “Lo scopo primario dell’edificio è di funzionare come uno strumento medico ... Uno dei requisiti di base per guarire è quello di offrire una pace completa” (Pallasmaa 1998 17). Scopriamo una vocazione dello stesso Aalto nella progettazione degli spazi sanitari in quanto prima di Paimio aveva realizzato il piccolo ospedale municipale di Alajärvi (1924-28), due case per anziani e partecipato ai concorsi per la stazione termale a Pärmu, in Estonia e per il sanatorio di Kälviä. Nel 1931, inoltre parteciperà al concorso per l’ospedale centrale di Zagabria non classificandosi. “La qualità unica del progetto sta nella combinazione di criteri rigorosamente funzionali e tecnici con accorte considerazioni psicologiche” (Pallasmaa 1998 17).
Queste ultime erano dovute probabilmente anche alla concreta immedesimazione dei bisogni del malato che Aalto aveva potuto fare in quanto, l’esperienza personale di un ricovero mentre stava ideando il sanatorio lo aveva portato ad accentuare il punto di vista del paziente rispetto all’ambiente ospedaliero, ossia gli aveva permesso di mettersi nella condizione della massima debolezza.
Per lo più conosciuto come capolavoro architettonico che occupa un preciso posto sia nella storia dell’architettura europea che nelle opere del maestro finlandese il sanatorio di Paimio esprime appieno la concezione di un’architettura umanizzata. A differenza della stessa corrente diffusasi nella progettazione dell’edilizia sanitaria della seconda metà del novecento – l’umanizzazione dell’ospedale – in cui il bisogno è rilevato come necessità medica, l’umanizzazione dell’architettura di Aalto parte dall’architetto come necessaria attenzione ai bisogni psicofisici dell’uomo (Aalto 1940).
È proprio in un articolo pubblicato sulla rivista del MIT nel 1940 che Aalto porta ad esempio le attenzioni progettuali rivolte al malato che egli stesso ha adottato a Paimio.

L’ultima evoluzione tipologica del luogo di cura nella sua forma dell’ospedale è caratterizzata da uno sviluppo orizzontale anziché verticale nel definire una struttura comunemente chiamata “a piastra”. Complice l’imposizione del movimento megastrutturale degli anni Sessanta, che investe tutte le principali funzioni urbane pubbliche, anche l’ospedale si adegua a questa tendenza divenendo un complesso meccanismo di concentrazione di spazi e luoghi differenziati (reparti, degenze, servizi diagnostici, blocchi operatori e cliniche universitarie). Si vengono così ad integrare spazi e funzioni diverse cosicche nella sua complessità l’ospedale diviene stesso metafora di città e ne introietta anche la tassonomia distributiva e spaziale per esempio nel definire strade interne i percorsi o piazze i grandi spazi centrali di accoglienza. Tra questi complessi è da annoverare per esempio il Mc Master Health Center a Hamilton in Canada di Eberhard H. Zeidler (1965-71), una grande piastra modulare pressochè quadrata da cui emergono le torri trasparenti che contengono gli impianti di risalita. La densità planimetrica crea un intercalato tra spazi serviti e spazi serventi all’interno del quale si alternano i vuoti necessari a dare aria e luce agli ambienti interni. All’ordine modulare dei piani alti si contrappone il piano terra più disordinato nell’inserimento di funzioni e spazi eccezionali come la grande sala convegni.
In Italia sono maggiori le proposte progettuali che non le realizzazioni vere e proprie di ospedali basati su questo modello tipologico. Il concorso per il nuovo ospedale di Venezia del 1963 nella sua invenzione più interessante costituita dal progetto “Tadzio” del gruppo Romano Chirivi, Costantino Dardi, Emilio Mattioni, Valeriano Pastor e Luciano Semerani fornisce l’ispirazione a Le Corbusier del famoso impianto a turbina poi sviluppato in un organismo ad un solo piano nel progetto che il maestro svizzero presenterà nel 1965.
Sia il Mc Master Health Center che l’Ospedale di Le Corbusier si possono ascrivere agli esempi di composizioni a piastra nota anche come Mat-Building secondo la formulazione di Alison Smithson e Shadrach Woods testimoniata dal loro progetto per la Frei Universitat di Berlino del 1963.

Una variante dell’ospedale a piastra è costituito dall’ospedale a piastra-torre in cui a partire dal basamento a piastra di uno o due piani alcune funzioni vengono concentrate in un blocco sviluppato in altezza, “a torre”, appunto. È questo il caso di molte strutture di cui ancor oggi usufruiamo cresciute nel tempo per aggiunte progressive non rientranti in un organico disegno.
La contrazione demografica, la dispersione territoriale ed un’endemica carenza di risorse finanziarie da investire nell’edilizia sanitaria hanno fatto si che in Italia il tema degli spazi di cura e più genericamente degli ospedali sia passato sostanzialmente in secondo piano, tutt’al più oggetto di aggiunte autonome specialistiche o integrazioni isolate. Qualche buona prova (concorsuale o realizzata), dominano gli ultimi trent’anni del Secolo breve come i due ospedali realizzati da Luciano Semerani, a Trieste Cattinara (1969-71) e Venezia (1979-83), e il progetto di Carlo Aymonino per il Nuovo Ospedale di Mestre, (1988) poi realizzato da Emilio Ambasz.

A riportare l’attenzione sul tema dell’Ospedale ci ha pensato anche Renzo Piano che, a capo di un gruppo di lavoro1 individuato insieme all’allora Ministro della Sanità, Umberto Veronesi, realizza un nuovo modello di Ospedale che verrà inserito nel Piano Sanitario Nazionale 2001-2003 fondato su un decalogo di intenti costituito da altrettante parole chiave come Umanizzazione: Urbanità: Socialità: Organizzazione: Interattività: Appropriatezza: Affidabilità: Innovazione: Ricerca: Formazione. Nonostante la commissione auspicasse la costruzione di 40-50 ospedali in tutta Italia (che avrebbero rifondato completamente il sistema degli spazi della cura) esistono pochi ospedali che adottano tali premesse. Di quel prototipo rimane un metaprogetto che interessa anche gli aspetti tipologici:
È una nuova TIPOLOGIA DI OSPEDALE, CHE VOGLIAMO DEFINIRE multiblocco, CHE VORREBBE COGLIERE IL BUONO DELLA TIPOLOGIA A padiglioni (=DIMENSIONE UMANA) E MONOBLOCCO (=BUONA FUNZIONALITÀ della MACCHINA, buoni percorsi ma ALIENAZIONE).
LA NUOVA TIPOLOGIA è STUDIATA PER POTER CONIUGARE EFFICACEMENTE GRADEVOLEZZA E FUNZIONALITÀ (Mauri 2001).
Giunti all’attualità possiamo considerare conclusa questa breve ma veridica (come scrisse Longhi a proposito della sua storia dell’arte italiana) storia del tipo assistenziale-ospedaliero e del suo rapporto con la città.
Non prima però di accennare ad un ultima esperienza per certi versi paradigmatica che riguarda il concorso internazionale per il nuovo ospedale di Cremona ad affiancamento del precedente. È notizia recente la scelta del progetto vincitore sulla rosa dei cinque finalisti selezionati per la seconda fase: MCA - Mario Cucinella (Bologna), Park Associati (Milano), Foster + Partners (Londra, Gran Bretagna), Baumschlager Eberle Architekten GMBH (Lustenau, Austria), O.M.A. Office for Metropolitan Architecture (Rotterdam, Olanda). Non ci è dato vedere i progetti non ancora pubblicati se non quello del vincitore, Mario Cucinella, un grande anello circolare che nella migliore tradizione italiana contemporanea fa sfoggio di una sembianza paesaggistica infarcita di un apparato tecnologico sostenibile ma che dimentica la grande lezione tipologico-compositiva.
Dall’allievo di Renzo Piano ci si sarebbe atteso maggior aderenza non tanto ai principi generali del metaprogetto, ma a quel suggerimento tipologico definito «multiblocco, che vorrebbe cogliere il buono della tipologia a padiglioni (=dimensione umana) e monoblocco (=buona funzionalità della macchina» che lo stesso Piano ha indicato nel documento e che ha tradotto in alcuni suoi prototipi.
Dai primi comunicati relativi al concorso trapelano vecchi e nuovi slogan come “città nella città”, “coperture giardino” e “boschi climatici”. Una “non architettura” nascosta in un paesaggio verde artificiale che collude con il vicino “grande fiume”, il Po, e le sue geometrie precise: sempre che, come tanti casi recenti ci insegnano, le sembianze non siano un’esagerazione pretestuosa del renderista di turno. Qui però è d’obbligo sospendere il giudizio in attesa di più circostanziati materiali.

In considerazione della finalità di questo articolo – non una ricerca storica approfondita sul tipo dell’ospedale ma un contributo di supporto critico-conoscitivo alla progettazione –, la ricerca di un prototipo di Casa della Salute/Casa della Comunità ossia di un tipo architettonico nuovo è operazione da condurre sulla scorta dell’interpretazione dell’esperienza storica degli spazi di cura, analizzando al contempo le esigenze e le potenzialità in termini di congegni urbani.

Note
1 La Commissione del Ministero della Sanità, presieduta dal Ministro prof. Umberto Veronesi, coordinata dall’Architetto Renzo Piano, per lo studio e l’elaborazione di un nuovo modello di Ospedale ad alto contenuto tecnologico ed assistenziale Modello progettuale Piano-Veronesi, 2000 era composta da 16 membri: Raffaela Bucci, Giuseppe Caggiano, Antonio Cicchetti, Vittorio De Martino, Paola Di Martino, Velia Gini, Claudio Giuricin, Maurizio Mauri, Marcello Mauro, Laura Pellegrini, Michele Pintus, Manlio Tesio, Alessandra Vittorini.


Bibliografia

AALTO A., (1940) - “The Humanizing of Architecture”, in The Technology Review, Novembre, pp. 14-15.
AA.VV., (1979) – L’architettura della salute. Numero monografico della rivista Hinterland n.9-10, maggio-agosto
AA.VV., L’Architettura della salute. Luoghi e storia della Sanità lombarda, Regione Lombardia
BANCHIERI G., (2019) – Ospedali di comunità case della salute cure primarie, Joelle.
BELVEDERE F., (2010) – Lo spazio ospedaliero: tendenze in atto e indirizzi progettuali, Tesi di Dottorato, Università di Palermo.
BOLOGNA R., Torricelli M.C., (2021) – Gli spazi della salute, in Romano del Nord. Teoria e prassi del progetto di architettura, Firenze University Press, Firenze.
CAPOLONGO S., (2006) – Edilizia ospedaliera: approcci metodologici e progettuali, Hoepli, Milano.
COBOLI Gigli S., Monico G., Carabillò M., (2001) – “Il progetto Veronesi”, in Progettare per la Sanità, 64, pp. 28‐37.
COX A., Groves P., (1995) – Ospedali e strutture sanitarie, Dario Flaccovio Editore, Palermo
DALL'OLIO L., (2000) – L’architettura degli edifici per la sanità, Officina, Roma
DEL NORD R. (a cura di), (2008) – L’Ospedale del futuro. Modelli per una nuova sanità, EdA/4, Il Prato, Padova.
DIANA E., (2002) – “L’architettura dell’ospedale nella sua evoluzione storica”, in Salute e Territorio, anno XXIII, n.131, pp. 80‐91.
FERRANTE T., (2008) - Hospice: luoghi, spazi, architettura, Alinea, Firenze.
FERRARESI M., Pedace C., Tiezzi G., (2002) – L’ospedale di comunità. Una nuova risorsa nel panorama dei servizi sanitari, Il Pensiero Scientifico.
FONDI D., (2002) – Architettura per la sanità. Forma, funzione, tecnologia, Edizioni Kappa
FOUCAULT M., (1963) – Naissance de la clinique: une archéologie du regard médical (trad. it. Nascita della Clinica), Presses Universitaires de France, Paris.
FOUCAULT M., (1975) – Surveiller et punir: Naissance de la prison, (trad. it. Sorvegliare e punire), éditions Gallimard, Paris.
FOUCAULT M., (1976) – Les machines à guérir: aux origines de l'hôpital moderne, Institut de l'environnemen, Paris.
GIGLI G., (1994) – Ospedali: esperienze, progetti, normative, tecnologie, Gangemi Editore, Roma.
GRECO A., Morandotti M., a cura di, (2011) – Edilizia ospedaliera: esperienze e approfondimenti per una progettazione consapevole, Alinea 2011
GRUBEN G., Die Tempel der Griechen, Aufnahmen von Max Hirmer, Hirmer Verlag, München, 1980,
LI CALZI E., Bellini G., Del Boca G., (2008) – Per una storia dell’architettura ospedaliera, Maggioli.
MAURI M., (2001) – “Ospedali a misura dei bisogni di salute del territorio”, intervento al Congresso Forum P.A., 7‐14 maggio, Roma. Disponibile presso http://archive.forumpa.it/forumpa2001/convegni/7/7.2/maurizio_mauri/maurizio_mauri_72.pdf
MASCIADRI I., (2012) – Ospedali in Italia. Progetti e realizzazioni, Tecniche Nuove.
MELLO P., (2000) – L’ospedale ridefinito: soluzioni e ipotesi a confronto, Alinea, Firenze.
MELLO P. (a cura di), (1999) – Spazi della patologia. Patologia degli spazi, Associazione Culturale Mimesis, Milano.
MENS N., Wagenaar C., (2009) – Health care architecture in the Netherlands, NAI Publishers, Rotterdam
MEOLI F., (2015) – Innovazione organizzativa e tipologica per l’ospedale, Nuove proposte distributive, Gangemi editore, Roma.
MONL T., (2004) – Hospital Builders, Wiley‐Academy, Londra.
PALLASMAA J. (1998) –  Alvar Aalto, verso un funzionalismo sintetico, in REED P. (a cura di), Alvar Aalto 1898-1976, Electa.
PEVSNER N., (1986) – Ospedali, in Storia e caratteri degli edifici, Palombi, Roma
PETRILLI A., (1999) – Il testamento di Le Corbusier. Il progetto dell’Ospedale di Venezia, Marsilio, Venezia.
PRASAD S. (ed), (2008) – Changing Hospital Architecture, RIBA Publishing, Londra.
REDSTONE L.G., (1978) – Hospitals and health care facilities: an architectural record book, New York.
ROSSI PRODI F., Stocchetti A., (1992) – L’architettura dell’ospedale, Alinea editrice, Firenze
SACCHETTI L., Oberosler C., (2022) – Architetture resilienti per la sanità territoriale. Linee guida per la progettazione: un nuovo modello di Ospedale di Comunità, Franco Angeli
SPINELLI F., Bellini E., Bocci P., Fossati R., (1994) – Lo spazio terapeutico. Un metodo per il progetto di umanizzazione degli spazi ospedalieri, Alinea, Firenze.
STONE P., (1980) – British hospital and health‐care buildings: design and appraisals, The Architectural Press, London.
STUDIO AUA, “Concorso nazionale per il nuovo ospedale civile Venezia San Giobbe”, in “Casabella. Continuità”, n. 289, luglio 1964, pp. 16-19.
TERRANOVA F. (a cura di), (2005) – Edilizia per la Sanità, UTET, Torino.
TORRICELLI M. C., (2020) – “Gli spazi della cura come prolungamento della città”, in “Forward”, Spazi della cura
VERDEBER S, Fine D.J., (2000) – Healthcare Architecture in an era of radical transformation, Yale University Press, New Haven and London.
VERDEBER S., (2010) – Innovations in Hospital Architecture, Routledge, New York.
WAGENAAR C., Mens N., (2019) – Hospitals a design manual, Birkhäuser, Basilea.
ZANELLA R., (2022) – La sanità di prossimità. Case della salute, case e ospedali di comunità, farmacie multi-servizi nelle città dei «quindici minuti», Il Pensiero Scientifico.