









Nel 1956 si presenta l’occasione per Derek Crofton e Issy Benjamin, due giovani architetti di sudafricani, di progettare un edificio residenziale nella Snell Parade, a nord del Golden Mile, il lungomare di Durban. Secondo progetto degli architetti, Las Vegas fu l’occasione per consolidare la loro collaborazione, ma soprattutto per definire una tipo di architettura collettiva che, partendo dai principi del Moderno, assunse caratteri specifici locali (Benjamin 2012) (Fig.1)[1]. Trasferiti successivamente a Durban da Johannesburg svilupparono in città il loro particolare stile di progettazione che si consolidò nei lavori degli anni successivi e sino al 1964, quando Benjamin dovette abbandonare il Sudafrica, anche a causa delle leggi razziali imposte dal regime del National Party (1948-1994) (Benjamin 2012).
Dopo gli studi di architettura, conclusi alla fine degli anni ‘40 alla University of the Witwatersrand (Wits) di Johannesburg[2], Crofton e Benjamin nel 1951 si erano trovati a lavorare insieme nell’importante studio di Harold Hersch Le Roith (Benjamin 1997; Conradie 2014), che realizzava progetti, anche residenziali, dal rigoroso linguaggio moderno (Greig 1971). La lezione dalla scuola di Wits, fondata da Rex Martienssen e influenzata dal Movimento Moderno e da Le Corbusier (Herbert 1974), insieme al lavoro svolto con Le Roith, orienterà i due architetti, i quali inizieranno ad elaborare un loro “stile”, che riprendeva aspetti del Moderno brasiliano, adattandolo al contesto climatico e paesaggistico sub-tropicale della città.
Lo stesso Benjamin testimonia:
Durban ci ha dato l’opportunità di diventare architetti veramente ‘funzionali’, ‘poeticamente funzionali’ […]. Non subivamo la tirannia della simmetria, dell’asse e dell’angolo retto. Non temevamo la curva […]. Problemi difficili di circolazione e di progettazione sono stati risolti sulla spiaggia, nella sabbia bagnata» (Benjamin 1997, p.6).
Genesi e progetto dell’edificio Las Vegas
Una forte crescita urbana negli anni ‘50-’60, insieme alla pianificazione su base razziale della città promossa dal regime dell’apartheid, modificò radicalmente l’assetto del lungomare di Durban, che raggiunse il più importante sviluppo di tutto il Novecento (Grant 1992 p.174). Ciò avvenne soprattutto grazie all’imprenditoria privata che scelse l’architettura dello stile internazionale, semplice e priva di ornamento, come riferimento per costruire edifici in altezza destinati ad abitazioni o alberghi nella parte sud della spiaggia, frequentata dalla popolazione privilegiata di origine europea (Bodei 2022).
In questo particolare clima di sviluppo immobiliare Crofton e Benjamin ebbero la prima occasione di realizzare un progetto in collaborazione quando, nel 1952, venne loro proposto l’incarico per il Claridges Hotel[3] (ora Tropicana Hotel), omonimo di un importante albergo londinese, da realizzare nella zona sud del lungomare di Durban, davanti alla South Beach. Il progetto, ideato a Johannesburg in solo sei settimane (Benjamin 1997), proponeva un edificio composto da un piano terra a pianta libera, un volume parallelepipedo di undici piani, coronato da un piano attico con una pensilina a voltine (Architect and Builder 1955) (Fig.2). Grazie anche all’efficace prospettiva del volume realizzata da Benjamin, il progetto venne subito approvato dal Comune e la costruzione ultimata nel 1955 (Benjamin 1997). Con i soldi guadagnati Benjamin si trasferì nel 1956 con la moglie Gem per quasi un anno nell’isola di Ibiza, dove si dedicò alla pittura e al disegno: l’esperienza, come dice lui stesso, «gettò le basi per il resto della nostra vita» (Benjamin 1997 p.7).
In questo periodo si presenterà l’opportunità di realizzare il loro secondo progetto, la residenza Las Vegas, in un’area a nord del lungomare in grande espansione, commissionata da un cliente che intendeva lasciare un segno particolare in questa parte turistica della città. Probabilmente il fatto che i due architetti avessero già realizzato un albergo nella stessa zona e che Benjamin si trovasse all’estero a studiare l’architettura mediterranea ed europea convinse l’imprenditore ad assegnare loro l’incarico. Benjamin racconta che il progetto iniziò quando Crofton gli inviò ad Ibiza uno schema dell’area e uno schizzo con una proposta. Nella cucina della sua casa davanti al Mar Mediterraneo, partendo dai suggerimenti di Crofton, disegnò la volumetria con una vista prospettica colorata ad acquarello e la inviò al socio a Durban. In breve tempo il progetto venne approvato dal Comune e avviata la costruzione, poi ultimata nel 1957 (Benjamin 1997) (Fig.3).
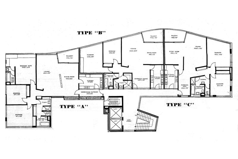
Las Vegas è un edificio di undici piani che ospita trentadue appartamenti di lusso. La volumetria, orientata in lunghezza sull’asse nord-sud, riprende lo schema tripartito del progetto del Claridge Hotel (basamento aperto, corpo centrale residenziale e ultimo piano, con attico e terrazza, coronato da una pensilina), ma ha un’articolazione volumetrica più complessa e leggibile dall’esterno. Nasce da un progetto ideato nelle tre dimensioni, con un forte legame tra interno ed esterno, definito in modo preciso anche grazie agli schizzi prospettici realizzati da Benjamin durante la stesura.
Al piano terra il fabbricato si estende su un intero isolato, in un lotto di 40x40 metri circa, perimetrato da quattro strade, di cui la principale è la Snell Parade del lungomare (Fig.4). Una pensilina, prospiciente la strada, incornicia la porta d’ingresso, inserita in una grande vetrata dell’atrio a doppia altezza, affiancato su un lato da una volumetria ad un piano, destinata all’appartamento del portiere e a sala riunioni, e sull’altro dal parcheggio interno, a cui è sovrapposto un mezzanino, con affaccio su una terrazza, da usare originariamente come area comune (S.A. Architectural Record 1958, p. 18)[4] (Fig.5).
L’aspetto importante dell’atrio è dato dalla sua articolazione spaziale, curva in pianta e scandita da pilastri neri a doppia altezza, mentre le vetrate d’ingresso e quella laterale, adiacente al patio della casa del portiere, danno luce all’interno, dilatando lo spazio e creando viste sulla vegetazione esterna. Tra i dettagli di spicco è particolare la presenza di un grosso pilastro nero che, oltre alla struttura, nasconde le tubature dei servizi dei vari piani, e, adiacente a scala e ascensori, è posto all’interno di una grande aiuola.
Si sovrappongono i dieci piani degli appartamenti[5], distribuiti in tre unità per piano secondo tre “tipi” diversi: due ad angolo, di cui una con tre stanze da letto (Type A) e l’altra con due (Type C), e una al centro della facciata principale con due stanze da letto (Type B), tutte rivolte ad est verso il mare (Figg.6,7). La volumetria degli appartamenti presenta, nella facciata ad ovest verso il lungomare, una doppia curvatura in pianta, scandita in facciata da ampie finestre a vetrata e balconi, che richiamano le linee del paesaggio antistante, mentre sul retro una facciata squadrata chiude la zona degli ascensori e scale.
Ciascun appartamento, dotato di armadi a muro, piastrelle colorate e parquet (Architect and Builder 1958, p.37), è distinto in zone comuni, articolate su uno spazio continuo che dal corridoio d’ingresso, con al lato la cucina, arriva sino al soggiorno, aperto da una grande vetrata e un balcone verso il mare. Corona l’insieme un attico, che ospita un’unità abitativa con terrazza, coperto da una pensilina aggettante dal profilo ondulato, che segue il profilo dell’edificio[6].
Una scelta oculata di colori e materiali diversi arricchisce ulteriormente la spazialità dell’intero complesso, mentre una fascia verticale, rivestita di ciottoli del vicino Umgeni River, evidenzia il basamento esterno e si insinua dall’ingresso nell’interno dell’edificio. Qui le pareti interne dell’atrio sono rivestite in legno a listelli verticali, in contrapposizione all’intonaco bianco dei solai a sbalzo della scala e del mezzanino, mentre il pavimento è formato da conci irregolari di pietra a mosaico, soluzione che continua nei piani superiori lungo i corridoi comuni e nell’ingresso interno sino alla zona pranzo e nelle terrazze degli appartamenti. Ai piani i corridoi comuni hanno muri intonacati di bianco intervallati da pareti in mattoni pieni e schermature con elementi di laterizio forato, che filtrano la luce, illuminano i percorsi e consentono la ventilazione necessaria al clima.
All’esterno le facciate, dipinte con colori di tonalità diverse[7], alternano parti intonacate, finestre, balconi e schermature in laterizio forato. Si crea così un gioco cromatico dove «la struttura viene espressa con il nero, i muri in bianco, le schermature in terracotta» (Benjamin 1997, p.7), generando una contrapposizione che si mantiene nei dettagli della scala e dei parapetti, i cui elementi verticali sono tinteggiati in bianco e il passamano in nero. L’inserimento poi di alcune aperture circolari sulle superfici in calcestruzzo, in verticale nella facciata laterale del parcheggio e in orizzontale nella pensilina curva di coronamento dell’attico, creano ulteriori ombreggiature e danno profondità all’insieme delle superfici.
Las Vegas e il Moderno brasiliano
In un articolo del 1958, pubblicato sulla rivista di architettura sudafricana Architect and Builder dopo l’inaugurazione di Las Vegas, si commenta: «Questo edificio sembra essere più vicino al contemporaneo con aree aperte per creare ombra e ventilazione necessarie al clima subtropicale, simile al lavoro svolto in Brasile» (Architect and Builder 1958, p.37). Come spiega anche Benjamin, tra i riferimenti che osservava da giovane «Le Corbusier era l’eroe del Movimento Moderno, ma, come parte di un piccolo gruppo di studenti anticonformisti, siamo stati influenzati […], certamente, dal libro Brazil Builds» (Benjamin 2012 p.4). Benjamin si riferisce qui al catalogo della mostra Brazil Builds: architecture new and old, 1652 -1942, realizzata al MOMA di New York nel 1943 (Goodwin 1943), e che, unitamente alla monografia su Oscar Niemeyer di Stamo Papadaki (1951), circolava tra i tavoli dei giovani architetti e studenti sudafricani del periodo (De Beer 2000)[8]. La pubblicazione, frutto di un viaggio di alcuni mesi del curatore Philippe L. Goodwin insieme al fotografo G.E. Kidder Smith, traccia una panoramica dell’architettura moderna brasiliana sino agli anni più recenti. Sfogliando le pagine sono evidenti gli aspetti di vicinanza tra Las Vegas e gli edifici contemporanei brasiliani, che a loro volta già adottavano da tempo, rielaborandoli, elementi noti e diffusi dell’architettura moderna, come i cinque punti di Le Corbusier e il calcestruzzo armato.
Ma soprattutto è importante l’uso dello schema tripartito nella volumetria (formata da un basamento su pilotis, su cui poggia un corpo centrale monolitico, chiuso a sua volta in alto da un tetto giardino/terrazza con volumetrie indipendenti)[9], che riprende il primo e più rappresentativo progetto del Moderno brasiliano, pubblicato nel catalogo: il Ministero per l’educazione e salute di Rio de Janeiro (Lucio Costa, Oscar Niemeyer e Alfonso Reidy, 1943). Si tratta di un edificio per uffici caratterizzato da un imponente parallelepipedo di quattordici piani, scandito da grandi brise-soleil, per schermare la luce e ventilare, sovrapposto a un basamento trasversale di due piani su pilotis, destinato alle funzioni pubbliche e in relazione con lo spazio pubblico circostante, mentre l’ultimo piano è coronato da una terrazza con forme curvilinee che si stagliano verso il cielo (Goodwin 1943).
Osservando Las Vegas e l’architettura del Moderno brasiliano risalta in particolare il loro legame molto stretto con il paesaggio e le condizioni climatiche del luogo. Lo stesso Le Corbusier, durante il suo viaggio in Sudamerica nel 1929, sorvolando in aereo Rio de Janeiro era rimasto colpito dall’estensione e maestosità dei paesaggi. Aveva quindi disegnato una proposta di sviluppo della città, in cui si raffigurava un’autostrada integrata con lunghi edifici curvi che seguivano la topografia e la linea di costa (Le Corbusier 1930), aspetti che poi architetti come Oscar Niemeyer adotteranno nei loro progetti. Durban, simile in questo a Rio de Janeiro, è caratterizzata da un clima umido, soleggiato e ricco di vegetazione, e da un paesaggio dirompente e molto esteso, anche per la presenza dell’Oceano Indiano. La forma curva del volume Las Vegas pensata da Crofton e Benjamin riprende infatti le linee di spiaggia e mare prospicienti l’edificio, mentre i pilastri, solai a sbalzo, pensiline curvilinee (elementi tipici del Moderno brasiliano) richiamano l’ambiente e il paesaggio circostante. Nell’importante complesso di Pampulha, progettato da Niemeyer in collaborazione con il paesaggista Roberto Burle Marx e il pittore Candido Portinari (Belo Horizonte 1942), pubblicato su Brazil Builds, le grandi vetrate a doppia altezza del casinò creano un legame con il lago artificiale all’esterno e le montagne sullo sfondo, mentre la pensilina, che si snoda dal ristorante a pianta circolare, si integra con le forme della vegetazione e del giardino, segnando l’ingresso della struttura (Goodwin 1943).
Si tratta di soluzioni che porteranno lo stesso Niemeyer a creare l’edificio curvo di Copan (San Paolo 1952-66), che romperà definitivamente con le volumetrie squadrate e razionali degli edifici modernisti.
Numerose sono poi i tratti peculiari legati al clima che Crofton e Benjamin traducono in Las Vegas, usando anche elementi di laterizio forati. Come le schermature solari, che scandiscono la luce dei corridoi interni e i parapetti dei balconi, e in cui si rielaborano i brise-soleil lecorbusieriani, ma anche le schermature, ricche di numerose varianti, dell’architettura tradizionale del sud d’Europa e quelle presenti in Brasile, in particolare a Rio de Janeiro nell’edificio del Ministero. Troviamo inoltre forature a griglia e balconature, che creano spazi intermedi di filtro tra interno ed esterno, già presenti nell’Hotel di Ouro Preto (Niemeyer 1942), nell’edificio di appartamenti di rua Bolivar, 97 a Rio de Janeiro (Firmino Saldanha 1940) di cui parla Brazil Builds, ma anche nel lungo volume curvato di Pedregulho a Rio de Janeiro (Reidy 1942) e nell’Ospedale di Lagoa (Niemeyer 1952). Tutti edifici che sicuramente erano noti ai due architetti sudafricani e sono l’elemento caratterizzante di una delle facciate di Las Vegas, ma che Benjamin riprende anche dall’architettura di Ibiza e delle Isole Baleari (Benjamin 1997 e Conradie 2014).
La creazione di uno “stile”
Come riferisce lo stesso Benjamin, in questo edificio «fu dove il nostro stile si realizzò» (Benjamin 1997 p.7).
I caratteri principali di Las Vegas, come si è visto, sono pieni di riferimenti, ma utilizzati con libertà espressiva dai due architetti sudafricani per creare una originale “tipo” di residenza collettiva, che, con numerose varianti, venne da loro riproposta nelle opere successive a Durban e dintorni.
A titolo esemplificativo possiamo ricordare gli edifici di Farringdon (1959), Hyde Park (1959), e West Point (1957-60), che anche se diversi per dimensioni e contesti presentano tratti e soluzioni comuni: le residenze di lusso inserite in un terreno in pendenza a Farringdon (6 piani e 9 unità), gli appartamenti di medie dimensioni all’interno di un ampio parco privato ad Hyde Park (10 piani e 37 unità), entrambi nell’area residenziale di Berea, infine la residenza di West Point (13 piani e 84 unità), destinata a monolocali con bagni comuni, costruita in un lotto di dimensioni minime (circa 12x24 metri) nel centro città e vicina al porto (Figg. 8,9,10)[10].
Il tema della tripartizione dell’edificio in basamento aperto, corpo centrale e ultimo piano con terrazza è lo schema principale sempre ripetuto, pur adattato con variazioni alle condizioni dei diversi siti: il basamento rappresenta il legame con il luogo e tra interno ed esterno; il volume centrale, che caratterizza per la facciata principale dell’edificio, è sempre destinato agli appartamenti; la copertura è formata dall’attico/terrazza, coronato da una pensilina. Farringdon, inserito in un terreno scosceso, ha l’ingresso al primo piano e il basamento, sfalsato su due piani, si apre con un grande pilastro a “V” verso il terreno in pendenza del giardino. Hyde Park, costruito sul rilievo di un parco, si relaziona alla topografia e al paesaggio con una grande pensilina curva su pilastri a sbalzo, che dal parco conduce all’ingresso (Architect e Builder 1959). West Point, infine, pur nelle piccole dimensioni del lotto, ha un piano terra aperto verso lo spazio pubblico della città. Il corpo centrale degli appartamenti nei tre casi ha una forma lineare ed è destinata sul retro principalmente ai servizi comuni e alla distribuzione, mentre sul fronte principale si presenta come una volumetria articolata e orientata verso la vista privilegiata: una facciata curva verso la città e il mare in Farringdon, formata da linee spezzate in pianta in Hyde Park e una particolare a “zig zag” nel caso di quella di West Point, entrambe orientate sul porto. L’uso dei colori per accentuare la percezione delle volumetrie è ugualmente particolare, come accade nel progetto originale di West Point, che presentava in facciata colori e ombreggiature dal grigio all’azzurro (Architect e Builder 1960), o di materiali diversi, come i ciottoli di fiume del basamento di Hyde Park e Farringdon, e infine l’inserimento di bucature nella pensilina del coronamento di Hyde Park e West Point. Questi aspetti sono completati da una serie di soluzioni architettoniche caratterizzanti: finestre isolate e/o d’angolo, singoli balconi aggettanti e aperture lungo i corridoi (Butler 1987). Tutti elementi che mostrano una particolare attenzione nel creare un rapporto tra interno ed esterno e punti di vista sul paesaggio.
Come spiega lo stesso Benjamin il suo lavoro con Crofton era inedito a Durban in quel momento e pochi gli edifici che utilizzavano il linguaggio del Moderno anche per sperimentare:
Il nostro lavoro […] credo abbia espresso una sorta di allegria, libertà ed esuberanza, lavorando in armonia con l’ambiente, naturale e artificiale. Anche noi siamo stati fortunati a condividere l’avventura. (Benjamin 1997, p.7).
Purtroppo, nel dicembre 1964 Benjamin emigrò in Gran Bretagna e questa interessante collaborazione venne interrotta:
con Derek, ebbi una partnership ideale. Ci siamo stretti la mano, abbiamo diviso tutto a metà, […] e quando me ne sono andato […], siamo usciti con una stretta di mano. È stata più di una simbiosi... è stata creata una sinergia e potevamo quasi leggere i pensieri l’uno dell’altro. (Benjamin 1997, p.6).
Note
[1] I lavori di ricerca su Crofton e Benjamin sono limitati. Da ricordare la mostra “Crofton & Benjamin Architects” (KZNSA Gallery, Durban, 2011), in parte pubblicata su KZ-NIA Journal, curata da Leon Conradie, con foto di Dennis Guichard (Benjamin, 2012).
[2] L’iscrizione all’ordine degli architetti del Sudafrica (SACA) di Derek risale al 1949, quella di Benjamin al 1950 (Benjamin, 1997; AA.VV. (2023). Crofton D.; Benajamin, I., 2023).
[3] L’incarico venne commissionato dall’importante investitore privato F.E. Jiran Esq (Lindsay, 2022, p.34).
[4] Per ragioni economiche nell’area comune davanti alla terrazza venne inserito un ulteriore appartamento, che portò a trentadue il totale delle unità abitative.
[5] Il volume d’ingresso, formato da piano terra e mezzanino, ha un’altezza di 6 metri, anche per garantire riservatezza ai piani superiori (S.A. Architectural Record, 1958, p. 18).
[6] Durante la costruzione la famiglia Raimondo, che viveva nell’edificio adiacente, chiese agli architetti e al costruttore, che acconsentirono, di aggiungere all’edificio un piano attico per la famiglia. Comunicazione telefonica con Frank Raimondo (14-7-2023).
[7] I colori originari, oggi in parte cambiati, erano probabilmente bianco, grigio, rosso mattone e blu scuro (S.A. Architectural Record, 1958, p. 18).
[8] Tra questi Norman Eaton e Helmut Stauch.
[9] Soluzione utilizzata da Le Corbusier in numerosi progetti, tra cui la Ville Savoye (1929), edifici collettivi come la Cité de Refuge (1933) e l’Unitè d’Habitation (1945), ma in particolare già il Padiglione svizzero (1930) di Parigi presenta un volume curvo (che in questo caso è al piano terra) e un basamento rivestito in pietra simili a Las Vegas.
[10] L’edificio è inserito tra il Rivera Hotel e l’Haven Court, progettati da Crofton e Benjamin.
Bibliografia
(1955) – “Claridges Hotel, Durban”. Architect and Builder (novembre), 50-58.
(1958) – “Apartment Block, Snell Parade, Durban”. Architect and Builder (aprile), 37-41.
(1958) – “Las Vegas, Snell Parade. Durban”. South African Architectural Record (giugno), 18-21.
(1959) – “Hyde Park Flats, Berea, Durban”. Architect and Builder (novembre), 40-43.
(1960) – “Westpoint, Flats, Esplanade, Durban”. Architect and Builder (giugno), 47-49.
AA.VV. (2023) – Artefacts.co.za [online] Disponibile a: <https://www.artefacts.co.za/main/Buildings/archframes.php?archid=5145&countadd=1> ; <https://www.artefacts.co.za/main/Buildings/archframes.php?archid=3118> [Ultimo accesso 20 giugno 2023].
BODEI S. (2022) – “Forme e immagini della città divisa: il lungomare di Durban durante l’apartheid (1948-1994)”. Storia dell’Urbanistica, 14, 314-329.
BUSH L.A. (2022) – A Model for Integrated, High-rise Urban Living: Learning from Durban’s Beachfront, Tesi di Master, Faculty of Engineering and the Built Environment, Department of Architecture, at the Durban University of Technology, Durban.
BULTER A. (1987) – Issy Benjamin. Aspects of his Durban Architecture. Journal of the Natal Provincial Institute of Architects, 1, 9.
BENJAMIN I. (1997) – “Issy Benjamin: Durban, my kind of town, my kind of people”. Journal of the KwaZulu-Natal Region of the South African Institute of Architects (KZ-NIA Journal), 2, 6-7.
BENJAMIN I. (2012) – “Intelligent Design…A life in architecture”. Journal of the KwaZulu-Natal Region of the South African Institute of Architects (KZ-NIA Journal), 2, 4-8.
CONRADIE L. (2014) – (Brochure) Crofton & Benjamin. Durban City Architects Guide, City Architecture Department eThekwini, 2014.
GOODWIN, P. L. (1943) – Brazil builds: architecture new and old, 1652-1942. The Museum of Modern Art, New York.
DE BEER I. (2000) – “Brazil”. In: Architecture 2000. A review of South African Architecture. South African Institute of Architecture, 109-110.
GRANT L.G. (1992) – An Historical Geography of the Durban Beachfront. Tesi di Master, Department of Geographical and Environmental Science, University of Natal, Durban.
GREIG D. (1971) – A Guide to Architecture in South Africa. Howard Timmins, Città del Capo.
HERBERT G. (1974) – Martienssen and the International Style. The Modern Movement in South African Architecture. A.A. Balkema, Cape Town, Rotterdam.
LE CORBUSIER (1930) – Précisions sur un état présent de l’architecture et de l’urbanisme. Crès, Parigi.
PAPADAKI S. (1951) – The work of Oscar Niemeyer. Reinhold Publishing Corporation, New York.