









In 1956, Derek Crofton and Issy Benjamin, two young South African architects, had the opportunity to design a residential building on Snell Parade, north of the Golden Mile, the beachfront of Durban. Las Vegas, the architects’ second project, was not only an occasion for them to solidify their collaboration but also to define a type of collective architecture that, starting from the principles of Modernism, would have specific local characteristics (Benjamin 2012) (Fig.1)[1]. Having relocated to Durban from Johannesburg, the two architects developed their particular style in the city, which was consolidated in their works in the subsequent years until 1964, when Benjamin had to leave South Africa, partly due to the racial laws imposed by the National Party regime (1948-1994) (Benjamin 2012).
After completing their architectural studies in the late 1940s at the University of the Witwatersrand (Wits) in Johannesburg[2], Crofton and Benjamin found themselves working together in 1951 at the prestigious studio of Harold Hersch Le Roith (Benjamin 1997; Conradie 2014), which executed projects, including residential ones, with a rigorous Modernist language (Greig 1971). The lessons from the Wits school, founded by Rex Martienssen and influenced by the Modern Movement and Le Corbusier (Herbert 1974), combined with their work with Le Roith, guided the two architects as they began to develop their own “style”, which drew on aspects of Brazilian Modernism, adapting it to the sub-tropical climate and landscape of the city.
Benjamin himself states:
Durban gave us the opportunity to become truly ‘functional’ architects, poetically functional [...]. We didn’t succumb to the tyranny of symmetry, of the axis and right angle. We did not fear the curve [...]. Difficult circulation and planning projects were solved on the beach in the wet sand (Benjamin 1997 p.6).
Genesis and Design of Las Vegas Building
A significant urban growth in the 1950s-60s, along with the racial city planning promoted by the apartheid regime, radically transformed the layout of Durban’s beachfront, which experienced its most significant development of the 20th century (Grant 1992 p.174). This was largely due to private entrepreneurship that chose International Style architecture, simple and free from ornamentation, to construct high-rise buildings for residences or hotels in the southern part of the beach, frequented by the privileged population of European origin (Bodei 2022).In this particular real estate development climate, Crofton and Benjamin had their first opportunity to work on a project together when, in 1952, they were offered the commission for Claridge’s Hotel[3] (now Tropicana Hotel), named after a prominent London hotel, to be built in the southern zone of Durban’s beachfront, facing South Beach. The project, conceived in Johannesburg in just six weeks (Benjamin 1997), proposed a building composed of a ground floor with a free plan, a rectangular volume of eleven floors, ending with a penthouse with a vaulted canopy (Architect and Builder 1955) (Fig.2). Thanks in part to Benjamin’s effective volumetric perspective, the project was immediately approved by the Municipality, and construction was completed in 1955 (Benjamin 1997). With the money he earned, Benjamin moved in 1956 with his wife Gem to the island of Ibiza, where he lived for almost a year dedicating himself to painting and drawing.
The experience, as he himself says, «laid the foundations for the rest of our lives» (Benjamin 1997, p.7). During this time, the opportunity for their second project arose. The Las Vegas residence, situated in a rapidly expanding area north of the beachfront, was commissioned by a client who intended to make a distinctive mark in this touristy part of the city. Probably the fact that the two architects had already completed a hotel in the same area and that Benjamin was abroad studying Mediterranean and European architecture convinced the entrepreneur to assign them the commission. Benjamin recalls that the project began when Crofton sent him a scheme for the area and a proposal sketch while he was in Ibiza. In the kitchen of his house facing the Mediterranean Sea, starting from Crofton’s suggestions, he drew the volumetrics as a watercolour perspective view and sent it to his partner in Durban. In a short time, the project was approved by the Municipality, and construction commenced, ultimately completed in 1957 (Benjamin 1997) (Fig.3).
Las Vegas is an eleven-story building, housing thirty-two luxury apartments. The volumetrics, oriented in length on the north-south axis, follow the tripartite scheme of the Claridge Hotel project (open basement, residential central body, and top floor with penthouse and terrace, dominated by a canopy), but with a more complex and readable volumetric articulation from the outside. It arises from a project conceived in three dimensions, with a strong connection between interior and exterior, precisely defined, also thanks to the perspective sketches made by Benjamin during the project’s development.
At ground level, the building extends over an entire block, on a lot of about 40x40 meters, bordered by four streets, the main one being the Snell Parade along the beachfront (Fig.4). A canopy facing the street, frames the entrance door, inserted in a large atrium glass window with double height, flanked on one side by a single-story volume, intended for the porter’s apartment and meeting room, and on the other by the internal parking lot, with a mezzanine above, overlooking a terrace, originally intended as a common area (S.A. Architectural Record 1958, p.18) (Fig.5)[4].
The significant aspect of the atrium is given by its spatial articulation, curved in plan and marked by double-height black pillars, while the glass walls at the entrance and the lateral one, adjacent to the porter’s house’s patio, provide light, expanding the space and creating views of the external vegetation. A noteworthy detail is a large black pillar, which conceals the structure and the service pipes of the various floors, is placed inside a large flowerbed next to the staircase and the elevators.
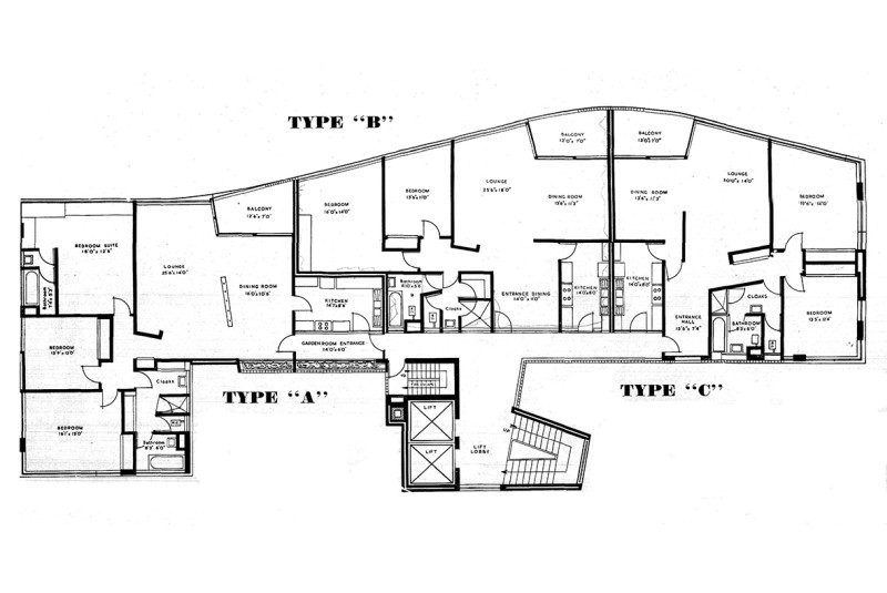
The ten apartment floors are superimposed[5], distributed into three units per floor according to three different “types”: two corner units, one with three bedrooms (Type A) and the other with two (Type C), and one in the centre of the main facade with two bedrooms (Type B), all facing east towards the sea (Figg.6,7). The volumetrics of the apartments feature, on the west facade in front of the beachfront, a double curvature in plan, marked on the facade by large glass windows and balconies, recalling the lines of the adjacent landscape, while on the rear a squared facade encloses the elevator and staircase area.
Each apartment, equipped with built-in wardrobes, coloured tiles, and parquet flooring (Architect and Builder 1958, p.37), is divided into common areas, articulated on a continuous space from the entrance hall, with the kitchen on one side, reaching to the living room, open to a large window and a balcony overlooking the sea. The ensemble is crowned by a penthouse, which houses a residential unit with a terrace, covered by a cantilevered canopy with a wavy profile, following the building’s profile[6].
A careful choice of colours and different materials further enriches the spatiality of the entire complex, while a vertical band, covered with pebbles from the nearby Umgeni River, highlights the external base and extends from the entrance to the building’s interior. Here, the atrium’s internal walls are clad in vertically slatted wood, in contrast to the white plaster of the cantilevered floor slabs of the staircase and mezzanine, while the floor is made of irregular mosaic stone blocks, a solution that continues on the upper floors along the common corridors and in the internal entrance to the dining area and apartment terraces. On the floors, the common corridors have white plaster walls interspersed with solid brick walls and screens with perforated brick elements, which filter light, illuminate paths, and allow necessary ventilation for the climate.
On the outside, the facades, painted in different colour tonalities[7], alternate plastered parts, windows, balconies, and screens in perforated brick. This creates a chromatic play where the «structure is black, the walls white, the screens in terracotta» (Benjamin 1997 p.7), generating a contrast that continues in the details of the staircase and the bannister; its vertical elements are painted in white and the handrail in black. The insertion of circular openings on the concrete surfaces, vertically on the lateral facade of the parking lot and horizontally on the curved canopy above the penthouse, creates additional shading effects and adds depth to the overall surfaces.
Las Vegas and Brazilian Modernism
In an article from 1958, published in the South African architecture magazine Architect and Builder after the inauguration of Las Vegas, one reads the comment: «This building seems to be more on the lines of the contemporary with open areas to give the shade and ventilation for a sub-tropical climate similar to work being done in Brazil» (Architect and Builder 1958, p.37). As Benjamin also explains, among the references he observed as a young architect, «Le Corbusier was the hero of the modern movement but as part of a small circle of maverick students we were of course influenced by […] the book Brazil Builds» (Benjamin 2012, p.4). Benjamin here refers to the catalogue of the exhibition Brazil Builds: architecture new and old, 1652 -1942, held at MOMA in New York in 1943 (Goodwin 1943). The catalogue, alongside Stamo Papadaki’s monograph on Oscar Niemeyer (1951), circulated amongst the desks of young South African architects and students of the period (De Beer 2000)[8]. Its publication was the result of a trip lasting many months by curator Philippe L. Goodwin together with photographer G.E. Kidder Smith, and it provides an overview of Brazilian Modern architecture up to the most recent years. When flipping through the pages, there are evident similarities between Las Vegas and contemporary Brazilian buildings, which in turn had already used, and readjusted, known and widespread elements of Modern architecture, such as Le Corbusier’s five points and reinforced concrete.
What is really important is the use of the tripartite scheme in the volumetrics (consisting of an open basement on pilotis, on which lies a monolithic central body, closed at the top by a garden/terrace roof with independent volumes)[9], which returns to the first and foremost project of Brazilian Modernism, published in the catalogue: the Ministry of Education and Health in Rio de Janeiro (Lucio Costa, Oscar Niemeyer, and Alfonso Reidy, 1943). This is an office building characterized by an imposing fourteen-story parallelepiped, marked by large brise-soleils, for shade and ventilation, superimposed on a transverse two-story base on pilotis, intended for public functions and surrounding public space, while the top floor is dominated by a terrace with curvilinear forms that stand out against the sky (Goodwin 1943).
Observing Las Vegas and Brazilian Modernist architecture, their very close connection with the landscape and climate conditions of the place stands out. Le Corbusier himself, during his trip to South America in 1929, flying over Rio de Janeiro in an airplane, was struck by the extent and grandeur of the landscapes. He then drew up a city development proposal, depicting a highway integrated with long curved buildings that followed the topography and the coastline (Le Corbusier 1930), aspects that architects like Oscar Niemeyer will adopt in their projects. Durban, similar in this to Rio de Janeiro, is characterized by a humid, sunny climate rich in vegetation, and by a disruptive and extensive landscape, also due to the presence of the Indian Ocean. The curved shape of the Las Vegas volume conceived by Crofton and Benjamin indeed echoes the lines of the beach and sea facing the building, while the pillars, the cantilevered slabs, curved canopies (typical elements of Brazilian Modernism) recall the surrounding environment and landscape. In the important Pampulha complex, designed by Niemeyer in collaboration with landscapist Roberto Burle Marx and painter Candido Portinari (Belo Horizonte 1942), published in Brazil Builds, the large double-height windows of the casino create a connection with the outside artificial lake and the mountains in the background, while the canopy, winding from the circular-plan restaurant, integrates with the shapes of the vegetation and the garden, marking the entrance to the structure (Goodwin 1943).
These are solutions that will lead Niemeyer himself to create the curved Copan building (São Paulo, 1952-66), which definitively breaks with the square and rational volumes of Modernist buildings.
There are numerous distinctive climate features that Crofton and Benjamin translate into Las Vegas, also through the use of perforated brick elements. Such as sunscreens, which mark the light in the internal corridors and the balconies’ balustrade, and in which Le Corbusier’s brise-soleils are re-elaborated, but also the sunscreens, rich in variations from traditional architecture in southern Europe and Brazil, particularly in Rio de Janeiro in the Ministry building. We also find grid perforations and balconies, creating intermediate filter spaces between interior and exterior, already present in the Ouro Preto Hotel (Niemeyer 1942), in the apartment building at rua Bolivar, 97 in Rio de Janeiro (Firmino Saldanha 1940) mentioned in Brazil Builds, but also in the long curved volume of Pedregulho in Rio de Janeiro (Reidy 1942) and in the Lagoa Hospital (Niemeyer 1952). All buildings that were surely known to the two South African architects and are the defining element of one of Las Vegas’s facades, but which Benjamin also takes from the architecture of Ibiza and the Balearic Islands (Benjamin 1997 and Conradie 2014).
The Creation of a “Style”
As Benjamin himself reports, in this building, «that was where our style really developed » (Benjamin 1997, p.7). Las Vegas’s main features, as seen, are full of references but used with expressive freedom by the two South African architects to create an original “type” of collective residence, which, with numerous variations, was later proposed by them in subsequent works in Durban and surrounding areas.
As an example, we can look at the buildings of Farringdon (1959), Hyde Park (1959), and West Point (1957-60), which, although different in size and contexts, present common traits and solutions: luxury residences set in a sloping terrain in Farringdon (6 floors and 9 units), medium-sized apartments within a large private park in Hyde Park (10 floors and 37 units), both in the Berea residential area, and finally the West Point residence (13 floors and 84 units), intended for studios with shared bathrooms, built on a minimal plot (approximately 12x24 meters) in the city centre and near the port (Figg. 8,9,10)[10].
The tripartition of the building into an open basement, a central body, and a top floor with a terrace is the main scheme that is always repeated, albeit with variations adapting to the conditions of the different sites: the basement represents the connection with the place and between the interior and exterior; the central volume, which characterizes the building’s main facade, is always intended for apartments; the cover consists of the penthouse/terrace, dominated by a canopy. Farringdon, set in a steep terrain, has the entrance on the first floor, and the base, staggered over two floors, opens with a large “V” pillar towards the sloping terrain of the garden. Hyde Park, built on a park relief, relates to the topography and the landscape with a large curved canopy on cantilevered pillars, which leads from the park to the entrance (Architect and Builder 1959). West Point, finally, despite the small dimensions of the lot, has a ground floor open to the city’s public space. The central body of the apartments in the three cases has a linear shape and is mainly intended for common services and distribution at the rear, while on the main front, it appears as an articulated volume oriented towards the privileged view: a curved facade towards the city and the sea in Farringdon, formed by broken lines in plan in Hyde Park, and a zigzag pattern in the case of West Point, both oriented towards the port. The use of colours to accentuate the perception of volumes is also particular, as in the original project of West Point, which presented facade colours and shades from grey to blue (Architect and Builder 1960), or different materials, such as river pebbles for the base of Hyde Park and Farringdon, and finally, the insertion of perforations in the canopy of Hyde Park and West Point. These aspects are complemented by a series of distinctive architectural solutions: isolated and/or corner windows, individual projecting balconies, and openings along the corridors (Butler 1987). All elements that show a particular attention to creating a relationship between interior and exterior and viewpoints on the landscape.
As Benjamin explains, his work with Crofton was unprecedented in Durban at that time, and few buildings used the language of Modernism even for experimentation: «Our [...] work I think expressed a sort of gaiety, freedom and exuberance, working in harmony with the environment, natural and man-made. We were lucky too in sharing adventurousness» (Benjamin 1997, p.7). Unfortunately, in December 1964, Benjamin emigrated to Britain, and this interesting collaboration was interrupted:
With Derek, I had an ideal partnership, based on a handshake, we split everything down the middle [...] and when I left [...], it was with a handshake. It was more than a symbiosis… a synergy was created and we could almost read each other’s thoughts (Benjamin 1997, p.6).
Notes
[1] Research studies on Crofton and Benjamin are limited. Worth mentioning is the exhibition “Crofton & Benjamin Architects” (KZNSA Gallery, Durban, 2011), partially published in the KZ-NIA Journal, curated by Leon Conradie, with photos by Dennis Guichard (Benjamin, 2012).
[2] Derek’s registration with the South African Institute of Architects (SACA) dates back to 1949, while Benjamin’s dates back to 1950 (Benjamin, 1997; VV.AA., 2023).
[3] The commission was entrusted by the prominent private investor F.E. Jiran Esq (Lindsay, 2022, p.34).
[4] For economic reasons, an additional apartment was added in the common area in front of the terrace, bringing the total number of residential units to thirty-two.
[5] The entrance volume, consisting of the ground floor and mezzanine, has a height of 6 meters, also to ensure privacy for the upper floors. (S.A. Architectural Record, 1958, p. 18).
[6] During construction, the Raimondo family, who lived in the adjacent building, requested the architects and the builder, who agreed, to add a penthouse floor for their family. Telephone communication with Frank Raimondo. (14-7-2023).
[7] The original colours, now partially changed, were likely white, gray, brick red, and dark blue (S.A. Architectural Record, 1958, p. 18).
[8] Among these were Norman Eaton and Helmut Stauch.
[9] This solution was also utilized by Le Corbusier in numerous projects, including the Villa Savoye (1929), collective buildings such as the Cité de Refuge (1933), and the Unité d’Habitation (1945). Particularly, the Swiss Pavilion (1930) in Paris already presents a curved volume (in this case at ground level) and a stone-clad base similar to Las Vegas.
[10] The building is situated between the Rivera Hotel and the Haven Court, both designed by Crofton and Benjamin.
Bibliography
(1955) – “Claridges Hotel, Durban”. Architect and Builder (november), 50-58.
(1958) – “Apartment Block, Snell Parade, Durban”. Architect and Builder (april), 37-41.
(1958) – “Las Vegas, Snell Parade. Durban”. South African Architectural Record (june), 18-21.
(1959) – “Hyde Park Flats, Berea, Durban”. Architect and Builder (november), 40-43.
(1960) – “Westpoint, Flats, Esplanade, Durban”. Architect and Builder (june), 47-49.
AA.VV. (2023) – Artefacts.co.za [online] Available at: <https://www.artefacts.co.za/main/Buildings/archframes.php?archid=5145&countadd=1> ; <https://www.artefacts.co.za/main/Buildings/archframes.php?archid=3118> [Last access 20 june 2023].
BODEI S. (2022) – “Forme e immagini della città divisa: il lungomare di Durban durante l’apartheid (1948-1994)”. Storia dell’Urbanistica, 14, 314-329.
BUSH L.A. (2022) – A Model for Integrated, High-rise Urban Living: Learning from Durban’s Beachfront, Tesi di Master, Faculty of Engineering and the Built Environment, Department of Architecture, at the Durban University of Technology, Durban.
BULTER A. (1987) – Issy Benjamin. Aspects of his Durban Architecture. Journal of the Natal Provincial Institute of Architects, 1, 9.
BENJAMIN I. (1997) – “Issy Benjamin: Durban, my kind of town, my kind of people”. Journal of the KwaZulu-Natal Region of the South African Institute of Architects (KZ-NIA Journal), 2, 6-7.
BENJAMIN I. (2012) – “Intelligent Design…A life in architecture”. Journal of the KwaZulu-Natal Region of the South African Institute of Architects (KZ-NIA Journal), 2, 4-8.
CONRADIE L. (2014) – (Brochure) Crofton & Benjamin. Durban City Architects Guide, City Architecture Department eThekwini, 2014.
GOODWIN, P. L. (1943) – Brazil builds: architecture new and old, 1652-1942. The Museum of Modern Art, New York.
DE BEER I. (2000) – “Brazil”. In: Architecture 2000. A review of South African Architecture. South African Institute of Architecture, 109-110.
GRANT L.G. (1992) – An Historical Geography of the Durban Beachfront. Tesi di Master, Department of Geographical and Environmental Science, University of Natal, Durban.
GREIG D. (1971) – A Guide to Architecture in South Africa. Howard Timmins, Cape Town.
HERBERT G. (1974) – Martienssen and the International Style. The Modern Movement in South African Architecture. A.A. Balkema, Cape Town, Rotterdam.
LE CORBUSIER (1930) – Précisions sur un état présent de l’architecture et de l’urbanisme. Crès, Paris.
PAPADAKI S. (1951) – The work of Oscar Niemeyer. Reinhold Publishing Corporation, New York.