La Sardegna e il suo Doppio. La realité virtuelle
nella Stazione dell’Arte a Ulassai.
Caterina
Lisini, Alberto Pireddu
Fig.
1 - Maria Lai, Stazione dell'Arte, 2006, collage di serigrafie,
Plexiglass 70x50 cm. Ph. Tiziano Canu. Courtesy Fondazione Stazione
dell'Arte
Fig.
2 - La stazione di Jerzu abbandonata. © Salvatore Sechi
Fig.
3 - La Stazione dell’Arte nel suo rapporto con la valle e il
paesaggio d’Ogliastra. © Sergio Aruanno
Fig.
4 - Planimetria generale. Progetto di Sergio Aruanno, Nazario Fusco,
Luigi Corgiolu, Demetrio Artizzu
Fig.
5 - Corpo 2 (ex fabbricato viaggiatori): sale espositive –
deposito quadri. Progetto di Sergio Aruanno, Nazario Fusco, Luigi
Corgiolu, Demetrio Artizzu
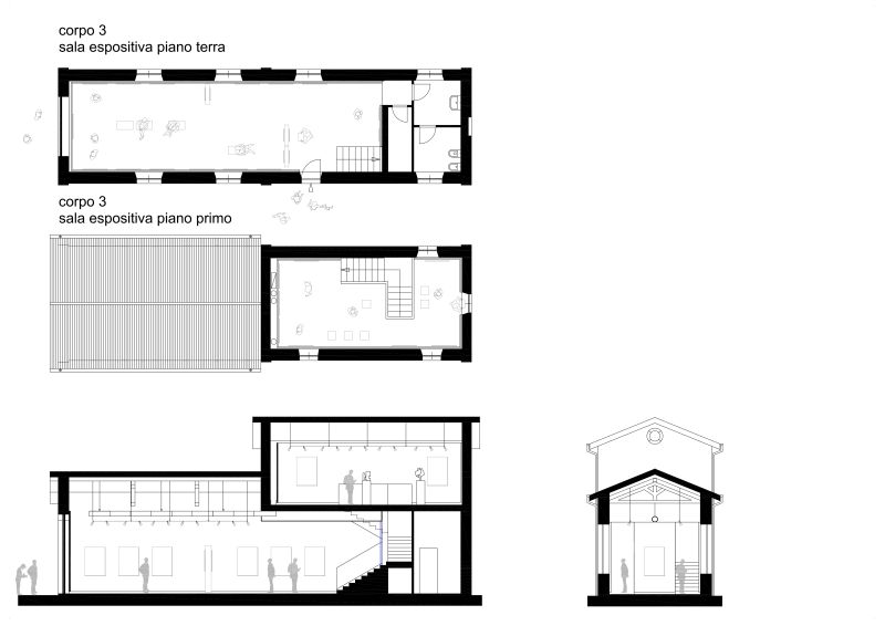
Fig.
6 - Corpo 3 (ex deposito treni): sale espositive. Progetto di Sergio
Aruanno, Nazario Fusco, Luigi Corgiolu, Demetrio Artizzu
Fig.
7 - Corpo 2, sala espositiva al piano terra. Veduta allestimento Maria
Lai. Sguardo Opera Pensiero. Ph. Tiziano Canu. Courtesy Fondazione
Stazione dell'Arte
Fig.
8 - Corpo 2, sala espositiva al primo piano. Veduta allestimento Maria
Lai. Sguardo Opera Pensiero. Ph. Tiziano Canu. Courtesy Fondazione
Stazione dell'Arte
Fig.
9 - Il lavatoio, interno, 1982-1989. Archivio Ilisso - Courtesy
Archivio Maria Lai
Fig.
10 - Maria Lai, La scarpata. Archivio Ilisso - Courtesy Archivio Maria
Lai.
La prima definizione di «réalité
virtuelle» compare tra le pagine del fondamentale saggio di
Antonin Artaud Le
théâtre et son double, del 1938, nel
quale l’autore ritrova una «misteriosa
identità di essenza» tra l’alchimia e il
teatro, due arti «per così dire, virtuali, tali
cioè da non contenere in se stesse né il loro
obiettivo né la loro realtà».
Se «l’alchimia, grazie ai suoi simboli,
è come il Doppio spirituale di un’operazione che
risulta efficace solo sul piano della materia reale», la sola
che «permette di produrre realmente
oro» (Artaud
1968, p. 165), il teatro appare come il «Doppio» di
una realtà più complessa di quella quotidiana di
cui, nel tempo, è divenuto un semplice rispecchiamento:
«Tutti i veri alchimisti – scrive Artaud
– sanno che il simbolo alchimico è un miraggio
come lo è il teatro. E questa perpetua allusione agli
elementi e al principio del teatro, che si ritrova in quasi tutti i
simboli alchimistici, deve essere intesa come l’espressione
(di cui gli alchimisti erano estremamente coscienti)
dell’identità fra il piano sul quale evolvono i
personaggi, gli oggetti, le immagini (e, in genere, tutto
ciò che costituisce la realtà
virtuale del
teatro) e il piano puramente ipotetico in cui evolvono i simboli
dell’alchimia» (1968, p. 166).
Parafrasando Artaud si potrebbe ritrovare ancora un parallelismo tra la
realtà virtuale del teatro e quella scaturita
dall’universo artistico di Maria Lai, cui non è
estranea una certa componente alchemica, per la sua capacità
di sublimare, non in oro, ma in pura bellezza anche il più
povero tra gli oggetti (un filo, un telaio, un drappo…).
Nel suo caso il “Doppio” è una Sardegna
dalla storia millenaria, di cui la Lai opera una personalissima
rappresentazione, creando personaggi, oggetti e immagini attraverso
un’arte che è prima di tutto conoscenza e
disciplina, e che trova nelle forme e nel tipo del suo museo una
coinvolgente manifestazione.
Come osservato da studiosi e critici1, nella società
contemporanea la funzione del museo sembra aver subito un profondo
mutamento: da contenitore di collezioni, custode e produttore di
cultura, esso tende a configurarsi come multiforme spazio culturale
destinato prevalentemente all’intrattenimento di un pubblico
auspicabilmente sempre più largo, dove il coinvolgimento
dello spettatore è affidato soprattutto alla componente
percettiva, a cui non è estranea una sollecitazione
curatoriale e di allestimento scenografica e teatrale, in una fruizione
essenzialmente sensoriale ed estetizzante. Nelle realizzazioni
più convincenti degli ultimi decenni il museo sembra
comunque conservare l’aspirazione alla dimensione di luogo
denso di significati piuttosto che diluirsi in un semplice
contenitore-palcoscenico per la “rappresentazione”
dell’arte, di cui la drammatica teatralizzazione del Museo
ebraico a Berlino di Libeskind è forse uno degli esempi
più densi ed eloquenti.
Tuttavia a dispetto della globalizzazione, gran parte dei musei
contemporanei, anche quelli più affermati e di rilevanza
internazionale, «portano tracce evidenti delle loro
specifiche storie e delle diversità culturali e di
sensibilità sociale dei contesti di origine», come
rileva Fulvio Irace (2009). Ciascun museo riflette infatti i
radicamenti in un territorio intellettuale e sociale che definisce in
generale l’attitudine di una determinata società
verso le complessità culturali e i valori spirituali
espressi dalla propria storia.
Questa singolarità è particolarmente evidente nel
contesto italiano a cui, secondo Andrea Carandini (2009), non
è congeniale, salvo poche eccezioni, il grande museo globale
di percezioni effimere e prospettive in fuga, mentre «offre
veri e propri tessuti
di bellezza articolati in campagne, villaggi,
città e musei».
La Stazione dell’Arte di Maria Lai, nella sua
capacità di evocazione di un territorio, nella sua azione di
rammemorazione di una identità collettiva, costituisce una
possibile accezione, nel senso delineato da Carandini, nella composita
gamma di declinazioni del museo contemporaneo. Un museo di piccole
dimensioni, legato strettamente alla personalità e alla
poetica dell’artista, in intrinseca relazione col territorio
di appartenenza e con l’identità storica e
culturale della popolazione insediata. Un museo al tempo stesso
profondamente calato nella contemporaneità del fare
artistico, per la centralità riconosciuta
all’esperienza sensoriale e all’aspetto percettivo,
concepiti però come attività di autentico
apprendimento, che coinvolgono il pensiero e l’immaginazione
in una continua riflessione sul linguaggio poetico e il significato
delle esposizioni. «L’opera d’arte
– sostiene Maria Lai – è un mutuo gioco
tra visione e pensiero: ciascuno anima e illumina l’altro in
un’unica esperienza» (2004a, ora in Pontiggia 2017,
p. 355).
La Stazione
dell’Arte
Posto su un costone isolato in faccia al borgo di Ulassai e alla
montagna che incombe, il Museo non è altro che il recupero
spoglio e essenziale dell’antica stazione ferroviaria
dismessa alla fine degli anni Cinquanta e la complementare
articolazione sul territorio circostante di opere
dell’artista che coinvolgono, in ruolo di protagonisti,
alcuni manufatti preesistenti e l’insieme del paesaggio,
colto nelle sue fattezze materiali e nella sua valenza evocativa: un
museo particolare, senza una esposizione e un allestimento fissi,
indissolubilmente legato alla variegata costellazione di interventi
pensati sul territorio, veri «luoghi dell’arte a
portata di mano»2, secondo una felice dizione della
stessa
Maria Lai.
Cuore centrale del museo è il complesso dei fabbricati che
componeva la stazioncina di testa della linea ferroviaria Gairo-Jerzu3:
tre semplici corpi di fabbrica parallelepipedi, dalle proporzioni
strette e allungate, coperti a doppia falda, dei quali
l’antica casa del custode, posta in margine del lotto in
prossimità della via di accesso, è trasformata in
luogo di ricezione dei visitatori, con biglietteria e bookshop, mentre
i corpi del fabbricato viaggiatori e del deposito dei treni sono
convertiti in spazi espositivi e di conservazione delle opere donate
dall’artista alla comunità di Ulassai.
L’intervento di ridestinazione, affidato agli architetti
Sergio Aruanno, Nazario Fusco, Luigi Corgiolu e all’ingegnere
Demetrio Artizzu, che lavorano in stretta collaborazione con la
Fondazione e con la stessa Maria Lai, direttamente coinvolta nel
progetto, risale al 20064 (la Stazione dell’Arte
viene inaugurata l’8 luglio 2006) e si è limitato
ad interventi minimi, contenendosi intenzionalmente in un lavoro di
sostanziale ripulitura e rimessa in pristino, senza aggiunte
volumetriche né alterazioni distributive o funzionali se non
quelle strettamente indispensabili alla nuova destinazione.
Una semplice fodera continua in legno ignifugo, concepita per
permettere la maggiore flessibilità espositiva e
disponibilità di allestimento, avvolge le intere superfici
interne in una bianca astrazione spaziale, mantenendo intatte le
proporzioni e le sembianze domestiche delle antiche architetture.
Pochi i tagli operati nel rivestimento continuo interno, appena qualche
isolata bucatura funzionale, ad accentuare la costruzione di una
geometria netta, di uno scrigno muto come quinta scenica per le opere
d’arte. E i tre manufatti, isolati sull’ampio
pianoro elevato dell’approdo dei vecchi binari e investiti di
nuovo significato, assumono una postura essenziale e diradata, come
piccole architetture a risonanza poetica, emanando un’aura
alchemica e sacrale.
Principale deposito della produzione dell’artista, la
Stazione vive come un herbarium,
una collezione di figure che sono i
segni e i vocaboli della sua arte ‒ i presepi, i pani, i telai, le
geografie, i libri cuciti e i libri di terracotta…‒, non
cristallizzata nell’interpretazione immutabile di
un’esposizione permanente ma riallestita ciclicamente in un
succedersi di rielaborazioni e reinterventi, sempre diversi, che volta
volta indicano nuove prospettive di lettura.
Se nel progetto contemporaneo di museo globale tende ad affievolirsi,
fino quasi a scomparire, la tradizionale raffigurazione tipologica a
favore di una dominante invenzione del dispositivo spettacolare di
percezione, il museo di Ulassai, nella tenace conservazione di semplici
tipologie di servizio, familiari ad una comunità e
riconvertite in astrazione, può costituire il paradigma di
una particolare tipologia museale, dove il congegno architettonico
perde di consistenza dimensionale e di articolazione funzionale ma non
di pregnanza semantica, diramandosi nel territorio e nel paesaggio, con
cui si confonde e di cui si alimenta e diventa interprete. Una diversa
ipotesi museale, in cui l’organizzazione fisica dei luoghi e
dei manufatti espositivi è intrinsecamente legata agli
oggetti d’arte esposti, allo sviluppo del percorso artistico
dell’autrice, alla storia del territorio, alle tradizioni e
ai gesti di vita quotidiana intrisi nel paesaggio costruito e naturale.
Altri esempi italiani paiono confermare la forza e il valore di una
scelta così singolare e solo apparentemente radicale. Come
non ricordare, a tal proposito, la Fondazione Emilio e Annabianca
Vedova ai Magazzini del Sale a Venezia, gli Ex Seccatoi del Tabacco che
a Città di Castello implementano gli spazi espositivi
già dedicati ad Alberto Burri nelle sale del Palazzo
Albizzini o, per rimanere in Sardegna, il Museo Nivola a Orani,
realizzato su progetto di Peter Chermayeff e Umberto Floris
all’interno del vecchio lavatoio e poi successivamente
ampliato?
Il museo progettato da Renzo Piano e Alessandro Traldi sulle Fondamenta
delle Zattere è un «proscenio per
l’universo di Emilio Vedova» (Eccheli 2016, p. 22),
animato solo dal movimento, quasi teatrale, delle tele del maestro. Lo
spazio così ottenuto, come rileva Massimo Cacciari,
è certamente memore della idea di continuum di
Vedova, con
la cui opera si pone in strettissima relazione: «è
un antro oscuro che è lì in attesa di divorarti,
esattamente come Vedova raccontava essere il suo rapporto con le grandi
tele delle sue opere, una sorta di ‘divoramento’,
come se lui fosse divorato dal suo fare pittura» (Traldi
2009, p. 163).
La Fondazione Burri nasce sotto l’egida dello stesso artista,
che scelse personalmente le architetture, ne curò il
recupero per fini espositivi e selezionò le opere che vi
sarebbero state esposte. A Palazzo Albizzini come negli hangar degli Ex
Seccatoi è stata la razionale essenzialità degli
spazi ad affascinare l’artista, al punto che il rapporto con
le misure straordinarie degli ambienti originariamente deputati alla
lavorazione del tabacco ebbe la forza di indirizzare la sua ricerca
verso un’arte più complessa e monumentale.
A Orani, la scelta di un luogo caro all’artista e alla
comunità, è stata fortemente sostenuta dalla
moglie di Nivola, Ruth Guggenheim, che vi ha collocato
l’opera scultorea del maestro, con una particolare attenzione
alla fase conclusiva de suo percorso.
I tre esempi sopra ricordati sono accomunati alla Stazione ulassese sin
dalla scelta di riscattare, attraverso l’arte, architetture
altrimenti abbandonate o inutilizzate, sottraendo il museo alla
specificità di un tipo ben preciso. Mentre a Venezia il
raffinatissimo intervento di Piano dimostra un profondo rispetto per
quei Magazzini che lo stesso Vedova aveva strenuamente difeso dalla
demolizione, contribuendo a riconoscerne il valore storico-monumentale,
a Città di Castello, a Orani e Ulassai,
l’essenzialità dell’intervento sul corpo
della preesistenza non può che rivelare una precisa
strategia in cui le più pragmatiche questioni di
economicità si incontrano con una poetica del silenzio,
volta a far incontrare gli artisti e i loro luoghi senza ulteriori
mediazioni.
Luoghi
dell’arte a portata di mano
Se la fabbrica della Stazione dell’Arte si pone come la
trasformazione di un luogo reale, crocevia di partenze e arrivi, in un
poetico luogo ideale, punto di avvio di nuovi itinerari culturali,
tutto intorno, nell’aspra conca del territorio di Ulassai e
diramata lungo le vie del borgo si dispiega la seconda natura del
museo, concepita nella tensione tra “ascolto” e
rappresentazione di un “altrove”: «il
paesaggio non si pone come luogo da arredare – sostiene Maria
Lai scrivendo al critico e amico Francesco Vincitorio – resta
protagonista e l’arte nasce per dargli voce» (2000,
p. 48).
Quasi palinsesto per una nuova scrittura, questo straordinario museo
all’aperto5,
come un atlante di viaggio, tiene insieme e
ricompone frammenti del paesaggio naturale e costruito di Ulassai, come
segni di una storia antica implementati di nuovi significati e di una
nuova trama di legami.
Così il vecchio lavatoio, luogo d’incontro
tradizionale delle donne del paese, viene trasfigurato in fatto
d’arte con interventi della stessa Lai e dei suoi amici
artisti Costantino Nivola, Guido Strazza, Luigi Veronesi. Varcare la
soglia di questo piccolo fabbricato di inizio Novecento6, ad un unico
piano e coperto a falde, segnato su tre lati da aperture ad arco a
tutta altezza, è come percorrere un’altra sala del
museo: all’interno la Lai costruisce, sull’ordito
delle tubature d’acqua a vista, la figura incompiuta e
trasfigurata di un antico telaio, sospendendolo al soffitto di dodici
metri per quattro, come una scultura a grande scala, il
Telaio-soffitto,
mentre Nivola riporta in vita le vasche in granito
dove si avvicendavano le lavandaie, installando con filiformi sostegni
metallici un gioco d’acqua continuo al cui effetto espressivo
concorre la calcolata sonorità del flusso
dell’acqua e dei gocciolatoi, la Fontana-sonora;
all’esterno invece, nell’incavo delle arcate sui
lati minori del fabbricato, Luigi Veronesi compone la Fontana della
sorgente e Guido Strazza realizza la Fontana del grano,
ridisegnando
anche la piccola piazza antistante.
Nel complesso un intervento corale, che trasforma un piccolo edificio
centro della vita comunitaria del paese in un episodio fortemente
simbolico a cui pittura, scultura, architettura concorrono
unitariamente in un affascinante effetto espressivo.
Al di là del Lavatoio, nel resto del vecchio borgo, i
multiformi interventi della Lai coinvolgono l’impervio
paesaggio di montagna d’Ogliastra nella vita del Museo, in
uno stretto rapporto tra spazio fisico, luogo e rappresentazione. Quasi
a voler risarcire tramite l’arte un paesaggio sempre
più ferito dalle frane e dal cemento, tre delle strade che
collegano Ulassai al mare e al suo entroterra più selvaggio
sono coinvolte in un progetto di «risanamento
estetico» (Lai e Pala 2006, p. 52) che opera sui dislivelli
naturali e sulle ampie superfici di possenti muri di sostruzione.
Nella direzione del santuario di Santa Barbara, è La strada
del rito, una narrazione per frammenti lungo un percorso
di circa sette
chilometri, nel quale l’artista finge di «dare voce
alla memoria delle pietre» (Lai e Pala 2006, p. 53),
riscrivendo nelle forme volutamente infantili di alimenti quotidiani il
miracolo evangelico della moltiplicazione dei pani e dei pesci,
ricollegandosi alla tradizione locale dei pani delle feste e
all’abbondanza di pesci nelle numerose sorgenti delle
montagne. Verso il mare, la strada de Le capre cucite
trasforma il muro
che domina la vallata del Pardu in una grande tela, a tratti bianca
come un lenzuolo teso ad asciugare, su cui cucire, con tondini di ferro
e fili per l’alta tensione, una moltitudine di caprette le
cui geometrie elementari richiamano quelle dei tessuti artigianali. A
nord, infine, verso la Grotta Su Marmuri e i pericoli di cui essa
è uno dei simboli più noti, i muri di
contenimento che introducono la grotta diventano Il muro del groviglio
accogliendo sulla propria superficie alcuni pensieri
dell’amico e maestro Salvatore Cambosu, incisi sul
calcestruzzo ancora fresco, come in un invito alla lettura e alla
riflessione per chi scelga di attraversare quei boschi nella ascesa
verso le vette.
Poco lontano è La
casa delle inquietudini, ultima
“anomala” sala del Museo che raccoglie, nel
recupero di un moderno edificio abbandonato di nessuna
qualità, una teoria di demoni neri dipinti, ombre paurose di
varani e draghi simbolo delle inquietudini di un’intera
comunità, e che si attraversa per raggiungere, nelle
immediate vicinanze, La
scarpata, sistemazione dal respiro monumentale
che segna simbolicamente la fine del percorso. Adagiata sulle pendici
della collina, questa sorge sul luogo occupato da una vecchia
discarica, in «uno spazio singolare, nella solitudine del
paesaggio selvatico» (Cuccu e Lai 2002, p. 17), inserita come
una quinta teatrale sospesa sul paese e la sua valle: dalle forme di
una grande geografia trapezoidale, metafora della storia del mondo e
della civiltà umana, è realizzata con elementi di
pietra e metallo capaci di riverberare la luce anche alla grande
distanza, segnando il trascorrere del tempo come un’imponente
meridiana.
Così, a differenza dei comuni parchi destinati ad accogliere
opere d’artista, il museo si costruisce nel tempo snodandosi
in un itinerario di architetture risignificate e opere di sostruzione o
sistemazione territoriale, a guisa di interpunzioni e segni di un
alfabeto estetico a grande scala, in cui volta volta è lo
scenario urbano e naturale, nella sue valenze di
rappresentatività storica o paesaggistica, a dettare la
cadenza.
In accordo con la particolare attitudine narrativa di Maria Lai il
museo riflette una poetica affatto particolare, legata
all’immaginario depositato in tradizioni e radici di un luogo
amato, eppure al tempo stesso capace di rifiutare ogni cedimento al
folklore e di prefigurare creativamente ricerche e tendenze largamente
affermate in seguito, come l’attenzione per la cultura
materiale o il rapporto simbiotico con il paesaggio, oppure ancora di
interpretare in senso domestico e corale forme d’arte
contemporanee quali la performance, l’installazione,
l’intervento ambientale.
In questo senso più che parlare di museo-territorio
è forse più appropriato parlare di museo
policentrico e polisemico, identificato in un molteplice museale
costituito insieme dalla poetica dell’artista, dai luoghi e
dall’insediamento di appartenenza, da pochi e semplici
manufatti architettonici carichi però di memoria e di valore
simbolico.
La Sardegna e il suo
“Doppio”
Nell’epoca contemporanea dove il museo tende ad accogliere un
presente indifferenziato, in un apparente annullamento di gerarchie e
distinzioni culturali, ed il rapporto con il passato e la conoscenza
tende a risultare sempre più appiattito
nell’uniformità universale del web, è
la capacità rabdomantica della memoria, con la sua
facoltà sotterranea di rimandare a relazioni non palesi e
sistematiche, in qualche modo alchemiche ma non meno reali e profonde,
a costituire l’essenza e la stessa organizzazione fisica del
Museo di Maria Lai.
La Stazione dell’Arte nella sua rarefatta consistenza
architettonica è come una grande trama incisa sul territorio
di Ulassai, che svela una diversa realtà virtuale, nella
costruzione del “Doppio” di una Sardegna disegnato
nell’intreccio enigmatico tra territori impervi e
l’insieme di leggende, miti, tradizioni. Come evidenzia Elena
Pontiggia (2017, p. 326) nel mondo di Maria Lai «non
c’è opera d’arte che non sia tessitura
di relazioni […] e non c’è conoscenza
che non sia costruzione di nessi logici e intellettuali. La tessitura,
insomma, è una metafora della cultura e della storia
dell’uomo».
Note
1
Tra le molte pubblicazioni sull’argomento si possono almeno
ricordare per le tesi sostenute in questo scritto: Forster K. W.
(1991); Werner P. (2005); Jean Clair (2008); Casabella n. 778 (2009);
Cristofano M. e Palazzetti C., a cura di (2011); Montanari T. e Trione
V. (2017).
2
Maria Lai inventa questa terminologia per il titolo di
un’opera costituita da quattro mazzi di carte contenenti
parole e segni per argomentare sul fare arte, leggere l’arte
e ridefinire l’arte, con chiaro intento artistico e
formativo. Secondo questa accezione possono essere intesi anche gli
interventi sul territorio che compongono il museo. Si veda Lai M.
(2002).
3
La linea ferroviaria Gairo-Jerzu inaugurata nel 1893, su un tracciato
montano di circa 9 km, collegava i paesi dell’entroterra
ogliastrino con la linea regionale Mandas-Arbatax. Molto amata dalle
popolazioni locali, fu dismessa nel 1956.
4
La Fondazione Stazione dell'Arte nasce nel 2006 a seguito della donazione di
oltre centocinquanta opere da parte dell’artista alla
comunità ulassese – la più importante
collezione pubblica a lei dedicata – e gestisce le
attività della Stazione dell’Arte. Nello stesso
anno viene realizzato il museo che nel 2008 è completato con
la sistemazione della quadreria-deposito ad opera
dell’architetto Sergio Aruanno e dell’ingegnere
Demetrio Artizzu. Nel 2019 su iniziativa dell'attuale direttore
artistico Davide Mariani l’originaria pavimentazione
è stata sostituita da una moquette nera.
5
Le opere realizzate da Maria Lai ad Ulassai sono: Via Crucis, 1981; Il telaio-soffitto,
1982; Il lavatoio,
1982-1989 (M. Lai, C. Nivola, G. Strazza, L. Veronesi); Le capre cucite,
1992; La strada del rito,
1992; La scarpata,
1993; Le cinque esse,
1998 (collocate nella facciata del museo dopo la sua inaugurazione in
forma di pannelli); Il
volo del gioco dell’oca, 2003; La lavagna, 2003; Libretti murati,
2003; Il muro del
groviglio, 2004; La
casa delle inquietudini, 2005; Pastorello mattiniero,
2005; Fiabe intrecciate,
a Gramsci,
2007; La cattura
dell’ala del vento, 2009. L’8
settembre 1981 aveva portato a termine l’evento Legarsi alla montagna,
con una straordinaria partecipazione da parte del paese, dando vita
alla prima opera di “arte relazionale” in Italia.
Possono considerarsi parte integrante del grande museo
all’aperto di Ulassai anche le opere di Guido Strazza (Alla luce, 2015) e
Marcello Maloberti (Cuore
mio, 2019). Sulle opere di Maria Lai a Ulassai si veda
Mariani D. (2019b).
6
L’edificio è stato costruito tra il 1903 e il 1905
dall’ingegnere Ernesto Ravot, tipica figura di tecnico
municipale dell’Italia umbertina, autore anche del municipio
del paese.