Depositing memory. From the museum-warehouse to the storage.

Federica Visconti




The man inhabit not only his house but the world: in this sense every works of architecture can be referred to an idea of house. However, the way our life dwells in the buildings is different. If the house is dwelled in a private way, others type of buildings are dwelled as by a community and, furthermore, they don’t have only the task of hosting activities but also of representing the values and the meanings that a community give them. The Museum, within public buildings, is the one that allows the broadest reflection: it shares, with the Library, the thematic instance of giving sense to a place where the ‘products’ of the human culture – that in the case of the museum have also an aesthetic value for themselves – are stored and, as in other ‘sacred’ spaces, the celebration of something that transcends, through art, the humanity because it is inspired by muse of which the museum is the house: μουσειον is, at the origin, the place where the daughters of Zeus, the most important god of the Olympus, and Memosine, titanide that personifies the ‘memory’, live. Starting form the oldest we know, built in Alessandria in Egypt, not by chance near to the Library, the museum has been a place to preserve but also a place to ‘activate knowledge’ and, in this way, the place par excellence of the thought and knowledge and of their transmission. Maurice Halbwachs (1987) defined the collective memory as «the whole of the traces of the past that a social group retains, elaborates and passes on from one generation to another in relationships with the materials of our history and with the contents of its traditions»: materials and traditions that are both in what in the museum is contained that in the container in itself.
Regarding the idea of museum as a path, during the Twentieth century two big Masters introduced significant innovations of sense. The first is, obviously, Mies van der Rohe with the Museum-Temple in Berlin and the second, whose work will be here discussed, is Louis Isadore Kahn with the Museum-Storage. This theme for the museum is suggested by the Lou Kahn un-built project for de Menil spouses in Houston through the different versions elaborated and in particular the sketches and the drawings that the architect titled exactly The storage. The word storage (deposito in Italian) comes from the Latin deposĭtum, neutral and used as noun past participle of deponĕre «depose» – to put down, to lay but then also to secure – and indicates the act with which, but also the place where, an object is deposed or it is entrusted to one person [to an Institution] so that it can be preserved and then given back. Related to this etymological meaning, very similar to the current meaning of the word scrigno/coffer that Kahn used for the museum, there is the possibility of interpreting the Museum-storage proposed by Kahn to John and Dominique de Menil as one of his ‘places of inspiration’, inspiration to the study, to meet, to expression (Kahn 1965). The museum in Houston – this is the innovation – is not longer a place where materials are ordered – certainly not in a chronological path – but rather preserved, stored and left to a more free fruition as well as a space where not programmed activities take place establishing, so more, a relationship with the urban surrounding of which Kahn draws the structure including houses, public spaces, the Rothko Chapel that conserves fourteen paintings by the artist, and his “Pantheon”, that extraordinary building of which he said: «When Hadrian thought of the Pantheon, he wanted a place where anyone could come to worship. How marvellous is the solution. A circular building incompatible with any organized ceremonial» (Kahn 1967).  On the other hand, it is well known that Kahn has been reflecting deeply on human institutions and their sense more than on their functional organization: «As a professional, you are obliged to translate the program of a client into that of the spaces the institution this building is to serve. You might say it is a space-order, or a space-realm of this activity of man […]» (Kahn 1969) – so Kahn to his students – and also: «I never read a program literally […] It’s like writing to Picasso and saying ‘I want my portrait painted … I want two eyes in it … and one nose … and only one mouth, please.’» (Kahn quoted by Scott Brown 1984). 
This idea of museum as storage – in this sense neutral when referred to the exhibition program – is a possible key of lecture of the three museum buildings by Kahn: the two buildings for Yale University in New Haven in Connecticut and – chronologically in between the Yale University Art Gallery and the Yale Center for British Art – the Kimbell Art Museum of Fort Worth in Texas. Following this reasoning, it is surprising that many pages have been dedicated to the description of the functional/exhibition programs of the clients while these don’t find a mechanistic correspondence in the plans of the architect that, on the contrary, stand out for their typological clarity and for the relationships with the context as well as for the significant spatial qualities.
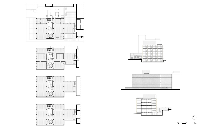
Louis Kahn started working at the project for the Yale University Art Gallery in 1951, after his trip in Italy, Greece and Egypt and, even if in a very short time, elaborated, as always, more than one version of the project; in this case, differently from what he will do for the other Yale building and for the Kimbell, not substantially different. Probably the reason is that the project – an enlargement of the existing gallery – is ‘constrained’ inside an area well delimitated to the south and the west by streets and to the east by the old gallery, facing to the north others buildings of the college. 
The building presents a rectangular plan where it is possible to note a central core for services and vertical connections occupying all the building thickness from north to south and 1/5 from east to west, sides where there are two wide and undivided rectangular spaces – ratio 3 to 5 – for exhibition at ground, second and third floor and for offices at first floor. A squared block, set back from the gallery façades, establishes a connection to the east with the pre-existing building. Kahn solves the matter of the relationship with the context and of the interior spatial quality through only two moves, with a simplicity that is not starting point but goal of a clever work.  
First move. Exterior space. The south façade, along Chapel Street, is completely blind and in brick, marked by drainers in correspondence of the floors that some sources refers to a later modification. The façade is only characterized by the shifting back of the block of connection with the old gallery that, nevertheless, “reveals” the entrance to the Art Gallery, if coming from the old campus in the frontal view. The entrance is completely in glass for the four levels, signed by metallic profiles as the other orthogonal façade along York Street and the façade on the garden of sculptures that leave, on the secondary street and to the north, glimpse and guess the life inside the building. It is, in the opinion of who is writing, a solution that takes to the limit and further the idea of the relationship ancient-new inaugurated, twenty years before, by Erik Gunnar Asplund with the project for the enlargement of the Town-Hall in Göteborg. If Asplund re-proposes the structure of the façade of the Swedish town hall like an undercut and an abstraction of the stylistic features of the existing building, Kahn brings the abstraction to an absolute level and designs this “silent” front that hides and unveils, at the same time, the place of the entrance.    
Second move. Interior space. Two lines of five pillars with 6 metres wheelbase represent the structure that cage the service block, the security staircase to the north and the triangular staircase included in a cylindrical volume. Here the fair-faced concrete prevails and the ceiling is lowered with a metallic ceiling, as well as metallic are the balusters and handrails while the floor, within the beams projection, is black. Sideways to this servant space, two served spaces – and undivided – of about 15X25 metres, with a light wooden floor, are “cleaned” thanks to structural solution for the concrete slab that engineer Henry A. Pfisterer, that worked in strict cooperation with Kahn, described as a   «[…] multiplanar truss system (space-frame) of equilateral triangles with the entire top surface filled in to provide the floor and with alternate inclined triangles in each of the three dimensions also made solid» (Pfisterer  quoted by Wurman 1986). The structural solution is also an architectural solution able to give form to the exhibition spaces allowing every equipment, both for lighting and for panel disposition for the works of art that Kahn thought lockable to the ceiling texture and placed on the floor only through thin, metallic feet.
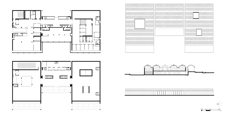
More than ten years are spent, when Kahn worked again on the museum theme, now in Texas, in 1967, for the construction of the new location for the Kimbell Foundation. The building was inaugurated in 1972, reaching the realized form after a long series of different solution elaborated, above all, because of the continuous budget revisions. The context where Kahn operated was really different from New Haven: Fort Worth is a populous but “widespread” centre, to the west boundary of the Dallas metropolitan area and the project area was without clear urban references, near the huge complex of not significant architectural quality Will Rogers Memorial Center. Kahn elaborated some solutions of a museum as a single squared volume and then he articulated the volume in two of different dimensions connected by a passage, always aligned along Lancaster Ave, on the south side of the plot. The final solution shows a rotated building, placed with the longer side on the north-south axis, in the back of the plot. The volume is now disarticulated in two symmetrical blocks hinged to a central block that defines the architecture of an entrance garden-forecourt before the construction of the pavilion by Renzo Piano interrupted the perspective path that Kahn has designed  in order to build this museum, probably for the absence of urban references, as a villa surrounded by a garden.
About the Kimbell, it could actually be possible to say, differently to what affirmed for the Yale Art Gallery, that all is solved by only one move. An interesting essay of the historian Jacques Gubler has already tried to demonstrate that a rational discipline is in the architecture by Kahn before the compositional play and this discipline is related to what Gubler define «[…] “gothicism”, which is […] in the figurative concomitance of plan and constructive system.» (Gubler 1985). 
Therefore, the span: 32x7 metres, with the longer side in the north-south direction, covered with a cycloid vault, repeated six time in the two lateral blocks and four in the central. Again coherently with the thematic interpretation of the villa, the spans toward the museum entrance become loggias with porticos as well as the last span is opened in the central block of which the façade is completely glazed. Also in this way, it is possible to interpreter the patios inside the building: the largest is in the north block and hosts the female figure by Aristide Maillol; another one, smaller, is in the south block and accommodates a sculpture by Émile-Antoine Bourdelle; the last is accessible from the basement and it is useful to enlighten some office spaces. Thanks to the basement construction, the ground floor could be free of all the service activities (less than the two level auditorium in the west span of the north block and the library in the central block). In this way the cleared space of the two avant-corps is defined only by the “galleries” that the roof solution transforms in space – indeed elaborated with engineer Auguste Komendant despite the many “stories” about this cooperation (Nordenson 1998) – thanks to the cycloid vaults longitudinally cut in order to place a skylight with a device for light reflection able to give to the space a silvery light without damaging the works of art. Between two galleries, “U” shape beams cover an area with flat and lower ceiling, with a different flooring; the beams host the plant ducting and pipes and produces different spatiality available for exhibitions; moreover, they are a lateral stiffening for what were called, improperly, vaults: improperly because they are, centrally emptied, thin shells that combine the behaviour of arch and beam (Nordenson 1998). Many authors have analogically linked the Kimbell’s structure to the project for Louvre Gallery by Hubert Robert (Cummings Loud 1991; Nordenson 1998) but perhaps it is possible to think that Kahn has realized the Boullée’s dream.    
The exterior appearance of this building, only 6 metres high, is based on the volumetric articulation of the principal façades and on the simple alternation of the concrete structure and the stonewalls. Overall, in Fort Worth, really the conclusion of the essay by Gubler seems to be irrefutable regarding Kahn’s architecture and his well-known knowledge of Viollet-le-Duc and Auguste Choisy: «From the sketches to the final step of the building site, the work of Kahn proposes, in its conceptual perseverance, the example (often virtuous) of a “typological logic” in which the construction system is primary for the composition.». (Gubler 1985).
Kahn worked again for Yale University in New Haven in 1970 with the project for the Center for British Art, a building opened to the public in 1977, three years after the architect’s death but well-defined already in 1974 in its fundamentals. Along Chapel Street the building is at the corner with High Street, opposite to the Art Gallery but isolated and in a independent position, without any constrains on the fourth fronts. Even if the building is more complex and larger, with more floors than the gallery, multifunctional (for example with shops at the ground floor along the streets), also here it is the span – now squared, 6x6 metres – that represents the underlying structure of the composition, able to give an order to all the spaces. The sequence, for nine times, of the two central spans longitudinally accommodates, at the ground floor, auditorium and the principal staircase – in the final solution very similar to the one in the Yale Art Gallery – and a squared and covered courtyard that represents the entrance hall from York Street. At the two higher levels, around the rectangular courtyard above the roof of the partially underground auditorium, Kahn realized a large library with two level spaces while the exhibition spaces are placed around the squared courtyard. The third floor, including the two courtyard, is completely covered by the skylights with truncated-pyramidal structure in concrete that have the goal to define, as the galleries in Texas, the spaces of the rooms for works of art.   
Once again, The Kahn’s museum, to the exterior, avoids monumentality and aims to the anonymity, relies to the frame exhibition in reinforced concrete, here closed by panels in brushed steel, but, thanks to the use of module and order, can allow any kind of variation: for instance denouncing, through beams’ interruption, the double height of the library to the east.
«Complicating is easy, simplify is difficult. In order to complicate, it is sufficient adding, all you want: colours, forms, actions, decoration, characters, rooms full of things. Everybody can complicate. Only few are able to simplify. In order to simplify, it is necessary removing, and in order to remove you must know what remove, as the sculptor makes when removes chiselling out to the stone mass all the material that is more than the sculpture he wants. […] Removing instead of adding means to recognize the essence of the things and communicate them in their essentiality.» (Munari quoted by Finessi and Meneguzzo 2007): these reflections by Bruno Munari seem much appropriate to describe the long and difficult work of Louis Kahn in the design of his museums able to define spaces that appears obvious in their simplicity, as they couldn’t be in a different way they are.
The sudden death of Kahn prevented the project for the foundation of the spouses de Menil in Houston to be perhaps the ‘last word’ about this idea of museum as a storage of precious things that it is not necessary to ordinate in a stable way. As known, the building of Menil Collection has been built, about ten years after, by Renzo Piano, referring only partially to Kahn’s idea and in an area near but different. 
The few preliminary drawings of the museum-storage, in addition to the general plans discussed at the beginning of this text, demonstrate that Kahn hasn’t still defined a final idea for the Menil Collection but he was working on a building able to combine the galleries of the Kimbell, here placed around a courtyard and not carved by patios, with the rooms of Center for British Art. «A museum could appear as a thing of little importance, until you realize it contains a treasure. A chest of precious knowledge.  What place it could be!» (Kahn 1972): this was the idea that Kahn has matured some month before receiving the commitment for the museum in Houston and that he would try to develop.
With a relevant time gap, today we could ask if it is possible that this ‘interrupted’ idea of museum as a storage-chest can suggest a key to interpreter some contemporary phenomena in the age of the World Wide Web that, as sharply noted (Baricco 2018), shouldn’t be quickly set aside as a new technological revolution but rather interpreted as the result of a deeper, mental revolution (perhaps even an insurrection).
Thus, from the warehouse as place able to keep and preserve to the storage as device able to memorize and record (Ferraris 2012) huge quantities of digital data, once again referred to the etymological meaning of the English word that is synonymous of conservation and memory. Also in this case, as for the museum-storage, the suggestion comes from a work: the project Italy of the city for the Universal Expo in Shanghai in 2010, signed by Peter Greenaway and Uberto Siola with a Scientific Commitee  composed of Renato Capozzi, Francesco Collotti, Gianni Fabbri, Gino Malacarne, Daniele Vitale, Federica Visconti, produced by Change Performing Arts. It is not easy to find a definition for Italy of the city: not far from the truth, it could be defined as a multimedia machine, an “architectural cinema” that narrated, in about 200 squared metres, temporarily equipped into the Italian pavilion in Shanghai, the Italian city in its chronological but, above all, morphological articulation. A city that is certainly place of memory but also of the current time, the fixed scene of the human life: in Italy of the city the Renaissance city of Laurana is the stage where Roberto Bolle dances, the Vittoriano’s stairs become the meeting place for young people, the urban spaces of Venice “rooms” where there are people from everywhere. Music that reminds the “heroic periods” of each city accompany the images: Antonio Vivaldi for Venice, Nino Rota for Rome, a city that, more than all the others, went trough all the ages and was also the city of Fellini. And, while the music plays, the images are overlapped, melt away, suddenly appear, fade into each other: not only photos or movie footages but also plans, drawings, paintings of cities as they are, have been or should have been in the dreams of architects and painters. At the end the chronological narration is interrupted, the rhythm grows and images of every ages are convened at the same time in the final sequence affirming, in this way, that all our tradition of “city builders” falls in the present time and can be elaborated once again to produce new meanings. In this sense, Italy of the Cities is a new and unprecedented Città Analoga – after the ones by Cantàfora for Triennale of Milan in 1973 and by Rossi for the Biennale of Venice in 1976 –, an architectural message conveyed through the language of art and cinema, contained in a huge quantity of images stored in a storage.
The artistic work of Peter Greenaway has always demonstrated, in different ways, a certain architectural sensitivity, thanks to his uncompleted studies in architecture. The reference is not only to his work as director and to the well known The Belly of an Architect and The Draughtsman’s Contract having as characters an architect and a landscape architect, but also to the experimentations – in some way direct antecedents of Italy of the city – with which he worked on some immense masterpieces of the painting of the past – La ronda di notte by Rembrandt, L’ultima cena by Leonardo, Le nozze di Cana by Paolo Veronese –  giving them light, movement, voice and so life. In all these works the British director has “Added” meanings to the image but always looking for the connection with the physical space of architecture and interacting with it: for the work by Leonardo in the Sala delle Cariatidi of Palazzo Reale in Milan, for Paolo Veronese in the Cenacolo Palladiano on San Giorgio Maggiore Island in Venice.
These are fascinating experiences and of great interest, also for the mix of different languages coming from different disciplinary fields but, in conclusion, the author of this text believes that the many multimedia exhibitions and virtual museums of our time are not even close to a singular artistic expression like that by Greenaway is. If they have an advantage, it is that of make accessible the art in a wider way, to who cannot travel, but the materiality of a work is not something to which is possible easily to renounce: it is surprising to discover how little is San Girolamo nello studio by Antonello da Messina and what level of detail – other than pixels! – contains. And even less, until the mankind physically will inhabit the world and want express his shared values through architecture – it will be possible to renounce to the spatiality of the museum, a building that was born sacred and so remains, emblematically in Kahn’s projects: «[…] where the light enters the space via an indirect route, without the beholder perceiving its site of origin, [and] the result is an “unfathomable” and “mysterious” impression, one that works its “enchantment”» (Boullée 1967 quoted by Schröder 2019).