Fig.
1-2 - Jan Szpakowic, house in the wood in Zalesie Dolny (Warsaw) -early
‘60s.
On the left floor-plan of the three living rooms facing the
separate nuclei of the two sleeping rooms, kitchen, bathroom and
wardrobe.
On the right a picture by Marek Kambler showing the
different heights of the floor-slabs and the connection between the
building and the wood.
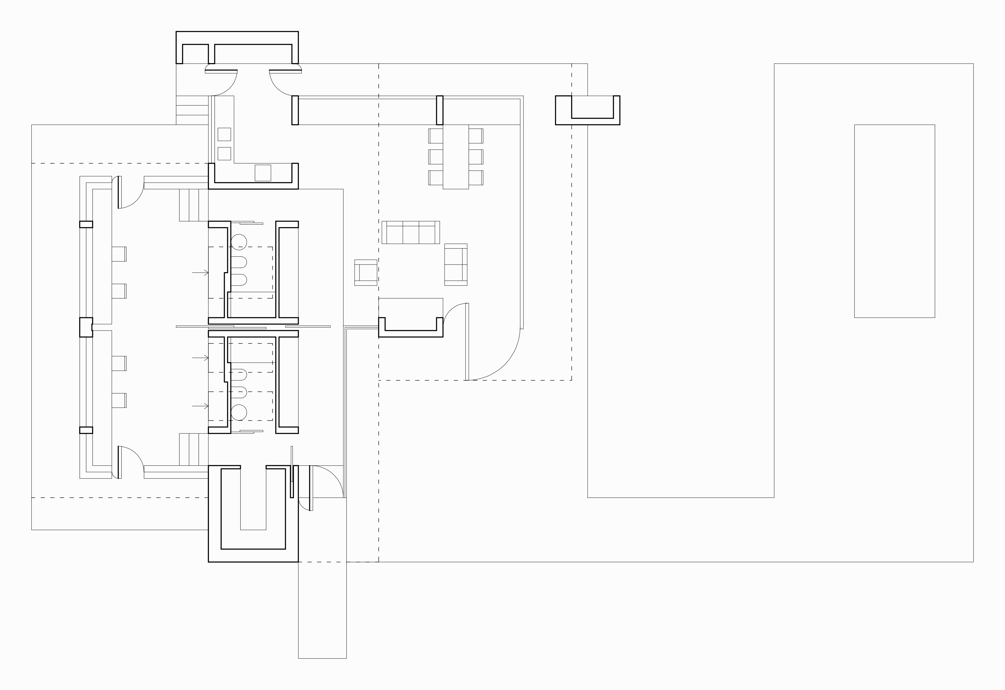
Fig.
3-4 - M. Zammerini, study of a single-family house, 2020. On the left,
floor plan with pulled-out beds between the two overlapped floor slabs
in the sleeping space, section and perspective. On the right,
floor-plan with the beds located inside the space between the two floor
slabs to realize two study rooms which can be joined to form a single
work-, study or workout place.

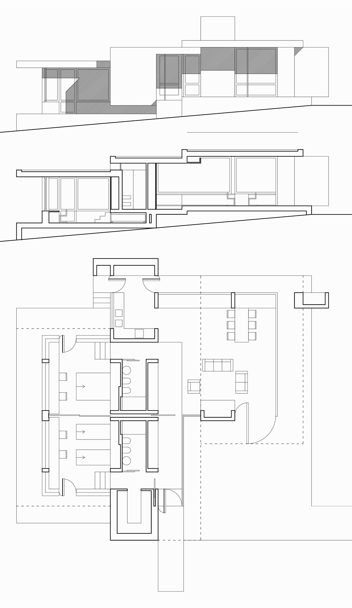
Fig.
5 - M. Zammerini, study of a single-family house, 2020. the three
colours show the communal hall, the bigger flat, and the unit which can
be turned into an autonomous dwelling space.
Fig.
6 - M. Zammerini, study of a multiple-family residential unit with
communal walkways with 40 sq.mt dwelling spaces for as many as 4
occupants, 2018. Each unit can be divided into parts and converted into
a living space for study, leisure, work and workout activities. From
bottom to top: the serial shell structures, the living space
floor-plan, the sleeping space lay-out, the perspective.