Terremoti, calamità naturali, strategie di ricostruzione


Enrico Bordogna




I temi che un evento catastrofico chiama in causa, sia esso di origine bellica o naturale, sono molteplici e assai complessi.

Al di là della fase di emergenza, le questioni coinvolte sono di matrice molto diversa, e tra loro fittamente intrecciate: questioni di natura economica, che riguardano la base produttiva, agricola, industriale, commerciale del contesto colpito, e la connessa rete infrastrutturale; questioni di pianificazione urbanistica, dal livello territoriale e comprensoriale, a quello comunale e dei piani attuativi di singoli comparti edilizi; questioni più strettamente architettoniche, di natura morfologica, tipologica, formale, che a loro volta necessariamente coinvolgono problemi di ingegneria antisismica e il punto di vista del restauro e della conservazione; il tessuto abitativo di base e dei servizi di prossimità e, insieme, le emergenze monumentali e la trama delle strade e degli spazi pubblici, con le rispettive fenomenologie di danni ed esigenze di restauro-ricostruzione. E dietro, o di fianco, a tutto ciò, il quadro legislativo-attuativo e procedurale-gestionale connesso, con i vari enti preposti alla fase di emergenza e a quella della ricostruzione, con il conflitto tra il prevalere dello Stato centrale o il primato delle autonomie locali, delle popolazioni colpite e delle loro organizzazioni cosiddette spontanee.

Come si vede, un intreccio quasi inestricabile.

Anche la letteratura dedicata, peraltro, presenta una analoga complessità, temporalmente molto vasta come è e irta di punti di vista e scale di approccio molto variegati, non tutti facilmente districabili e ricomponibili.

Può aiutare ad orientarsi assumere un punto di vista specificamente progettuale, riflettendo operativamente su quali siano state le strategie di ricostruzione nei principali eventi sismici del secolo scorso e dei primi decenni di questo secolo, valutandone i risultati, gli aspetti positivi e quelli più problematici o decisamente negativi, le difficoltà oggettive, le complessità di condizioni al contorno, le aporie, gli eventuali successi. E ciò a partire da un caso concreto, quello del sisma che ha colpito l’Italia centrale nell’estate-autunno del 2016, avendo come guida di analisi l’obbiettivo di elaborare dei progetti di intervento, urbanistici e architettonici, che, pur nella consapevole sperimentalità didattica, assumano i problemi e le difficoltà nel concreto, verificandone nel progetto le possibili risposte.

Terremoti e ricostruzioni nell’Italia del ‘900

Le vicende del secolo scorso si aprono col terremoto di Messina del 28 dicembre 1908. Di magnitudo 7.2, con circa 90.000 morti e 100.000 sfollati, ha colpito entrambe le città dello Stretto, Messina e Reggio Calabria, provocando la quasi distruzione integrale della prima. Il piano di ricostruzione dell’ingegnere Luigi Borzì, del 1910, affiancato dall’importante lavoro architettonico di Francesco Valenti, si conforma alla morfologia preesistente al sisma risalente al Piano Spadaro del 1869, riproponendone il medesimo impianto planimetrico e topografico a scacchiera su isolati rettangolari allungati, uniformando la conformazione architettonica a criteri compositivi, di densità edilizia e metodi costruttivi contemporanei dell’epoca. A questo fine il piano introduce precise prescrizioni urbanistiche circa larghezza delle strade (almeno m 10) e altezza dei nuovi fabbricati in rapporto alla sezione stradale su cui affacciano, ottemperando al tempo stesso alle norme antisismiche rigidamente introdotte subito dopo il disastro da appositi Decreti Regi. Una ricostruzione che, pur tra pareri contrastanti, è stata per lo più valutata positivamente, quanto meno fino agli anni Cinquanta, tanto più se confrontata con la città tradita dei decenni successivi[1].

In questa linea d’intervento un valore emblematico ricopre la ricostruzione del fronte a mare, la storica “Palazzata”. Cominciata con un primo intervento negli anni Trenta ad opera degli architetti Camillo Autore e Giuseppe Samonà, è proseguita nei decenni successivi, fino ai primi anni Sessanta, con la costruzione da parte di Giuseppe Samonà di 11 isolati a blocco, caratterizzati da un medesimo filo di gronda e da una accentuata omogeneità compositiva, segnata da un partito architettonico moderno, in qualche modo riferibile a quello che è stato definito il “classicismo strutturale” di matrice perretiana, che si ritrova anche nel coevo edificio dell’Inail a Venezia di Samonà ed Egle Trincanato.

Il caso del Belice, del gennaio 1968 con una serie di scosse successive fino a febbraio 1969, è più complesso e variegato. Di magnitudo 6.4, con circa 300 morti e 70.000 sfollati, ha colpito duramente i comuni della valle, e con diversa e minore intensità una serie di territori contermini delle provincie di Agrigento, Trapani e Palermo. A fronte di comuni quasi interamente crollati, come Gibellina, Poggioreale, Montevago, Santa Margherita del Belice, altri hanno subito danni di minore gravità, limitati a singole parti degli abitati o singoli edifici monumentali. Di conseguenza anche le vicende di ricostruzione sono differenziate, con alcuni casi di città di nuova fondazione più o meno lontane dai centri preesistenti, disegnate (per lo più dagli architetti e urbanisti dell’ISES, Istituto Nazionale per lo Sviluppo dell’Edilizia Sociale) secondo schemi architettonici e urbanistici di carattere modellistico, slegati dalla tradizione locale, di astratta derivazione nordica o anglosassone, ed altri casi di “addizioni” parziali, di ricostruzione di singole parti di città o di complessi monumentali, con interventi più misurati e minutamente disegnati.

Tra le città di nuova fondazione spicca senz’altro la nuova Gibellina, ricostruita una quindicina di chilometri a valle della Gibellina storica, dove un impianto non del tutto felice e forse troppo dilatato, impostato su un disegno a farfalla, come è stato detto, con teorie di case a schiera tra la strada pedonale antistante e la strada automobilistica retrostante, è riscattato, per la tenace volontà di un sindaco illuminato, Ludovico Corrao, da una sequenza di interventi di grande qualità artistica e architettonica, con le piazze di Purini e Thermes, le architetture degli edifici pubblici di Samonà, Quaroni, Gregotti, Francesco Venezia, Marcella Aprile, Roberto Collovà, le sculture urbane di Pietro Consagra, Mimmo Paladino, Fausto Melotti, Emilio Isgrò, Nanda Vigo, Alessandro Mendini, e lo straordinario capolavoro di Alberto Burri sui resti della Gibellina vecchia distrutta e abbandonata. Mentre di risvolti più formalistici, sia nel disegno urbano che nei caratteri architettonici, è la ricostruzione di Poggioreale (uno di quei casi dove le ruspe sono state forse più dannose del sisma), col nuovo borgo realizzato poco più a valle dell’insediamento antico.

Ancora diverso è il caso di Salemi, dove l’intervento di Siza e Collovà sulla Chiesa Madre, di grande impatto poetico, individua una linea originale di fronte a un monumento colpito, che non è di ripristino o completamento per anastilosi, ma piuttosto di conservazione “archeologica” del resto amputato dal sisma, memoria sublimata e perpetuazione nel futuro del valore comunitario dell’originale ferito.

Un giudizio dunque contrastato, che lungi dall’essere liquidatorio in toto, richiede una valutazione differenziata e più ravvicinata caso per caso[2].

Di pochi anni dopo, maggio 1976, con repliche in settembre dello stesso anno di pari violenza che hanno definitivamente azzerato quanto si era salvato nella prima scossa, è il terremoto del Friuli, di magnitudo 6.5 della scala Richter, che con circa 1000 morti e 45.000 sfollati ha colpito oltre 40 comuni dichiarati disastrati e altri trenta gravemente danneggiati delle provincie di Udine e Pordenone, tra cui Gemona, Venzone, Osoppo, Majano, Artegna, Buja, Bordano sono stati tra i maggiormente danneggiati.

Il caso del Friuli è stato considerato un punto di svolta nelle strategie post-sismiche. Senza cadere nella retorica del cosiddetto “Modello Friuli”, o della abusata semplificazione dello slogan “dov’era, com’era”, relativizzata dagli stessi protagonisti di quella ricostruzione, basti ricordare che dopo quell’evento ha preso corpo la struttura della Protezione civile, sia a livello centrale che nell’articolazione territoriale a diretto contatto con le comunità locali coinvolte. Come pure va ricordata la scelta decisiva, energicamente voluta dalla popolazione interessata e più volte ma non sempre ripresa in seguito, di procedere “dal basso”, secondo una sequenza che privilegiava prima la produzione, poi le case, infine i monumenti.

Il caso esemplare è quello di Venzone dove, anche sulla base degli studi compiuti da Gianfranco Caniggia e Francesca Sartogo incaricati poco dopo il sisma dal Ministero dei Beni Culturali e Ambientali, dalla Soprintendenza archeologica di Trieste per i beni ambientali, architettonici artistici e storici del Friuli Venezia Giulia e dal Consiglio Italiano dell’ICOMOS (International Council of Monuments and Sites) di una Ricerca storico-critica per la ricostruzione e il restauro del centro storico di Venzone, si assiste forse alla ricostruzione più prossima al conclamato “dov’era, com’era”: ripristinato esattamente com’era l’assetto morfologico degli spazi pubblici, strade, piazze, allineamenti; ricostruito il tessuto abitativo dell’edilizia di base conformemente ai processi tipologici studiati da Caniggia-Sartogo e al conseguente Piano particolareggiato del centro storico di Romeo Ballardini; ricostruiti per anastilosi, previa minuziosa raccolta, catalogazione e numerazione delle pietre lasciate dal sisma, dei principali monumenti (duomo, palazzo comunale, le altre chiese, mura, torri, porte della città), grazie anche agli studi e al ruolo di studiosi come Francesco Doglioni, il risultato finale è l’esempio di una ricercata “normalità” senz’altro convincente, al di là o comunque preponderante rispetto allo scrupolo di un ipotetico peccato di “falso storico”[3].

Se Venzone, tanto nella ricostruzione del suo centro urbano che dei suoi monumenti, può considerarsi l’esempio emblematico del “dov’era, com’era”, altri casi della ricostruzione friulana lo sono in termini meno compiuti, come Gemona, penalizzato da un consistente esodo della popolazione in un frammentato proliferare edilizio a valle, o Osoppo, dove risalta il Municipio di Luciano Semerani e Gigetta Tamaro, felice espressione, come dice Semerani, della volontà degli abitanti, non priva di «una giustificata retorica», di costruire contro la violenza del terremoto «il municipio più bello e più duraturo del Friuli», pur dentro una ricostruzione in sito che non presenta caratteri di rigore e coerenza paragonabili a Venzone[4].

Il terremoto dell’Irpinia, del novembre 1980, di magnitudo 6.9 della scala Richter, con circa 1900 morti e 300.000 sfollati, vede coinvolte le province di Avellino, Salerno, Benevento e, in misura inferiore, Matera e Potenza. Al di là di casi come Conza o Bisaccia[5], dove sembra riemergere il modellismo un po’ astratto di certa pianificazione del Belice targata ISES, è il caso di Teora che mette in opera una possibile altra linea di “dov’era, com’era”, diversa se non alternativa a quella friulana di Venzone, ma altrettanto convincente nella volontà di conservare la cultura e l’identità insediativa del luogo colpito. Il progetto di Giorgio Grassi e Agostino Renna[6], preso atto dei crolli determinati dal sisma e delle aree dichiarate ufficialmente inedificabili sulla base delle indagini geologiche successive al sisma, elabora un progetto che si potrebbe definire di “continuità nella discontinuità”, con interventi, tipologie, architetture differenziati per parti unitarie, in un rapporto diretto e concreto fra vecchio e nuovo: l’area di crinale tra castello e chiesa madre, dichiarata inedificabile, lasciata a verde “archeologico”, con i resti dei crolli preservati a memoria e testimonianza dell’evento; gli edifici e il tessuto del centro antico che hanno subito danni di non grave entità e sono inclusi nelle aree edificabili, interamente recuperati secondo l’applicazione del principio “dov’era, com’era” (esplicitamente richiamato nella relazione di progetto, pag. 136), basata su documenti d’archivio, catasti, rilievi, fotografie; i monumenti della chiesa e del castello ricostruiti ex novo in situ, quest’ultimo con destinazione a residenza, la chiesa madre riprendendo la giacitura della vecchia chiesa distrutta che, conservata a rudere, diventa sagrato della nuova; le nuove residenze concentrate in due unità distinte e in sé concluse (a valle del corso e presso il castello), segnate da una marcata ed essenziale unità stilistica così da renderle chiaramente evidenti e riconoscibili come parti distinte di un progetto urbano fortemente e programmaticamente unitario.

Infine le più recenti ricostruzioni de L’Aquila (sisma aprile 2009, magnitudo 5.9, circa 300 morti e 80.000 sfollati) ed Emilia Romagna (maggio 2012) offrono pochi spunti di riferimento, stante per L’Aquila il modello fortemente discutibile, sia nella dissipazione insediativa che negli aspetti ingegneristici, tipologici e architettonici, dei 19 villaggi del molto reclamizzato progetto C.A.S.E. (Complessi Antisismici Sostenibili ed Ecocompatibili), mentre in Emilia la forse giustificabile priorità data al ripristino di un tessuto produttivo tra i più importanti d’Italia ha impropriamente legittimato il disastroso travisamento di una cultura insediativa e architettonica di antica tradizione rurale consolidata nei secoli, dalla centuriazione romana all’epoca contemporanea[7].

Per una strategia di ricostruzione nel Centro Italia, 2016

Se queste sono le indicazioni che si possono trarre dall’esperienza italiana dell’ultimo secolo, il terremoto del Centro Italia del 24 agosto 2016, con successive scosse e sciame sismico nell’autunno dello stesso anno e dell’anno successivo, interseca circostanze e problemi in parte simili alla casistica nazionale degli ultimi cento anni, in parte del tutto specifici. Del resto più volte e da più voci è stato osservato che ogni evento sismico è un caso a sé, e per individuare una strategia di ricostruzione è opportuno procedere secondo una logica “caso per caso”.

Il sisma, di magnitudo 6.0 e successivamente 6.5, con circa 300 vittime e 41.000 sfollati, ha interessato territori e comuni a cavallo di quattro regioni, Marche, Lazio, Umbria, Abruzzo, con conseguenti intuibili difficoltà dal punto di vista legislativo, amministrativo, procedurale, dell’organizzazione e della gestione degli interventi, non solo nella fase di emergenza, ma anche nell’avvio e nella conduzione delle opere di ricostruzione con le relative pianificazioni generali e progettazioni attuative. E questo è un primo elemento di distinzione rispetto all’esperienza passata.

Viceversa dal punto di vista dei caratteri insediativi il territorio colpito (assumendo all’interno del quale come casi di studio e di progettazione più emblematici i centri di Amatrice, Norcia e Camerino) presenta diffuse analogie con alcuni dei sismi del passato, anche se differenziate secondo le specificità interne ai singoli centri interessati. Come in Friuli e in Irpinia e non molto diversamente dal Belice, infatti, anche il cratere centro-italico, una vasta area compresa tra la dorsale appenninica interna e gli insediamenti digradanti verso l’Adriatico e il Tirreno, è caratterizzato da una urbanizzazione diffusa di borghi di origine medievale, spesso murati e con impianto di crinale, con centri di medio-piccole o piccolissime dimensioni, distribuiti in fasce interne collinari o montane[8].

Dentro il cratere, però, al di là della relativa omogeneità d’insieme, con riferimento ad Amatrice, Norcia e Camerino, assai diverse sono le rispettive strutture economiche: quella di Norcia segnata dall’importanza della filiera agroalimentare e casearia, a partire dall’allevamento (soprattutto suinicolo) e dalle colture agricole fino alle successive fasi di trasformazione, confezionamento, commercializzazione dei relativi prodotti, con una rete diffusa di aziende artigianali e commerciali di piccole dimensioni o addirittura individuali; quella di Amatrice orientata soprattutto alle attività legate al turismo e alla seconda residenza, con la presenza importante di una struttura di istruzione superiore nel settore alberghiero, di rilievo sovracomunale e sovraregionale; mentre Camerino, tra i maggiori dei centri colpiti, si caratterizza per la secolare tradizione di città universitaria di origine trecentesca e la connessa ricchezza di presenze architettoniche e monumentali, anche se in tutti questi centri, e in genere in tutta l’area del cratere, la componente monumentale e il fascino del paesaggio sono onnipresenti.

Sensibilmente differenziati sono anche i danni subiti dal sisma.

A Norcia e Camerino si sono per lo più concentrati nel nucleo storico. In particolare più consistenti sono stati a Camerino, con la chiusura quasi integrale e prolungata del centro e gravi danneggiamenti in diversi importanti edifici monumentali come il Palazzo Comunale o la Cattedrale; più limitati e circoscritti a singoli settori invece a Norcia, benché gravi anche qua in singoli edifici monumentali come la Cattedrale. In entrambi i comuni, invece, assai più limitati o quasi nulli sono risultati nelle espansioni esterne alla cinta muraria.

Sia a Camerino che a Norcia, però, al di là delle rispettive differenze, il tessuto abitativo del nucleo storico è rimasto integro, colpito sì in singoli monumenti e settori residenziali ma del tutto riconoscibile e leggibile nella sua stratificata morfologia urbana, le case, le strade, le piazze, gli spazi pubblici, i monumenti. E questo è il fatto importante, discriminante.

Amatrice invece fa caso a sé.

Perché qui il sisma ha praticamente azzerato il nucleo storico, di cui resta riconoscibile l’asse di crinale, il percorso matrice per dirla in linguaggio muratoriano-caniggiano, e poco altro, qualche segmento delle chiese, una parte della torre civica, qualche residuo di case. Ma il tessuto abitativo è sparito, forse anche perché, come è stato lamentato da Giovanni Carbonara[9], le ruspe e l’ansia di rimozione hanno fatto più danni del sisma stesso.

Non marginali sono anche i danni nell’espansione urbana fuori le mura, ma ciò che differenzia Amatrice dagli altri comuni del cratere è la tabula rasa del suo nucleo storico, e il conseguente problema del se e del come progettarne la ricostruzione.

Ad Amatrice, in altre parole, prima che operativo il problema della ricostruzione del suo nucleo storico è di natura teorica,

Amatrice. Progetto di ricostruzione del nucleo antico: dov’era, com’era?

Di origine federiciano-angioina fondata, pur senza data certa, nella prima metà del Duecento in funzione di presidio della via Salaria, asse militare e commerciale strategico fin dall’epoca romana di collegamento dall’Adriatico al Tirreno, Amatrice si conforma come borgo murato con impianto di crinale, con l’asse centrale che corre da nordovest, dove sorgeva la porta Castello di ingresso dalle zone del sottostante torrente Castellano, a sudest, dove sorge la chiesa di Sant’Agostino e la porta Carbonara ad essa addossata, in direzione dell’altopiano disteso verso i monti della Laga, l’Appennino del Gran Sasso e la sottostante conca dell’Aquila. Sull’asse centrale ad andamento pressoché rettilineo, è impostata un’orditura viaria a maglia ortogonale, con due soli assi trasversali e una trama di isolati rettangolari allungati di dimensioni omogenee.

Posta su una sorta di sperone tra il fiume Tronto a nord e il Torrente Castellano a sud, al di là delle complesse vicende storiche nel progressivo passaggio dal dominio svevo, a quello angioino, allo Stato Pontificio, con la distruzione delle mura da parte delle truppe di Carlo V nel 1529 e nonostante i frequenti terremoti e le successive ricostruzioni, ciò che importa notare è che Amatrice ha conservato l’originaria conformazione di crinale con una morfologia sostanzialmente invariata nel corso dei secoli. Una morfologia comparabile a quella delle vicine “terre nuove” reatine (Antrodoco, Leonessa, Cittàducale) o delle più lontane “terre nuove” fiorentine come la arnolfiana San Giovanni Valdarno[10].

A fronte dello stato di sostanziale tabula rasa come si evince dalla documentazione fotografica della primavera estate del 2019, con pochi edifici monumentali classificati per la raccolta e catalogazione delle macerie ai fini di una ricostruzione filologica conservativa (sostanzialmente le chiese, la torre civica e due o tre palazzi storici)[11], la scelta operata in alcuni progetti elaborati in sede universitaria è stata in primo luogo quella di una ricostruzione in loco scartando ogni ipotesi di delocalizzazione, e in secondo luogo quella di riproporre la morfologia storica dell’insediamento, con il perimetro corrispondente alla ex cinta muraria, l’asse di crinale in senso nordovest-sudest, la trama morfologica a isolati rettangolari allungati[12].

Fatta questa scelta iniziale, però, qui sorgono i primi problemi teorici: la viabilità secondaria deve rispettare quella storica, con due soli assi trasversali non esattamente perpendicolari all’asse di crinale? E la morfologia degli isolati, con la rispettiva viabilità di accesso, deve rispettare quella storica, con fronti continui su strada e fili di gronda sostanzialmente costanti a marcare la maglia rettangolare? Oppure, pur confermando l’asse di crinale centrale, è possibile pensare un impianto morfologico “moderno”, razionale, con una maglia stradale regolarizzata e una conseguente diversa articolazione degli isolati? Ed ancora, scendendo di scala, ipotizzata pure la prima opzione, la ricostruzione architettonica degli isolati residenziali deve proporsi la fedeltà all’edilizia preesistente anche nelle scelte compositive e nei partiti formali (di altezza, modi di copertura, figure di prospetto, materiali, sistemi costruttivi, eccetera), oppure optare per una ricostruzione “moderna”, razionale?

In altri termini, assolta la fedeltà al principio del “dov’era”, quello del “com’era” non è forse impraticabile, e non richiede forse, necessariamente, modalità contemporanee, rispettose della forma urbana e architettonica ereditata dalla storia, ma non in termini “letterali”, bensì “sostanziali”, pur consapevoli che la qualifica “sostanziale” non può che ricadere nella sfera del soggettivo e del discrezionale?

In altri termini ancora, e molto schematizzando, vale il modello caniggiano di Venzone, di fedeltà filologica a rischio di falso storico, o il modello Teora di Grassi e Renna, di “continuità nella discontinuità” come osservato in precedenza?

I due progetti qui presentati, frutto di partecipazione a convegni e di tesi di laurea[13], sono delle risposte concrete, nella assoluta consapevolezza di non voler essere definitive, ma di voler esplicitare “nel fare” le questioni teoriche e operative che un tema come quello della ricostruzione pone all’obbligo della progettazione.

Due progetti come verifica sperimentale e approfondimento teorico

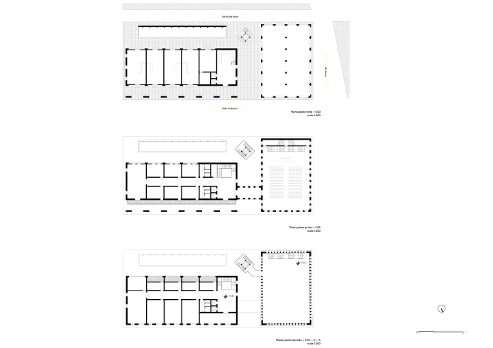
Di fronte all’attuale tabula rasa, entrambi i progetti hanno assunto l’ipotesi di confermare complessivamente la morfologia ereditata dal passato, riprendendo il perimetro del borgo murato pervenuto sostanzialmente invariato dall’epoca della sua fondazione (nonostante la distruzione cinquecentesca delle mura), e introducendo alcune, poche, varianti riguardanti da un lato la piazza centrale e dall’altro la conformazione degli isolati residenziali, tese a configurare un’ipotesi per la ricostruzione al tempo stesso aggiornata e rispettosa dell’insediamento storico così come sedimentato nella memoria collettiva della popolazione.

In particolare per il tessuto residenziale entrambi i progetti si fermano alla proposta di tre schemi tipologici di isolati-tipo, approssimativamente definiti “a blocco”, “a schiera”, “a patio”, di due o tre piani fuori terra, da adottare flessibilmente come semplici linee guida nell’iter di ricostruzione.

Tali schemi, però, se condivisibili come scelta morfologica di base, necessitano palesemente di ulteriore approfondimento.

Valutazione in parte diversa merita invece la prefigurazione della piazza pubblica centrale.

Nell’intorno urbano caratterizzato dalla presenza della chiesa di San Giovanni, della torre civica e del palazzo comunale, prima del terremoto frammisti a un tessuto denso e indifferenziato, entrambi i progetti introducono il diradamento di una piazza porticata a cavallo del corso di crinale, in cui tali emergenze si staglino isolate. Una scelta che consapevolmente introduce una duplice “infrazione”: la città storica di Amatrice infatti, a differenza della maggior parte delle terre nuove reatine e delle terre nuove fiorentine, non presentava una piazza pubblica centrale con le emergenze monumentali del potere civile e religioso; in aggiunta a ciò, la tipologia del portico, del percorso urbano porticato, è estraneo alla sua storia urbana. Ciò non di meno, a chi scrive, in questa scelta entrambi i progetti sembrano convincenti, così come sembra convincente la scelta di ricorrere, per il palazzo comunale, alla tipologia storica del “broletto”, o della loggia mercantile, libero su quattro fronti, con un piano terra interamente porticato e un piano soprastante libero da pilastri intermedi per sala consigliare-salone pubblico per mostre, convegni, spettacoli (in realtà, al modello canonico del broletto, entrambi i progetti introducono alcune licenze: il primo prevedendo una copertura interamente terrazzata praticabile per feste e manifestazioni all’aperto; il secondo inserendo tra il recuperato portico di base e la sala consigliare un piano intermedio per uffici e funzioni amministrative).

Si differenziano invece, i due progetti, per le singole scelte compositive e di linguaggio, in un diverso rapporto tra nuovo e antico: più assonante il primo, di dichiarato richiamo a una figurazione muziesca; più marcato e aggiornato il secondo, nella determinazione di staccare con chiarezza il vecchio del porticato di base recuperato rispetto al nuovo del volume soprastante, e nell’inserimento di una “moderna” torre medievale dalle esplicite citazioni formali, con funzione non solo di risalita-scala di sicurezza ma anche di belvedere per l’osservazione dall’alto della città.

In conclusione, vale ricordare il carattere sperimentale di queste analisi e di questi progetti, data la complessità delle questioni implicate dal tema della ricostruzione richiamate in apertura di questo scritto. In particolare rispetto alla motivata diffidenza di molti specialisti del restauro verso l’ingannevole semplificazione della formula “dov’era, com’era”, il dubbio che gli esempi di ricostruzione analizzati (in particolare Venzone, Teora e la stessa Messina) e gli stessi nostri progetti sollevano è se tale riserva abbia il medesimo valore sia per gli edifici e le aree monumentali della città che per l’edilizia di base e il tessuto abitativo tradizionale, oppure se i criteri e le modalità di intervento non debbano essere opportunamente differenziati secondo la specifica responsabilità del progetto di architettura.

E ciò in ottemperanza alla convinzione, come è stato detto, che la ricostruzione della città non è mai un fatto solo fisico, di infrastrutture, edifici, spazi urbani comuni, servizi, il verde. Non è un’opera esclusivamente urbanistica e architettonica. È la ricostruzione di una comunità.

Note

[1] Nella copiosissima bibliografia, per le differenti valutazioni valgano almeno: Giuseppe Miano, Il Piano Borzì, in Giusi Currò, La trama della ricostruzione. Messina dalla città dell’Ottocento alla ricostruzione dopo il sisma del 1908, Gangemi, Roma 1991, pp. 47-61; Francesco Cardullo, La ricostruzione di Messina 1909-1940: l’architettura dei servizi pubblici e la città, Officina, Roma 1993; Francesco Cardullo, Giuseppe e Alberto Samonà e la Metropoli dello Stretto di Messina, Officina, Roma 2006; Francesco Cardullo, La ricostruzione di Messina: tra piani, case e ingegneri, in AA.VV., a cura di Giuseppe Campione, La furia di Poseidon. Messina 1908 e dintorni, 2 voll., vol. 2°, Silvana Editoriale, Cinisello Balsamo (MI) 2009, pp. 81-96; Nicola Aricò, Ragionamento sulla città tradita, ivi, pp. 317-328; Francesco Indovina, Messina: natura, guerra e speculazione, ivi, pp. 337-350. Sul tema generale delle strategie di ricostruzione si veda il numero monografico di “Hinterland”, n. 5-6, 1978, dedicato a Calamità naturali e strategie di ricostruzione, e l’editoriale di Guido Canella Assumere l’emergenza che non finisce, p. 2-3.

[2] Nella vastissima bibliografia, per uno sguardo di sintesi si vedano almeno: Eirene Sbriziolo de Felice, Belice 1968. Decennale di un terremoto: promemoria per soli architetti?, con le annesse Schede di Sergio Bracco, in “Hinterland”, n. 5-6, 1978, pp. 16-23; Agostino Renna, Antonio De Bonis, Giuseppe Gangemi, Costruzione e progetto. La Valle del Belice, Clup, Milano 1979; Luca Ortelli, Architettura di muri. Il museo di Gibellina di Francesco Venezia, in “Lotus International”, n. 42, 1984, pp. 120-128; Marcella Aprile, Roberto Collovà, Teresa La Rocca, Ricostruzione delle Case Di Stefano, Gibellina, in “Domus”, n. 718, 1990, pp. 33-43; Pierluigi Nicolin, Una via porticata. Franco Purini e Laura Thermes a Gibellina, in “Lotus International”, n. 69, 1991, pp. 90-102; Giuseppe Marinoni, Metamorfosi del centro urbano. Il caso di Gibellina, ivi, pp. 72-89; Alvaro Siza Vieira, Roberto Collovà, Ricostruzione della Chiesa Madre e ridisegno della piazza Alicia e delle strade adiacenti, Salemi, Trapani, in “Domus”, n. 813, 1999; Alvaro Siza Vieira, Roberto Collovà, Atti minimi nel tessuto storico, Salemi, 1991-1998, in “Lotus International”, 106, 2000, pp. 104-109; Marcella Aprile, Il terremoto del Belice o del fraintendimento, in AA.VV., a cura di Giuseppe Campione, La furia di Poseidon. Messina 1908 e dintorni, 2 voll., vol. 2°, Silvana Editoriale, Cinisello Balsamo (MI) 2009, pp. 221-234; Franco Purini, Un’esperienza siciliana, ivi, pp. 235-240; Roberto Collovà, Belice fermo immagine 2018. Le qualità resistenti della ricostruzione, in AA.VV., Ricostruzioni. Architettura, città, paesaggio nell’epoca delle distruzioni, a cura di Alberto Ferlenga e Nina Bassoli, Silvana Editoriale, Cinisello Balsamo (MI) 2018, pp. 77-82.

[3] Anche in questo caso, tra la ricchissima bibliografia si ricordano: Gianfranco Caniggia, Francesca Sartogo, Ricerca storico-critica per la ricostruzione e il restauro del centro storico di Venzone, ICOMOS-Consiglio Italiano, 1977-1979; Gianugo Polesello, Friuli 1976. Riedificare per un contesto senza città, con le annesse Schede di Giusa Marcialis e Pierluigi Grandinetti, in “Hinterland”, n. 5-6, 1978, pp. 42-55; Luciano Semerani, Vajont 1963. Ricostruzione senza rinascita, con le annesse Schede e l’intervista Longarone: un sindaco quindici anni dopo, in “Hinterland”, n. 5-6, 1978, pp. 4-15; Paolo Marconi, Restauro e conservazione: com’era, dov’era?, in «Zodiac», n. 19, 1998, pp.40-55; Francesca Sartogo, Udine e Venzone. Lettura critica per una storia operante del territorio friulano, Alinea, Firenze 2008; Alessandro Camiz, Venzone, una città ricostruita (quasi) “dov’era, com’era”, in “Paesaggio Urbano”, n. 5/6, 2012, pp. 18-25; Alessandro Camiz, New towns o ricostruzione (quasi) “dov’era, com’era”? L’esempio del progetto per Venzone, in “Urbanistica Dossier”, n. 005, 2013, pp. 85-89; Marisa Dalai Emiliani, Venzone “com’era e dov’era”: da eresia a modello, in Corrado Azzollini, Giovanni Carbonara (a cura di), Ricostruire la memoria. Il patrimonio culturale del Friuli a quarant’anni dal terremoto, Forum Editrice Universitaria Udinese, Udine 2016, pp. 85-93; Remo Cacitti, Francesco Doglioni, Il Duomo di Venzone, ivi, pp. 104-115; Corrado Azzollini, Antonio Giusa, a cura di, Memorie. Arte, immagini e parole del terremoto in Friuli, catalogo della Mostra a Villa Manin, Azienda Speciale Villa Manin – Skira editore, Milano 2016; Francesco Doglioni, Friuli 1976. Venzone com’era e dov’era, in AA.VV., Ricostruzioni. Architettura, città, paesaggio nell’epoca delle distruzioni, a cura di Alberto Ferlenga e Nina Bassoli, Silvana Editoriale, Cinisello Balsamo, Milano 2018, pp. 83-91. Rispetto alla questione del “falso storico” si vedano i numerosi interventi di Marco Dezzi Bardeschi, dove del binomio “dov’era, com’era” parla di «ingenuo autoinganno», di «equivoco accattivante», di «grande bufala dura a morire», volta a lenire dietro una «scenografica ricostruzione analogica» il trauma drammatico di una popolazione colpita nei suoi luoghi secolari di vita e d’affezione, in Marco Dezzi Bardeschi, L’ora della prevenzione, in “Ananke”, n. 79, settembre 2016, pp. 3-4. Sugli stessi argomenti si vedano anche i precedenti numeri della rivista di Dezzi, n. 42, giugno 2004, e n. 3, dicembre 1993, con numerosi interventi dello stesso Dezzi e di importanti studiosi come Giovanni Carbonara, Roberto Cecchi, Luigia Binda, Stefano Della Torre, Carolina Di Biase, Antonio Acuto e altri.

[4] Vedi Giovanni Pietro Nimis, La ricostruzione possibile. La ricostruzione nel centro storico di Gemona del Friuli dopo il terremoto del 1976, con prefazione di Francesco Tentori, Marsilio, Venezia 1988; Giovanni Pietro Nimis, Terre mobili. Dal Belice al Friuli, dall’Umbria all’Abruzzo, Donzelli, Roma 2009; Luciano Semerani, Architetture, in AA.VV., Composizione, progettazione, costruzione, a cura di Enrico Bordogna, Laterza, Bari 1999, pp. 59-105.

[5] Annarita Teodosio, Oltre le macerie. Ricostruzione in Irpinia tra antichi luoghi e nuovi spazi, in “Urbanistica Dossier”, n. 005, 2013, pp. 98-101; Filippo Orsini, Irpinia 1980. Un terremoto dimenticato, in AA.VV., Ricostruzioni. Architettura, città, paesaggio nell’epoca delle distruzioni, a cura di Alberto Ferlenga e Nina Bassoli, Silvana Editoriale, Cinisello Balsamo (MI) 2018, pp. 92-97.

[6] Tra i diversi scritti di Giorgio Grassi e Agostino Renna sull’argomento si veda in particolare Giorgio Grassi, Agostino Renna, Piano di recupero del centro storico di Teora (Avellino), 1981, in Giorgio Grassi, I progetti, le opere e gli scritti, Electa, Milano 1996, pp. 128-141. Si veda anche Riccardo Campagnola, Ri-comporre l’infranto: figure di rifondazione. Tesi e ipotesi sul Progetto di ricostruzione del centro storico di Teora (Avellino) di Giorgio Grassi, in M.G. Eccheli, A. Pireddu, a cura di, Oltre l’Apocalisse, Firenze University Press, Firenze 2016, pp. 24-39.

[7] Per L’Aquila si veda: L’Aquila. Il Progetto C.A.S.E., Complessi Antisismici Sostenibili ed Ecocompatibili. Un progetto di ricostruzione unico al mondo che ha consentito di dare alloggio a quindicimila persone in soli nove mesi, ideazione di Gian Michele Calvi, a cura di Roberto Turino, IUSS, Pavia 2010. Per l’Emilia Romagna cfr.: Matteo Agnoletto, Emilia 2012. La fine di una storia, in AA.VV., Ricostruzioni. Architettura, città, paesaggio nell’epoca delle distruzioni, a cura di Alberto Ferlenga e Nina Bassoli, Silvana Editoriale, Cinisello Balsamo, Milano 2018, pp. 128-129; Massimo Ferrari, Emilia 2012. Territorio sovrainciso, ivi, pp.123-127.

[8] Secondo i rilevamenti ISTAT al 31 dicembre degli anni 2010, 2016, 2019, la popolazione residente nei tre comuni presi in considerazione era: Amatrice 2717, 2532, 2358; Norcia 4995, 4981, 4724; Camerino 7130, 7007, 6692.

[9] Cfr. Giovanni Carbonara, Conferenza La ricostruzione e l’identità dei luoghi, nell’ambito del Corso Beni culturali ed emergenza del Consiglio Nazionale degli Architetti, Pianificatori, Paesaggisti e Conservatori, sede CNAPPC, Roma 24-1-2020.

[10] Sulla storia urbana di Amatrice, tra la vasta bibliografia, cfr.: Giovanni Carbonara, Gli insediamenti degli ordini mendicanti in Sabina, in Lo spazio dell’umiltà, Atti del Convegno, Fara Sabina 1984; Marina Righetti Tosti-Croce, a cura di, La Sabina Medievale, Amilcare Pizzi, Cassa di Risparmio di Rieti, Rieti 1985; Enrico Guidoni, L’espansione urbanistica di Rieti nel XIII secolo e le città di nuova fondazione angioina, in La Sabina Medievale, cit.; Luigi Aquilini, Carlo V, Alessandro Vitelli, il Feudo di Amatrice, S.E., Milano 1999; Luigi Aquilini, Carlo Blasetti, Amatrice: dagli angioini agli aragonesi. Monografia storico-araldica di un antico comune, Aniballi Grafiche, Ancona 2004; Romeo Giammarini, L’impianto urbano della città di Amatrice. Geometrie, adattamenti e trasformazioni secc. XIII-XV, in “Storia dell’Urbanistica”, n. 9/2017, Centri di fondazione e insediamenti urbani nel Lazio (XII-XX secolo): da Amatrice a Colleferro, Edizioni Kappa, Roma 2017; Anna Imponente, Rossana Torlontano, Amatrice. Forme e immagini del territorio, Electa, Milano 2015; Alessandro Viscogliosi, Amatrice. Storia, arte, cultura, Fondazione Dino ed Ernesta Santarelli, Silvana Editoriale, Cinisello Balsamo (MI) 2016. Per San Giovanni Valdarno e le terre nuove fiorentine si veda Edoardo Detti, Gian Franco Di Pietro, Giovanni Fanelli, Città murate e sviluppo contemporaneo, Edizioni CISCU, Lucca 1968.

[11] Si veda il Verbale di sopralluogo del Gruppo Tecnico di Verifica della Protezione Civile e Comune di Amatrice del marzo 2019 che dispone operazioni differenziate: smontaggio e catalogazione di alcuni edifici monumentali; messa in sicurezza dei pochi edifici con danni contenuti; demolizione e rimozione delle macerie del restante edificato.

[12] Cfr. Laboratorio di Progettazione Architettonica, biennio di Laurea Magistrale del Corso di Studio “Architettura e Disegno urbano”, Politecnico di Milano, responsabili Enrico Bordogna, Tommaso Brighenti, anni accademici 2016/17, 2017/18, 2018/19, 2019/20. Nel corso di questi anni sono state sostenute, oltre agli esami annuali o semestrali, diverse tesi di laurea applicate ai contesti di Amatrice, Norcia, Camerino. Nell’ottobre 2017 è stato svolto un primo sopralluogo in occasione della partecipazione come relatori al Convegno 1997-2017. Strategie per la ricostruzione post-sisma, a cura di Luigi Coccia e Marco D’Annuntiis, Scuola di Architettura e Design, Università di Camerino, Ascoli Piceno, 26 ottobre 2017. Un secondo sopralluogo è stato svolto in data 5-7 maggio 2019.

[13] Vedi: Enrico Bordogna, Tommaso Brighenti, Progetto di ricostruzione del centro di Amatrice: com’era, dov’era?, collaboratori L. Bonardi, A. Valvason; allievi L. Martellini, N. Mawed, M. Polvani, G. Rosso, presentato al XVII Convegno Identità dell’architettura italiana, Firenze, 11-12 dicembre 2019, Diabasis, Parma, 2019, pp. 38-39; Luca Bonardi, Andrea Valavason, Il nucleo antico di Amatrice: dov’era, com’era?, tesi di laurea al Politecnico di Milano, giugno 2020 (relatori E. Bordogna, T. Brighenti).

Bibliografia

VV. (1978) – Calamità naturali e strategie di ricostruzione (numero monografico). Hinterland, 5-6 (settembre-dicembre).

AGNOLETTO M. (2018) – “Emilia 2012. La fine di una storia”. In: FERLENGA A. e BASSOLI N. (a cura di), Ricostruzioni. Architettura, città, paesaggio nell’epoca delle distruzioni. Silvana Editoriale, Cinisello Balsamo (MI), 128-129.

AQUILINI L. (1999) – Carlo V, Alessandro Vitelli, il Feudo di Amatrice. S.E., Milano.

AQUILINI L. e BLASETTI C. (2004) – Amatrice: dagli angioini agli aragonesi. Monografia storico-araldica di un antico comune. Aniballi Grafiche, Ancona.

APRILE M., COLLOVÀ R. e LA ROCCA T. (1990) – “Ricostruzione delle Case Di Stefano, Gibellina”. Domus, 718, 33-43.

APRILE M. (2009) – “Il terremoto del Belice o del fraintendimento”. In: AA.VV., CAMPIONE G. (a cura di), La furia di Poseidon. Messina 1908 e dintorni, 2 voll., vol. 2°. Silvana Editoriale, Cinisello Balsamo (MI), 221-234.

ARICÒ N. (2009) – “Ragionamento sulla città tradita”. In: AA.VV., CAMPIONE G. (a cura di), La furia di Poseidon. Messina 1908 e dintorni, 2 voll., vol. 2°. Silvana Editoriale, Cinisello Balsamo (MI), 317-328.

AZZOLLINI C. e GIUSA A. (a cura di) (2016) – Memorie. Arte, immagini e parole del terremoto in Friuli, catalogo della Mostra a Villa Manin. Azienda Speciale Villa Manin – Skira editore, Milano.

CACITTI R. e DOGLIONI F. (2016) – “Il Duomo di Venzone”. In: AZZOLLINI C. e CARBONARA G. (a cura di), Ricostruire la memoria. Il patrimonio culturale del Friuli a quarant’anni dal terremoto. Forum Editrice Universitaria Udinese, Udine, 104-115.

CALVI G.M. (2010) – L’Aquila. Il Progetto C.A.S.E., Complessi Antisismici Sostenibili ed Ecocompatibili. Un progetto di ricostruzione unico al mondo che ha consentito di dare alloggio a quindicimila persone in soli nove mesi. IUSS, Pavia.

CAMIZ A. (2012) – “Venzone, una città ricostruita (quasi) ‘dov’era, com’era’”. Paesaggio Urbano, 5/6, pp. 18-25.

CAMIZ A. (2013) – “New towns o ricostruzione (quasi) “dov’era, com’era”? L’esempio del progetto per Venzone”. Urbanistica Dossier, 005, 85-89.

CAMPAGNOLA R. (2016) – “Ri-comporre l’infranto: figure di rifondazione. Tesi e ipotesi sul Progetto di ricostruzione del centro storico di Teora (Avellino) di Giorgio Grassi”. In: ECCHELI M.G. e PIREDDU A. (a cura di), Oltre l’Apocalisse. Firenze University Press, Firenze, 24-39.

CANELLA G. (1978) – “Assumere l’emergenza che non finisce”. Calamità naturali e strategie di ricostruzione (numero monografico) Hinterland, 5-6 (settembre-dicembre), 2-3.

CANIGGIA G. e SARTOGO F. (1977-1979) – Ricerca storico-critica per la ricostruzione e il restauro del centro storico di Venzone. ICOMOS-Consiglio Italiano.

CARBONARA G. (1984) – “Gli insediamenti degli ordini mendicanti in Sabina”. In Lo spazio dell’umiltà. Atti del Convegno, Fara Sabina.

CARDULLO F. (1993) – La ricostruzione di Messina 1909-1940: l’architettura dei servizi pubblici e la città. Officina, Roma.

CARDULLO F. (2006) – Giuseppe e Alberto Samonà e la Metropoli dello Stretto di Messina. Officina, Roma.

CARDULLO F. (2009) – “La ricostruzione di Messina: tra piani, case e ingegneri”. In: AA.VV., Campione G. (a cura di), La furia di Poseidon. Messina 1908 e dintorni, 2 voll., vol. 2°. Silvana Editoriale, Cinisello Balsamo (MI), 81-96.

COLLOVÀ R. (2018) – “Belice fermo immagine 2018. Le qualità resistenti della ricostruzione”. In: FERLENGA A. E BASSOLI N. (a cura di), Ricostruzioni. Architettura, città, paesaggio nell’epoca delle distruzioni. Silvana Editoriale, Cinisello Balsamo (MI), 77-82.

DALAI EMILIANI M. (2016) – “Venzone “com’era e dov’era”: da eresia a modello”. In: AZZOLLINI C. e CARBONARA G. (a cura di), Ricostruire la memoria. Il patrimonio culturale del Friuli a quarant’anni dal terremoto. Forum Editrice Universitaria Udinese, Udine, 85-93.

DETTI E., DI PIETRO G.F. e FANELLI G. (1968) – Città murate e sviluppo contemporaneo. Edizioni CISCU, Lucca.

DEZZI BARDESCHI M. (2016) – “L’ora della prevenzione”. Ananke, 79 (settembre), 3-4.

DOGLIONI F. (2018) – “Friuli 1976. Venzone com’era e dov’era”. In: FERLENGA A. e BASSOLI N. (a cura di), Ricostruzioni. Architettura, città, paesaggio nell’epoca delle distruzioni. Silvana Editoriale, Cinisello Balsamo (MI), 83-91.

FERRARI M. (2018) – “Emilia 2012. Territorio sovrainciso”. In: FERLENGA A. e BASSOLI N. (a cura di), Ricostruzioni. Architettura, città, paesaggio nell’epoca delle distruzioni. Silvana Editoriale, Cinisello Balsamo (MI), 123-127.

GIAMMARINI R. (2017) – “L’impianto urbano della città di Amatrice. Geometrie, adattamenti e trasformazioni secc. XIII-XV”. Storia dell’Urbanistica, 9/2017, Centri di fondazione e insediamenti urbani nel Lazio (XII-XX secolo): da Amatrice a Colleferro.

GRASSI G. e RENNA A. (1996) – “Piano di recupero del centro storico di Teora (Avellino), 1981”. In: Grassi G., I progetti, le opere e gli scritti. Electa, Milano, 128-141.

GUIDONI E. (1985) – “L’espansione urbanistica di Rieti nel XIII secolo e le città nuove di fondazione Angioina”. In: RIGHETTI TOSTI-CROCE M. (a cura di), La Sabina Medievale. Amilcare Pizzi Editore, Cassa di Risparmio di Rieti, Rieti, 166-187.

IMPONENTE A. e TORLONTANO R. (2015) – Amatrice. Forme e immagini del territorio. Electa, Milano.

INDOVINA F. (2009) – “Messina: natura, guerra e speculazione”. In: AA.VV., CAMPIONE G. (a cura di), La furia di Poseidon. Messina 1908 e dintorni, 2 voll., vol. 2°. Silvana Editoriale, Cinisello Balsamo (MI), 337-350.

MARCONI P. (1998) – “Restauro e conservazione: com’era, dov’era?”. Zodiac, 19, pp.40-55.

MARINONI G. (1991) – “Metamorfosi del centro urbano. Il caso di Gibellina”. Lotus International, 69, 72-89.

MIANO G. (1991) – “Il Piano Borzì”. In: CURRÒ G., La trama della ricostruzione. Messina dalla città dell’Ottocento alla ricostruzione dopo il sisma del 1908. Gangemi, Roma, 47-61.

NICOLIN P. (1991) – “Una via porticata. Franco Purini e Laura Thermes a Gibellina”. Lotus International, 69, 90-102.

NIMIS G.P. (1988) – La ricostruzione possibile. La ricostruzione nel centro storico di Gemona del Friuli dopo il terremoto del 1976, con prefazione di Tentori F.. Marsilio, Venezia.

NIMIS G.P. (2009) – Terre mobili. Dal Belice al Friuli, dall’Umbria all’Abruzzo. Donzelli, Roma.

ORSINI F. (2018) – “Irpinia 1980. Un terremoto dimenticato”. In: FERLENGA A. e BASSOLI N. (a cura di), Ricostruzioni. Architettura, città, paesaggio nell’epoca delle distruzioni. Silvana Editoriale, Cinisello Balsamo (MI), 92-97.

ORTELLI L. (1984) – “Architettura di muri. Il museo di Gibellina di Francesco Venezia”. Lotus International, 42, 120-128.

POLESELLO G. (1978) – “Friuli 1976. Riedificare per un contesto senza città” (con le annesse Schede di Giusa Marcialis e Pierluigi Grandinetti). Hinterland, 5-6, 42-55.

PURINI F. (2009) – “Un’esperienza siciliana”. In: AA.VV., CAMPIONE G. (a cura di), La furia di Poseidon. Messina 1908 e dintorni, 2 voll., vol. 2°. Silvana Editoriale, Cinisello Balsamo (MI), 235-240.

RENNA A., DE BONIS A. e GANGEMI G. (1979) – Costruzione e progetto. La Valle del Belice. Clup, Milano.

SARTOGO F. (2008) – Udine e Venzone. Lettura critica per una storia operante del territorio friulano. Alinea, Firenze.

SBRIZIOLO DE FELICE E. (1978) – “Belice 1968. Decennale di un terremoto: promemoria per soli architetti?” (con le annesse Schede di Sergio Bracco). Hinterland, n. 5-6, 16-23.

SEMERANI L. (1999) – “Architetture”. In: Composizione, progettazione, costruzione, BORDOGNA E. (a cura di). Laterza, Bari, 59-105.

SEMERANI L. (1978) – “Vajont 1963. Ricostruzione senza rinascita” (con le annesse Schede e l’intervista Longarone: un sindaco quindici anni dopo). Hinterland, 5-6, 4-15.

SIZA VIEIRA A. e COLLOVÀ R. (1999) – “Ricostruzione della Chiesa Madre e ridisegno della piazza Alicia e delle strade adiacenti, Salemi, Trapani”. Domus, 813.

SIZA VIEIRA A. e COLLOVÀ R. (2000) – “Atti minimi nel tessuto storico, Salemi, 1991-1998”. Lotus International, 106, 104-109.

TEODOSIO A. (2013) – “Oltre le macerie. Ricostruzione in Irpinia tra antichi luoghi e nuovi spazi”. Urbanistica Dossier, 005, 98-101.

VISCOGLIOSI A. (2016) – Amatrice. Storia, arte, cultura. Fondazione Dino ed Ernesta Santarelli, Silvana Editoriale, Cinisello Balsamo (MI).