Architecture making school. Dolf Schnebli and the school in Locarno (1959-1964)

Lucia Pennati




Architecture that educates

Since the beginning of the 20th century, the architectural debate in Switzerland ties with the pedagogical and scholastic reform[1]. Modern architecture consolidates the idea that good education cannot be detached from the environment in which it occurs. Similarly, architecture embodies instructional values and acquires an educative role[2] (Reichlin 2008). Spatial solutions and experimental buildings anticipate institutional reforms, making architecture a driving force for pedagogical change and consequent social renewal. With his manual for school design, Swiss architect and professor Alfred Roth testifies modern architects’ desire to implement reform ideas in learning environments. The widely circulated book provides evidence of the cultural background, based on a reinterpretation of a Swiss pedagogical tradition and an awareness of recent teaching experiments[3] (Roth 1950).

An emblematic architecture that educates is the Scuola in Locarno[4], where architect Dolf Schnebli (1928-2009) proposes avant-garde pedagogical solutions, thanks to the support and close collaboration with public institutions. He takes care of children’s learning through several architectural devices, thinking up new ways of inhabiting school space based on flexibility and social commitment. Taking advantage of the educational potential of architecture, Schnebli provided spatial tools that bring children closer to innovative processes like lifelong learning and self-study, as he expressed in his idea of school once he became a professor (1994).

The school-village approach

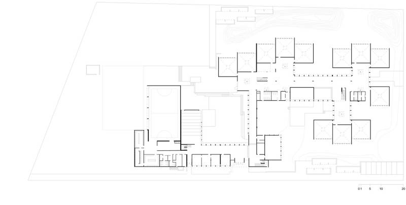
In Schnebli’s school, the analogy with the village is the «design concept»[5] of the entire project. This idea promotes a community spirit and engages with the afterwar pedagogical reform that considers the child as a community member[6]. Located on the edge of the orthogonal 19th-century urbanisation grid of Locarno and in the heart of the uncontrolled building development of the 1960s, the new school fits into the urban context as a functional and formal educational village.

Comparing a building with an urban structure belongs to the architectural discourse: it recurs in the 15th century Alberti’s treatise[7] and regained relevance from the 1950s onwards as Bruno Zevi points out (2018). Applied to education, it is similar to the notion of the school as a «micro-city», one of the cornerstones of Hermann Hertzberger’s concept of learning space (2010). The same cultural context also applies to Aldo Van Eyck’s orphanage in Amsterdam, to which the example in Locarno is similar in terms of formal development[8]. If Van Eyck’s orphanage materialises the social relations of the children who live there to reinforce an identity, Schnebli’s school recalls a familiarity with the traditional urban structure and thus becomes a testing ground for future social interactions. In analogy with the school’s vision as a village within the city, the square is the ensemble’s core and, with its amphitheatre layout, accommodates and divides the public and didactical areas. This urban device stages children’s social life, teaching them “by osmosis” to take their place inside the community. By evoking traditional schemes and simulating an urban model, it encourages relationships, promotes encounters and welcomes community life.

In the architect’s intention the school square is planned not only to welcome children’s life, but also to host external events, performing an educational function for the neighbourhood. Schnebli refers to the principle of «school as an open house»[9], spreading in the post-war Swiss school debate. The idea is to reject the duality of everyday life and school life and propose a new continuity, welcoming other cultural and sport activities outside school hours and reflecting the collective ambitions of the time. In this way, the school becomes an infrastructure at the city’s service and encourages multi-generational encounters, providing the space necessary for the growing demand for leisure facilities. The structure gains a democratic character reflected in the desire to open education by providing courses and activities for adults, planned in the gym, in the main hall and special classrooms (for drawing and natural sciences), places that gain an “open house”[10] value. Child-friendly space becomes an «object of affection» (Reichlin 2008), allowing adults to remember their childhood and rediscover the child within themselves (Schnebli 1972). Finally, to confirm the community dimension of the school building, the basement is arranged as an emergency shelter, which can accommodate up to five hundred citizens in case of need.

The school-environment

The construction of «a more open, anti-authoritarian school in which the child is happy to enter» defines the educational milieu. According to this intention, Schnebli designs «environments» for future schools, creating the best conditions in which «pupils, teachers and services are called upon to live»[11] and, above all, establishing relationships with the open space and artwork.

In Switzerland, commissions for schools are usually assigned through competitions, providing an ideal testing ground for young architects who can successfully propose innovative solutions, thanks to enthusiastic juries (Reichlin 2008). In 1959, 30-year-old Schnebli won the competition organised by the cantonal education department with a project entitled “Ambiente”. The term refers to the contemporary architectural discourse and especially to the Montessori pedagogy, according to which every built environment actively influences a child’s growth[12]. In the case of Locarno, the connecting zones play an essential role in defining the quality and different identities of the educational environment[13]. They are a network of routes that expand, compose, join and retreat to create spaces of different identities and recall an almost urban movement analogous to the Lünen school by Hans Scharoun[14]. With their generous dimensions and wide range of perspective views, the circulation areas are not merely functional but hold an instructional value. They are interstitial places dedicated to meeting and developing children’s social skills, fostering relationships, and still preserving the possibility of remaining apart.

Walking through this distributive network of rooms becomes a learning experience in itself, because of the contact with the different classes and the substantial presence of works of art, which complete the space, making the school in Locarno a unique case (Martinoli 2015). Schnebli works with numerous artists toward an aesthetic educative programme, stating that «perhaps in no building is the presence of art as important as in schools. Children are the most likely to perceive its value» (1966a). In the Locarno one, artists enjoy total freedom, both in terms of subject matter and means of expression, which allows them to intervene with their creations. According to the architect, the art arrangement is reminiscent of a promenade through a typical Ticino village where various works can be encountered (Schnebli 1966a).

The importance of art and the aesthetic environment for moral education is a general theme in the post-war period, which focused on the debate of the synthesis of arts[15] and its scholastic declination, based on British philosopher Herbert Read (Roth 1950). Read states that children should enjoy artistic works in an appropriate environment, without confusing the school with a museum, but emphasising its laboratory character (1958) and thus associating the form of art with the formative act. Furthermore, artistic didactic principles can be traced back to Pestalozzi, who proposes geometric representation into his pedagogy as an introduction to writing and art in general[16].

The creative works are also arranged outside, in the school garden, complementing the indoor learning environment. For the green spaces, Schnebli’s design includes a field for outdoor sports activities and a natural topography of hills enclosing and delimiting the site towards the edge of the road[17], with open collective areas and private courtyards suitable for gathering. Following the principle of «green classrooms»[18], all ground-floor classrooms have direct access outside, allowing lessons and breaks to be held outdoors, thus reaping the benefits of pure air and sunlight, which are healthy for growth[19].

Classroom as home

In the Locarno school, classrooms are the heart of the project both as teaching units or places of teacher-pupil interaction and as primary elements of the village system or homes. A cluster of classrooms defines the pavilion typology, each unit is covered with a pyramidal roof whose peculiarity allows its volumetric identification. In the logic of school as a village, classrooms recall individual houses, the focus of the village and every educational activity.

The reference between classroom and house refers to the writings of the pedagogue Pestalozzi, for whom the Wohnstube, i.e. the living room or meeting place of the family unit, is the theoretical prototype of the schoolroom and children’s education (Perlick 1969). Building a classroom like a home, also guarantees the familiar space necessary for learning, especially in the post-war context when families are slowly losing their role as primary educators[20]. Under these circumstances, in 1955, the American magazine Collier commissioned Walter Gropius and TAC[21] to carry out a pilot project for a universal school, whose individual classes anticipated the project by Schnebli, who had worked with TAC after graduation.

According to the new pedagogical ideas, a frontal interaction between teacher and pupils cannot be the only teaching method: different possibilities must be guaranteed, such as work in small groups or discussion in plenum. The rigid hierarchy must be forgotten (Gross 1962). Even though these new pedagogical approaches are not part of the brief or the institutional request, Schnebli considers it the architect’s task to design according to the most avant-garde ideas, “schooling the idea of school”. He proposes a square shape for classrooms, which, given its regular proportions, guarantees free positioning of desks and allows three walls for teaching, one with a fixed blackboard and two sides with vertical mobile blackboards, on cupboards’ doors. Following the principle of flexibility in teaching, a skylight, or central lighting chimney, provides a diffuse and neutral light source that does not interfere with possible arrangements within the classroom. The classroom’s central symmetry allows teachers the freedom to use the spatial arrangement that fits their curricula. Moreover, pedagogical theories consider zenith light to be the best source of daylight for children, the most neutral and least glaring, which creates an atmosphere of security and concentration (Schnebli 1966b). A band of side windows enhances the light source and provide children with an undisturbed view, to enjoy the benefits of the green surroundings. The double lighting sources represent one of the hygienic and physical needs propagated in modern schools; together with cross-ventilation, guaranteed by windows and skylight chimney, reminiscent in form and function of an Iraqi vernacular village which Schnebli approached during his journey on the land route to India[22] (2009).

Walls that teach

The pedagogical perspective of the Locarno infrastructure is also reflected in the construction and materials, which are visible, in order to stimulate a cognitive tension in children by explaining to them the principles of the building. In its construction, the Locarno school plays an instructional role.

Following Rousseau’s pedagogical principle that all learning takes place in contact with things (1963) the facility shows the concreteness of its materiality. Furthermore it surprises and educates through living, as according to Pestalozzi, children approach education through experience and their point of view. Similarly, Schnebli considers it crucial to show the rainwater’s course since once the water has fallen on the roof and collected, it flows down to the ground. Reinforced concrete rain gutters are an example: open on one side and remembering Le Corbusier’s work, they illustrate their practical function.

Equally important is the instructive role of the materials chosen: untreated surfaces and elements with a raw corporeity and fragility[23]. For example, the stones in the school’s square are the same used in Locarno’s central meeting place – the Piazza Grande – and their use in the school environment evokes a familiar image with a symbolic value. This analogy combines the everyday school square with the town’s. Furthermore, pathways are out of Valle Maggia granite, which is a resistant and emblematic material of the Ticino tradition, used for floors in historic houses, thus familiar to many children. In fact, the use of stone goes beyond its visual and tactile features to include auditory ones: according to Schnebli, hard surfaces, due to their sound-reflecting properties, create an acoustic environment that persuades children not to generate further noise (1972). Inside the school, elements such as wood or bricks are evident in their construction and layering; the joints are not covered but become part of the aesthetic expression of the building and define its morality.

The school as a primer of moral education

The example shows how the building is not merely a spatial response, but it constructs an overall educational environment that guarantees man’s moral formation. The educational design theme and implementation are measured and applied at different scales, from volume to detail. The coherence between the architectural and pedagogical domains unfolds inside the school construction.

From this point of view, the school demonstrates the intention to educate towards social engagement by re-proposing the cardinal principles of urban life in its built space. The analogy between the school and the village, which articulates through the square and the public functions, the streets and internal connections, the familiarity of the classroom-home environment and finally the construction details, allows children to approach the meaning of urban community life, determining the contribution of the physical environment to their moral growth.

The model demonstrates how the architect takes advantage of the educational scope of the architectural body, assuming an active role and designing a flexible, anti-authoritarian school environment, which in every part provides tools for didactic and self-learning, like an instruction booklet or a primer. Using key elements of the discipline of architecture and composition the architect defines the school project and consolidates its educational function based on the re-enactment of a city’s typical connections and interactions. The intention is to outline a new society, of which the child will learn to be a member thanks to the stimulating environment and the educational role of architecture, played by the spatial distribution and technological choices and ensured by the presence of numerous works of art.

By exploring pedagogical and social ideas in a built environment, the school in Locarno embodies an avant-garde project that anticipates a renewal of Ticino’s educational institutions and serves as a typological model for other projects in the region.

Notes

[1] Consider the Zurich exhibition Das Kind und sein Schulhaus (1933) and its manifesto, in which architects, pedagogues and hygienists proposed a new concept of the school in terms of programme and space.

[2] This vision was generated within a positivistic attitude towards modern architecture, of the so-called Neues Bauens, for which the new architecture has the power to influence people’s lives and educate them, to create a new society. Therefore, reform pedagogy can only be effectively achieved in modern buildings, thus creating a solid relationship between pedagogical reforms and the built environment. Wichert F. (1928) – “Die neue Baukunst als Erzieher”. Das neue Frankfurt: internationale Monatsschrift für die Probleme kultureller Neugestaltung, 2, 321-324. Reichlin (2008) translates Wichert’s paradigm into Italian as «architettura educatrice», educative architecture.

[3] The link between educational reform and social reform, or foundation of a new society, goes back to Jean-Jacques Rousseau, who belongs to the Swiss tradition of pedagogues, also including Johann Heinrich Pestalozzi, Stefano Franscini, and later personalities such as Pierre Bovet, Eduard Claparède, Jean Piaget. Note the continuous citation of Pestalozzi (Roth 1950) and the standard pedagogical literature quoted by Schnebli (2010).

[4] The school in Locarno has initially been a ginnasio, i.e. a school in preparation for high school for children aged between 11 and 15 years. With the reform of secondary schools in Ticino in 1974, it became a middle school.

[5] Term extracted from the article Fumagalli P. (2009) – “Un maestro costruttore. Dolf Schnebli 1928-2009”. Archi: rivista svizzera di architettura, ingegneria e urbanistica, 5/6, 60-61.

[6] During the 1920s and 1930s, public opinion regarded the child as an isolated individual, and it was only concerned with providing him or her with the best environmental and climatic conditions. On the other hand, in the post-war context, community considers the child as one of its members, part of a group and foundation of the future society (Becker 1961).

[7] «And if the word of philosophers is true, that the city is like a large house, and the house is a small city, one will not be wrong in claiming that the parts of a house are themselves small houses [...] In the house, the atrium, the hall and similar rooms must be in the same way as in a city, forum, or great avenues» Alberti L.B. (1966) - De re aedificatoria, Il Polifilo, Milan (Zevi 2018), translation by the author.

[8] This consideration is by the author. No evidence of mutual influence has been found so far.

[9] The topic of Schule als offenes Haus is explained by Gustav Mugglin’s contribution, both in the pages of Werk, Bauen + Wohnen (1960) and in the booklet published by the Pro Juventute foundation (1960). The topic is related tot he case study in: 1966) “Swiss High School. A Cluster of Huts”. Architectural Forum, (January/February), 86-91.

[10] A more successful implementation of the principle of «school as an open house» can be seen in another early project by Schnebli: the school complex in Wohlen. In this case, a public path crosses the school, and, unlike in Locarno, no walls close the school grounds.

[11] Quotations from an interview with Schnebli, Guidicelli P., 1970 “La scuola deve essere una comunità di lavoro e di ricerca”. Corriere del Ticino, 30.10.1970, 11.

[12] Maria Montessori writes that the child learns through his activity, absorbing culture from the environment and not from the teacher. In addition, she believes that the child creates himself and that the adult can only become his assistant in the learning process (1970).

[13] In the project text, Schnebli writes of «verschiedener räumlicher Stimmungen», i.e. different moods linked to different spaces. (1960) – “Kantonale Mittelschule in Locarno”. Schweizerische Bauzeitung, 78 (21), 246-247.

[14] For the link between the two works, check Di Nallo M. (2017) – “The Balance between Intimacy and Interchange. Swiss School Buildings in the 1960s”. In: Darian-Smith K., Wilis J. (a cura di) Designing Schools. Space, place and pedagogy. Routledge, New York, 101. 

[15] At the 6th CIAM in Bridgewater (1947) and the following one in Bergamo (1949), the debate around the synthesis of the arts was vivid. For further information consider the reports written by Sigfried Giedion.

[16] The relationship between Pestalozzi’s theories, art education and education through art can be found in the book by Skladny (2009).

[17] The landscape got destroyed with no traces left, except for the trees.

[18] Schnebli’s long-time collaborator Ernst Engeler mentioned this topic. Thanks to Prof. Roberta Grignolo for sharing the interview she conducted with Engeler.

[19] See the written manifesto Das Kind und sein Schulhaus (1933).

[20] The school takes over many functions that until recently had been performed exclusively by the family. The term Schlüsselkinder describes children whose parents work full-time and are sent to school with keys hanging around their necks so that they can return home independently after school. For these children, after-school occupations are planned (Gross 1962). The subject is also in Becker’s essay (1961).

[21] Gropius W. (1966) – TAC. The Architects Collaborative 1945-1965, Arthur Niggli Ltd., Teufen, 84-87.

[22] Thanks to a Wheelwright scholarship from Harvard, Schnebli drove his car from Venice to Chandigarh in 1956. A Schnebli’s publication collects all the photos of the journey (2009).

[23] (1966) “Swiss High School. A Cluster of Huts”. Architectural Forum (January/February), 86-91.

Bibliography

BECKER H. (1961) – “School building in modern society”. In: Otto K. (edited by) Schulbau. Beispiele und Entwicklungen. Alexander Koch GMBH, Stuttgart.
FÜEG (1961) – “Schulbau als Abbild einer Gemeinschaft”. Bauen + Wohnen, 15 (8), 1-6.
GROSS R. (1962) – “Neue Ziele der Schule”. Bauen + Wohnen, 16 (7), 267-274.
HERTZBERGER H. (2010) – Space and Learning. Lessons in Architecture 3. 010 Publishers, Rotterdam.
MARTINOLI S. (2015) – “150 anni di architettura scolastica in Ticino tra pedagogia e progettualità”. In: Valsangiacomo N. e Marcacci M. (edited by), Per tutti e per ciascuno. La scuola pubblica. Armando Dadò editore, Locarno.
MONTESSORI M. (1970) – La formazione dell’uomo. Garzanti, Milan.
MONTESSORI M. (2000) – L’autoeducazione nelle scuole elementari. Garzanti, Milan.
PERLICK P. (1969) – Architektur im Dienste der Pädagogik. Alois Henn Verlag AG, Wuppertal.
PESTALOZZI J.H. (1940) – Die Kinderlehre der Wohnstube. von Walter de Gruyter, Berlin und Leipzig.
READ H. (1958) – Education through Art. Faber, London.
REICHLIN B. (2008) – “Provincia pedagogica”. In: Arti riti e miti della Svizzera moderna. Museo Cantonale d’Arte, Lugano.
ROTH A. (1950) – Das neue Schulhaus. The New School. La Nouvelle Ecole. Girsberger, Zürich.
ROUSSEAU J.J. (1963) – Emile oder über die Erziehung. Reclam, Stuttgart.
SCHNEBLI D. (1966a) – “Der künstlerische Schmuck im Gymnasium Locarno”. Das Werk: Architektur und Kunst, 53 (8), 317-321.
SCHNEBLI D. (1966b) – “Gymnasium Locarno und Bünzmattschulhaus in Wohlen AG”. Das Werk: Architektur und Kunst, 53 (8), 311-316.
SCHNEBLI D. (1972) – “Environments for Children”. In: Kepes G. (edited by) Arts of the Environment. George Braziller, New York.
SCHNEBLI D. (1994) – Antrittsvorlesung 5.2.1973 Abschiedsvorlesung 24.2.1994 Professor Dolf Schnebli ETH Zürich. Dolf Schnebli Tobias Ammann Flora Ruchat-Roncati Architekten BSA+Partner AG, Zürich.
SCHNEBLI D. (2009) – Ein Jahr auf dem Landweg von Venedig nach Indien. Fotoskizzen der langsamen Reise 1956. Verlag Niggli AG, Zürich.
SCHNEBLI D. (2010) – “La scuola di Locarno, concorso 1959”. Archi: rivista svizzera di architettura, ingegneria e urbanistica, 3, 20-25.
SKLADNY H. (2009) – Ästhetische Bildung und Erziehung in der Schule. Eine ideengeschichtliche Untersuchung von Pestalozzi bis zur Kunsterziehungsbewegung. Kopaed, München.
ZEVI B. (2018) – Saper vedere la città. Ferrara di Biagio Rossetti la prima città moderna d’Europa. Bompiani, Milan.