Le scuole di Guido Canella. Tipo forma e comportamento

Tommaso Brighenti




Per parlare dell’opera di Guido Canella soffermandosi in particolare sui progetti e sulle ricerche legate al tema della tipologia scolastica, non si può non ripercorre, molto brevemente, alcune questioni cronologiche e altre, fondamentali, legate alla formazione di una precisa idea di architettura, maturata, come docente, all’interno delle aule universitarie. Questo perché l’opera costruita e la ricerca fatta a scuola, per Canella, sono due elementi inscindibili, che si muovono, costantemente, di pari passo.

È prioritario innanzitutto suddividere la sua esperienza didattica in due momenti: una prima stagione, definibile delle «grandi ricerche fondative»[1] che ha inizio con l’esperienza veneziana come assistente volontario nei primi anni ’60 al corso di G. Samonà e successivamente comprende il biennio come assistente al corso di Elementi di composizione di E. N. Rogers dal 1962 al 1964, lavorando sul tema della Scuola Primaria, e poi la responsabilità come professore incaricato dello stesso corso lavorando: dal ’64 al ’66 (tema del teatro); dal ’66 al ’68 (tema del carcere); dal ’68 al ’70 (tema dell’università); dal 69’ al 70’(tema della fiera come direttrice di sviluppo delle città del Lombardo-Veneto)[2]; un secondo momento, che ha inizio nel 1974, in cui Canella inizierà un’estesa attività di ricerca sui caratteri tipologici dell’architettura sviluppando un lavoro di ricontestualizzazione su Milano[3] in collaborazione con Antonio Acuto e un gruppo di giovani docenti suoi allievi.

Della prima parte, brevemente, mi occuperò in questo scritto, momento in cui Canella costruirà un apparato teorico inerente alla città e ai suoi processi di trasformazione, progettando e realizzando alcune tra le principali tipologie di edifici pubblici, tra cui proprio degli edifici scolastici, in rapporto alla città e alla sua realtà territoriale.

In questi edifici e soprattutto nei progetti didattici, risalterà la concezione della tipologia come invariante morfologica che permetterà a Canella di ricercare quei caratteri “caso per caso” in un concreto storico circoscritto, tenendo conto, come afferma Bordogna «delle specificità contestuali e delle trasformazioni ipotizzabili nei singoli assetti funzionali: è in questo senso, infatti, che la tipologia acquista valore di assunto metodologico, divenendo di fatto la “filosofia” dell’architetto» (Bordogna 1981, p. 78). Per questo è necessario fare chiarezza su alcuni passaggi del suo pensiero prima di introdurre alcuni casi specifici legati ai lavori didattici e all’opera realizzata.

Coscienza storica; invarianti formali-funzionali; ideazione tipologica

L’approccio all’insegnamento con cui Canella affrontò le questioni legate al progetto architettonico risale al corso di Elementi di composizione a cui, fin dall’anno accademico 1962-1963, prese parte, tentando, fin da subito, di delimitare la sfera di pertinenza che ruota attorno al progetto ritenendo necessario «rendere operante l’analisi dell’architettura al di fuori di un esame comportamentistico, ma anche al sicuro da un esame estetico-convenzionale, attraverso un processo filologico-semantico più complessamente conoscitivo, ossia interamente riferito all’architettura in quanto prodotto storico» (Canella 1968a, p. 90).

Canella condurrà un’analisi di quelle figure dell’architettura che ne hanno contraddistinto la sequenza storica, allo scopo di «rimuovere alcuni pregiudizi e di storicizzarne le cause di concorso – per un loro impiego nella composizione architettonica, in grado – di coinvolgerne, insieme all’emblema, il comportamento in esso obbligato» (Canella 1972, p. 100).

L’acquisizione di una “coscienza storica”, dove via via si realizzano «le rappresentazioni della vita in una determinazione concreta» (Rogers 1963, pp. 2-3), ricca di quei “germi” atti alla trasformazione, diventava quindi il primo elemento del fenomeno architettonico da acquisire, strumento conoscitivo necessario per la comprensione della realtà.

Successivamente, è importante ricordare come, proprio sulla base di questa coscienza storica, Canella introdurrà uno degli elementi più importanti della sua ricerca, le invarianti formali-funzionali che, come lui stesso sosterrà, costituiranno «il disporsi dell’architettura nel contesto fisico: sia che essa ne tenga conto direttamente (come prassi), sia che essa ne tenga conto implicitamente (come teoria)» (Canella 1968a, p. 90). L’invariante diventa quindi lo strumento che gli permetterà di studiare quegli assetti spaziali per poter definire un nuovo concetto di tipologia architettonica.

Per fare chiarezza, oltre all’esempio che riporta nel suo testo Dal laboratorio della composizione, in cui dimostra come la forma del tempio a pianta centrale rinascimentale non dipenda solo da questioni di ordine allegorico-iconologico riprese dalla trattatistica rinascimentale, ma dai rapporti che essa ha con il contesto di destinazione, Canella, in un suo scritto di diversi anni successivo, individuerà esempi di invarianti nell’architettura milanese, strumenti fondamentali che troveranno un riscontro pratico nelle opere costruite, come ad esempio il policentrismo, la discontinuità (nel senso di carenza di gerarchia e di crescendo per sequenze), l’introversione, la promiscuità e la contaminazione fino ad arrivare all’anacronismo, tutti elementi invarianti che lui stesso definisce sì «morfologicamente incoerenti – ma – strutturalmente organici dacché evidenziano tipicamente la frequenza, l’intensità, la polarità degli scambi che una cultura di frontiera e una configurazione insediativa ad arcipelago hanno sedimentato nel lungo periodo» (Canella 1989, p. 59).

Dunque, la scelta dell’invariante, che nasce da una vocazione intuitiva-interpretativa, trova una sua applicazione nel reale attraverso il passaggio da una «figurazione astrattamente consegnata», come ad esempio accade per un componimento letterario, pittorico, musicale, «a un contesto storicamente e collettivamente costituito» come quello della città[4] e della sua periferia, luogo in cui l’architettura non deve mimetizzarsi, ma spazio di approfondimento del compito istituzionale che essa deve svolgere. La città, intesa come fatto storico e strutturale dalla quale è possibile estrarre e riconfigurare quelle potenzialità funzionali, tipologiche e soprattutto formali secondo vocaboli volta a volta di “conformità” o di “difformità”, ma sempre sottesi a un’ipotesi di trasformazione. «Perché è proprio nel corpo fisico della città che le dinamiche strutturali e le sovrastrutture culturali si traducono in assetti spaziali, ovvero isolati, piazze, nuovi quartieri, infrastrutture, fino al determinarsi della specifica opera architettonica» (Manganaro 2013, p. 108).

La storia, la città e il suo contesto fisico, le invarianti formali-funzionali, porteranno Canella a maturare un nuovo concetto di tipologia architettonica che, come si vedrà in seguito, soprattutto nei suoi edifici scolastici, verrà messo in atto. Lo studio della tipologia diventa strumento operativo direttamente finalizzato al progetto, «quella specifica invariante relativa agli assetti spaziali assunti da una specifica destinazione d’uso o funzione, nella successione storica» (Manganaro 2013, p. 111), ricerche caratterizzate da una costante rimessa in discussione della tipologia giungendo, attraverso il progetto, ad una forma costitutiva e soggettiva e ad un’idea di architettura consapevole del compito funzionale a cui l’architettura non può sottrarsi[5].

L’ideazione tipologica rappresenta quindi quella capacità di sintesi che l’architetto, ma anche l’allievo, deve compiere per giungere al progetto, “luogo concettuale” ma anche “fisico” che promuove «l’avanzamento disciplinare garantendosi in tal modo piena legittimità scientifica» (Bordogna 1987, p. 17).

Scriverà Canella in merito: «[…] Per tipologia non intendo una classificazione tassonomica, distribuzionale – nel senso usato dai linguisti – ma la ricerca protesa a recuperare (nell’analisi critico-storica) e a riesprimere (nella sintesi compositivo-progettuale) quei caratteri primari, di più lunga durata […] che contraddistinguono la singolarità di un paesaggio antropico. Il grado di razionalità di un’opera di architettura non può dunque essere desunto dalla logica formale e da quella costruttiva, ma dal suo complesso modo di corrispondere nel tempo e nello spazio, per coerenza o per contraddizione, a quell’insieme che ha assunto funzione e significato di individualità urbana» (Canella 1989, p. 57).

La scuola. Tra teoria e prassi

I temi che contraddistinsero i suoi corsi riguardavano quei capisaldi formali dell’architettura che Canella stesso collocherà nei “mausolei”, nel suo importante scritto del 1968 intitolato Mausolei contro computers. Questi temi erano legati ai comportamenti e alle funzioni di vita associata, comportamenti in grado di modificare l’ossatura della città.

Così la scuola, il teatro, persino una funzione marginalizzata come il carcere, l’università e la fiera sono visti come “gangli” urbani, «caposaldi sui quali dovrebbe essere organizzata, costruita e qualificata una nuova immagine di città, come legame, a un tempo, a un orizzonte fenomenico, a una “visione del mondo”»[6] (Canella 1968b), mausolei dotati di una loro «autonomia di significato» e di una «gerarchia visiva con l’ambiente circostante».

Ma è sul tema della Scuola[7], argomento di questo numero di FAM, su cui mi vorrei soffermare in questa seconda parte, tema in cui i modelli pedagogici più aggiornati verranno utilizzati come espressione di un tessuto sociale e l’organismo scolastico verrà impostato e decifrato partendo dalle sue componenti pedagogico-didattiche e come, queste ricerche, troveranno poi una concretizzazione fisica nelle opere costruite e realizzate da Canella, in particolare nell’Hinterland milanese.

Il tema della scuola primaria fu il primo affrontato tra le “ricerche fondative” degli anni Sessanta, nel biennio dal 1962 al 1964.

Canella era allora assistente di Ernesto Nathan Rogers, presso la Facoltà di architettura del Politecnico di Milano nel corso di Elementi di Composizione[8] e parte dei lavori fatti con gli studenti verranno pubblicati nel celebre libro Utopia della Realtà che divenne slogan nel «significato di una ricerca capace di trascendere la contingenza in nome della realtà che non è mai statica ma sempre in divenire» (Rogers 1965).

Il corso si poneva in antitesi a tutta quella manualistica corrente che, convenzionalmente, assegnava alla didattica nozioni date per definitive, metodologia che in quegli anni spesso imperava nelle varie Facoltà di Architettura, e cercava di coinvolgere diversi problemi simultaneamente, con continuità, attraverso il tentativo di attribuire alla composizione architettonica minore automaticità e immediatezza, concentrandosi sulle proprietà intrinseche della sua tecnica specifica e del suo incessante rapporto con la storia dell’architettura.

Il tema della tipologia della Scuola Primaria fu affrontato come ricerca metodologica, quindi non “praticistica-professionale”, ma in grado di «assumersi il compito di anticipare, attraverso modelli di verifica, le evoluzioni funzionali secondo cui la società tende a organizzarsi nelle sue espressioni» (Rogers et al. 1965, p. 134).

Lo studio era volto principalmente al contenuto sociale della scuola dove la scelta pedagogica era data come logica conseguenza della ricerca.

La scuola diventava quindi l’occasione di studio del rapporto tra uomo e città e del problema, ancora oggi presente, dell’adeguamento delle strutture della società alle esigenze del cittadino: «La conoscenza della società presente implica la conoscenza della storia della quale il presente è un momento di sviluppo: senza questa conoscenza la considerazione di ogni fenomeno resta indeterminata e gli oggetti non riescono ad essere localizzati entro le coordinate dello spazio e del tempo» (Rogers 1962).

Come si vede nei lavori che furono pubblicati, i progetti non erano spinti al dettaglio architettonico, alla ricerca dei materiali o degli aspetti linguistici, ma le figure restavano forme neutre, composte l’una con l’altra fino ad arrivare ad una scelta “conoscitivamente fondata”, in cui lo studente poteva «assecondare, fino a vincolare, il rispetto, di un preciso programma e di una decisiva trasformazione» (Canella 1972, p. 99) pervenendo ad una sintesi coerente alla sua logica formale o costruttiva.

Tutto ciò è riscontrabile chiaramente nei lavori pubblicati nel libro L’utopia della realtà, in particolare dai gruppi coordinati dallo stesso Canella e successivamente troverà conferma anche nei famosi prototipi didattici dove verranno realizzati quegli “embrioni formali” nei quali si fa più «incisivo il dettato della società», che contengono il «sigillo dell’idea architettonica» (Canella 1966, p. 165).

L’embrione formale sarà l’elemento decisivo della sua ricerca progettuale condotta negli anni ’60, architetture capaci di rappresentare le potenzialità di trasformazione dei comportamenti nelle attività di vita associata e lo studio delle questioni tipologiche, esito di un montaggio di funzioni integrate, che solo nella loro unione trovano compiutezza formale.

Architetture, articolate tipologicamente, ma fatte da masse volumetriche neutre, prive di dettagli, nelle quali l’invariante diventerà qualcosa di reale e concluso, fisicamente riscontrabile e individuabile attraverso un sistema funzionale ben definito visto «come patrimonio inscindibile dalla storia dell’architettura […] che non può essere ridotta all’accezione particolaristica di funzione ereditata dalla manualistica ottocentesca ed esasperata dalla componente tayloristica del movimento moderno» (Bordogna 1987, p. 16).

Questi lavori dimostrano come anche il lavoro sulla forma assumerà una straordinaria importanza, una forma che quindi non nasceva da una deduzione sistematica, da regole predeterminate e tipologie ripetibili, ma dall’essenza stessa dei mezzi impiegati, dall’analisi quindi e dalla attenta selezione di questi mezzi scelti: «Perciò, in questo lavoro, non si devono trovare i presupposti di una tendenza nella scelta di figure simili valide dappertutto, ma essi vanno verificati in intenzioni e direzioni comuni di conoscenza, capaci di riconoscere e conquistare un contesto nuovo all’architettura – una forma – capace di coinvolgere insieme all’emblema il comportamento in esso obbligato. Soltanto così, promuovendo la scelta della figura a un tutt’uno con la scelta del tipo (cioè, con la geometria stessa della funzione), essa è in grado di costituirsi in programma contro la separazione, per un diverso e nuovo comportamento, per un diverso e nuovo rapporto tra pubblico e privato, tra collettivo e individuale ecc» (Canella 1972, p. 99).

È innegabile come queste ricerche sul tema della Scuola Primaria, questi “embrioni formali”, contribuirono allo sviluppo in Canella di una precisa idea di architettura che troverà il suo massimo raggiungimento nelle sue opere realizzate dove risulterà chiaramente impressa, come afferma Bordogna (1981): «l’influenza degli studi sui processi di integrazione e consolidamento funzionale, interpretati come tendenze strutturali che caratterizzano le configurazioni tipologiche e insediative di contesti altamente sviluppati; tendenze in se neutrali, ma delle quali, in sede progettuale, si tratta di forzare le virtualità positive attraverso una forte intenzionalità di distinzione e la prefigurazione di nuovi comportamenti di massa».

In questi progetti l’attività scolastica risulta sempre essere integrata a un articolato regime funzionale, trasformando l’edificio scolastico, in vero edificio pubblico, che, come una basilica laica, attraverso una sapiente caratterizzazione linguistica carica di citazioni provenienti da quella coscienza storica descritta inizialmente, «diventa momento di identificazione culturale e di autorappresentazione delle comunità cui è destinato» (Bordogna 1981, p. 78).

Cito solo quattro casi, a mio parere tra le scuole più emblematiche progettate da Canella[9].

La Scuola elementare presso il Villaggio Incis di Pieve Emanuele (1968/73), edificio che contribuisce alla costruzione di una piazza articolata dall’integrazione di diversi edifici con funzioni differenti (Scuola elementare, Scuola materna, complesso parrocchiale, Centro Commerciale, Edificio multiuso) è articolata in tre corpi: due paralleli, con le aule e un corpo interposto tra essi ortogonalmente contenente l’atrio d’ingresso, direttamente aperto sulla palestra ribassata, il refettorio, le segreterie ma soprattutto caratterizzato da una grande gradonata, ricavata nella copertura dei sottostanti spogliatoi della palestra, che delinea il prospetto corto dell’intera scuola in affaccio alla piazza pubblica (spalti oggi malauguratamente sostituiti da un terrapieno verde).

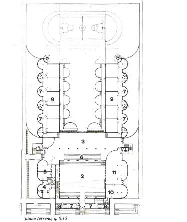
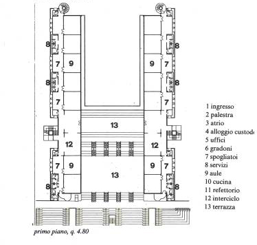
La Scuola elementare con sezione di scuola materna di Noverasco e con campo sportivo (1971) adotta il tipo basilicale a tre navate. Nelle navate laterali si trovano le aule e i servizi mentre in quella centrale Canella inserisce la palestra, sulla quale si affaccia una gradonata che funge sia da tribuna che da piccolo teatro/aula magna a disposizione degli studenti e della comunità e coperta a sua volta con una copertura gradonata che diventa un piccolo sfogo all’aperto per le aule del corpo nord.

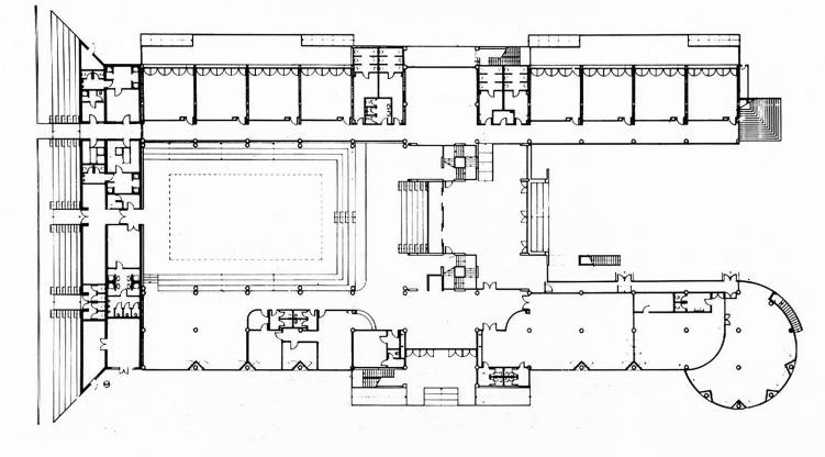
Nella Scuola media annessa al complesso municipale di Pieve Emanuele (1972) le funzioni scolastiche vengono fisicamente integrate con le attività della comunità di Pieve Emanuele da quelle municipali e amministrative a quelle culturali e sportive: la palestra della scuola diventa palazzetto dello sport e le sue gradonate sala d’attesa per chi si reca in Comune; l’aula magna diventa aula consigliare, auditorium e teatro, ospitando, per diversi anni, importanti compagnie teatrali; la biblioteca scolastica diventa biblioteca comunale; il refettorio, mensa per i dipendenti comunali e i lavoratori della zona, la copertura della palestra una grande piazza sopraelevata che domina sul paesaggio circostante.

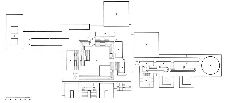
Infine la Scuola media con attrezzature sociali municipali a Monaca di Cesano Boscone (1975-1982), che rappresenta uno dei casi più emblematici dell’opera di Canella per il suo presupposto di trasformazione dei comportamenti civili. L’edificio è formato da un grande corpo cilindrico, posto a cerniera tra i due corpi scolastici in linea, che contiene una grande palestra sormontata, attraverso una struttura portante di colonne in cemento armato e travi reticolari trasversali in acciaio, da un auditorium/teatro contenente circa 500 posti a sedere con camerini annessi, una biblioteca e delle aule speciali. Questo corpo cilindrico, che diventerà teatro, cinema, palazzetto dello sport per un intero settore di espansione dell’Ovest milanese, alternerà, alla vita scolastica, la vita della città, diventandone di fatto, «il fulcro visivo e civile, assumendo così i caratteri di un’“architettura di fondazione”, motrice di urbanizzazione e di riaggregazione sociale di contesti insediativi fortemente degradati» (Bordogna 1981, p. 78).
Per concludere, è doveroso riportare la questione all’oggi e chiedersi qual è l’eredità di queste ricerche e di queste opere e perché è importante continuare a studiarle, mostrale agli studenti, interrogarsi su di esse.

In primo luogo la riflessione principale va a un certo modo di intendere la scuola, la didattica e la ricerca per Canella, e di come questa ricerca trova poi un riscontro nell’opera costruita. Scriveva Rogers a proposito della ricerca fatta a scuola di come essa debba restare «libera da quei compromessi d’ordine pratico e contingente che appesantiscono l’esplicazione (e, persino, la formulazione) dei programmi di una società in divenire» (Rogers 1965, p. 14). Questo aspetto, che oggi si sta via via sgretolando, dovrebbe essere un punto indiscutibile all’interno delle nostre università.

Poi vi è l’importanza di certi aspetti teorici che per Canella riguardano «più l’oggetto e i mezzi di trasmissione della conoscenza che la definizione ultima dell’architettura in stile»[10] (Fiori, Boidi 1984, p. 17), ambizione nobile, che non rimane solo utopia ma trova una verifica reale nel progetto allontanandosi da quelle architetture condizionate dal predominio dell’immagine, dalle necessità consumistiche, dalle ragioni illusorie della tecnica e delle mode.

Infine, l’ultimo aspetto, è relativo a un certo modo di intendere l’architettura intesa non solo come rappresentazione, ma come volontà di trasformazione che contempla una concezione del mondo, come tentativo di costruzione di una nuova identità, luogo in cui trasmettere una base conoscitiva per sviluppare, con autonomia e rigore, l’espressione.

Tutti aspetti fondamentali che dovrebbero essere costantemente discussi e restare al centro della nostra disciplina.

Note

[1] Di queste esperienze è da sottolineare in primo luogo la durata biennale dei lavori di ricerca, in cui l’analisi istruttoria assumeva un ruolo decisivo spingendosi in molti casi oltre i confini strettamente disciplinari grazie anche a saperi diversi trasmessi dai docenti provenienti da varie discipline, messi in campo dallo stesso Rogers e dai suoi allievi. Questo atteggiamento, caratterizzato da una forte presa di posizione, riportò l’attenzione sulla centralità del progetto architettonico contro la tendenza a tenere marginale o addirittura escluderne il ruolo formativo nella Facoltà di Architettura nel periodo di contestazione tra il 1963 e il 1968. Tra i volumi pubblicati da Canella in merito a queste ricerche si ricorda: L’utopia della realtà, pubblicato assieme a Rogers, del quale Canella curò la redazione del volume; Il sistema teatrale a Milano che, nel 1966, inaugurò la collana Architettura e Città curata da Guido Canella pubblicata da Dedalo nella quale, nel 1975, Canella con D’Angiolini pubblicò anche il libro Università ragione contesto tipo.

[2] Questa prima fase si concluderà nel 1971, con la sospensione che, il ministro democristiano Misasi, decretò nel confronto del Consiglio di Facoltà composto da sette membri di più generazioni di maestri tra cui Albini, Bottoni, Belgiojoso, De Carli, Viganò e, tra i più giovani, Rossi, Canella e Portoghesi. Questa sospensione durò circa tre anni ed ebbe conseguenze rilevanti perché al reintegro Albini e Bottoni mancheranno e Rossi non tornerà più ad insegnare a Milano perché si trasferirà a Zurigo e poi a Venezia. Relativamente agli anni della formazione si veda il testo di Bordogna E. (1987) – “Gli anni della formazione”. In: Id., Guido Canella. Architetture 1957-1987. Electa, Milano, 7-12.

[3] Guido Canella nel 1974-1979 dirigerà l’Istituto di Composizione, nel 1979-1981 il Dipartimento di Progettazione Architettonica del Politecnico di Milano e nel 1977 fonderà la rivista trimestrale Hinterland. Disegno e contesto dell’architettura per la gestione degli interventi sul territorio.

[4] Scrive Elvio Manganaro nel suo libro sul concetto di tipologia edilizia in Italia: «In realtà la ricerca delle invarianti non è solo un meccanismo di tipo riflessivo e descrittivo, buono in fase analitica, ma è reversibile, in quanto organizza le conoscenze in categorie formali e funzionali da subito impiegabili dall’architetto. Canella parla addirittura, a proposito delle invarianti, di embrioni funzionali e fisici in cui l’architetto può controllare i processi architettonici». In: Manganaro E. (2013) – Funzione del concetto di tipologia edilizia in Italia. Mondadori, Milano, 110.

[5] Cfr. Canella G. (1985) – “Dieci opinioni sul tipo. Interventi di Oswald Ungers, Oriol Bohigas, Carlo Aymonino, Anton Schweighofer, Aldo Rossi, Manuel de Solà-Morales Rubiò, Ludovico Quaroni, Rob Krier, Guido Canella, Aldo van Eyck”. Casabella, 509-510, (gennaio-febbraio), 108.

[6] Questo testo è stato pubblicato in: Canella G. (1968) – “Mausolei contro computers”. Il Confronto», 1, (IV), 39-43. Ripubblicato in lingua francese con il titolo “Mausolées contre computers”. L’Architecture d’Aujourd’hui, 139, (settembre 1968), 4-7; e nelle riviste L’architetto, 1-2, (XIV 1969), 8-11; Hinterland, 18 (settembre 1981), 4-9; infine è stato ripubblicato in: Id. (2011), Un ruolo per l’architettura, Monica L. (a cura di). Clean edizioni, Napoli, 6-45.

[7] Canella G. (1965) “Relazioni tra morfologia, tipologia dell’organismo architettonico e ambiente fisico”. In: AA. VV., L’utopia della realtà. Un esperimento didattico sulla tipologia della Scuola Primaria. Leonardo da Vinci, Bari, 66-81.

[8] E.N. Rogers ebbe l’incarico del Corso di Elementi di composizione tenuto presso la Facoltà di Architettura del Politecnico di Milano nei due anni accademici 1962-1963 e 1963-1964 (anno in cui Rogers divenne titolare della cattedra).

[9] In merito agli edifici scolastici progettati da Guido Canella si vedano in particolare le monografie: Suzuki K. (a cura di) (1983) – Guido Canella. Zanichelli, Bologna; Bordogna E. (1981) – “Radici tipiche della architettura scolastica a Milano”. Hinterland, 17, (marzo), 68-78; Bordogna E. (1987), Guido Canella. Architetture 1957-1987. Cit.; Bordogna E. (2002) – Guido Canella. Opere e progetti. Electa, Milano. Si veda anche il contributo su volume: Prandi E. (2014) – “Nel gran teatro dell’Hinterland e non solo”. In: Bordogna E., Canella Ge., Manganaro E. (a cura di) (2014) – Guido Canella 1931-2009. Franco Angeli, Milano, 231-237.

[10] Si veda l’intervita a Guido Canella pubblicata in: Fiori L. e Boidi S. (1984) – “Intervista a Guido Canella. La reinvenzione tipologica”. In: Id., (a cura di) – Canella. Centro Civico. Abitare Segesta, Milano, 17.

Bibliografia

BORDOGNA E. (1981) – “Radici tipiche della architettura scolastica a Milano”. Hinterland, 17, (marzo), 66-78.

BORDOGNA E. (1987) – Guido Canella. Architetture 1957-1987. Electa, Milano.

BORDOGNA E. (1986) – “Meditazioni gaddiane”. L’architettura. Cronache e storia, 363 (gennaio), 6-46.

BORDOGNA E. (2002) – Guido Canella. Opere e progetti. Electa, Milano.

BORDOGNA E., CANELLA GE. e MANGANARO E. (a cura di) (2014) – Guido Canella 1931-2009. Franco Angeli, Milano.

Canella G. (1965) – “Relazioni tra morfologia, tipologia dell’organismo architettonico e ambiente fisico”. In: Rogers E. N. et al., L’utopia della realtà. Un esperimento didattico sulla tipologia della Scuola Primaria. Leonardo da Vinci, Bari.

CANELLA G. (1966) – Il sistema teatrale a Milano. Dedalo libri, Bari.

CANELLA G. (1968a) – Dal laboratorio della composizione”. In: AA.VV., Teoria della progettazione architettonica. Dedalo, 1968.

CANELLA G. (1968b) – “Mausolei contro computers”. Il Confronto, 1, (IV), 39-43.

CANELLA G. (1972) – “Ingegneri create nuove forme”. Controspazio, 5-6 (IV), 99-100.

CANELLA G. (1985) – “Dieci opinioni sul tipo. Interventi di Oswald Ungers, Oriol Bohigas, Carlo Aymonino, Anton Schweighofer, Aldo Rossi, Manuel de Solà-Morales Rubiò, Ludovico Quaroni, Rob Krier, Guido Canella, Aldo van Eyck”. Casabella, 509-510, (gennaio-febbraio), 92-112.

CANELLA G. (1989) – “Comporre secondo alcune costanti”. In: CIUCCI G., L’architettura italiana oggi. Racconto di una generazione. Editori Laterza, Bari.

CANELLA G. (2011) – Un ruolo per l’architettura. MONICA L. (a cura di). Clean edizioni, Napoli.

FIORI L. E BOIDI S. (1984) – Canella. Centro Civico. Abitare Segesta, Milano.

MANGANARO E. (2013) – Funzione del concetto di tipologia edilizia in Italia. Mondadori, Milano.

ROGERS E. N. (1962) – “Appunti sul fenomeno architettonico”. Casabella, 266, (agosto).

ROGERS E. N. (1963) – “L’insegnamento della composizione architettonica”. Casabella-Continuità, 280, (ottobre), 2-3.

ROGERS E. N. ET AL. (1965) – L’utopia della realtà. Un esperimento didattico sulla tipologia della Scuola Primaria. CANELLA G. (a cura di). Leonardo da Vinci, Bari.

SUZUKI K. (a cura di) (1983) – Guido Canella. Zanichelli, Bologna.