Schools of the Roman School

Anna Irene Del Monaco



This brief note is intended to shortly retrace some project, study and teaching experiences on the subject of school and university construction carried out by at least three generations of Roman architects, active during the twentieth century in Rome and in other Italian cities, and to highlight the outcomes, in terms of urban form, of the relationship between the design solutions proposed for the architecture of schools and the parts of the city in which they were built.

A quick comparison of the bibliographic sources and literature allows us to point out that the greatest proactive ferment corresponded to the periods in which national political programs were implemented; among these the most significant phases correspond to the years between the end of the nineteenth century and the Fascist period, to the years between the second postwar period and the seventies, and to some interventions between the eighties and the 2000s; the latter, in particular, saw the construction of new university campuses or their extensions. Looking closely at the experiences that the Enlightenment studies and theories on the modern scholastic organism of Jean-Jacques Rousseau, Robert Owen and Johann Heinrich Pestalozzi attempted, we see that they found continuity, about a century later, in the concept of “active school” by John Dewey and Maria Montessori, which in Italy had their first results, for example, in the “Children’s Houses” : the first was built in San Lorenzo in 1907 and was the first attempt to «reorganize a social life having as fulcrum the school» and of «structural reform of the urban agglomeration» (Cicconcelli 1958, p. 859).

In the context of the post-war events and among the personalities of the school of Rome who most contributed to the theme of school building, Pasquale Carbonara, a pupil of Enrico Calandra, had a fundamental role, indeed founding, as evidenced by the volume Buildings for education (Edifici per l’istruzione), published by Vallardi in 1947. The important research activity that he contributed to set up and conduct, at least during the first phase, from the early 1950s– always targeting the most advanced international references –, involved the group of his students and assistants (Ciro Cicconcelli, Diambra de Sanctis, Alberto Gatti, Alberto Carpiceci, Fausto Ernammo Leschiutta) at the Study Center for School Buildings of the Ministry of Education. Research activity documented by the “Notebooks of the study center for school construction” published from 1953 to 1963, through files that had as their objective the solicitation of a reform of the regulations for school construction, to which was added the number 25 of the magazine “Review of Architecture” of 1952 and the volumes of Practical Architecture of 1954 which dealt with school buildings.

Ciro Cicconcelli, in particular, co-author of section 7^ (The buildings for education) of Practical Architecture (Architettura Pratica, Utet 1954), one of the protagonists of the renovation and studies on school buildings, was director of the Study Center from 1958, in continuity with the master Pasquale Carbonara; referring to the first decade of the twentieth century, he observed that in those years there was still no qualified level of studies on school building and that the main reference were still churches and barracks, respectively elaborated on the basis of the English and German traditions «[ …] The cities continued in their chaotic development, they become bigger and bigger and, if there are some general principles in terms of urban planning, there are none as regards the sizing of the schools and the distribution of these in the city plot. School buildings are built without realizing the importance they have for the urban organism and without clearly seeing the economic, pedagogical and social aspects framed in the very life of the community» (Cicconcelli 1958, p. 853).

But it should be noted that already in the first formulation of 1904 of the Une Cité Industrielle project, formulated by Tony Garnier, published only in 1918, schools were included in addition to residential complexes, sports facilities and hospitals, according to a Taylorist thesis that analyzed the importance of hygiene and health factors such as light, air, ventilation, vegetation (Guillén 2008).

Scrolling through the review of projects collected in Practical Architecture (Architettura Pratica) by Cicconcelli and dwelling on the dates, it is clear that German modernist architecture had proposed innovative experiments on schools at least ten to fifteen years earlier than the Italian achievements. Among the projects worthy of mention: Bruno Taut’s school complex in Berlin-Neukölln (1927), F. Schumacher’s Angerstrasse vocational school in Hamburg (1927) and Ernst May’s Reformed School at Bornheimer Hang in Frankfurt (1927). Even the typological schemes created in Rome between 1923 and 1927 are comparable to some German schools such as the middle school for girls built in Darmstadt in 1900 (Cicconcelli 1958, p. 853).

The design themes of school buildings, therefore, had a considerable importance among Roman (and more generally Italian) academic architects, since they coincided with the measures for the modernization of the country and therefore with the new pedagogical experiments to be implemented within a urban transformation program that at first, in numerical terms, appeared to be interpretable in the same way as the INA-Casa program – as Cicconcelli testified on several occasions, although the demographic trend expected during the 1960s did not correspond to reality. In the drafted projects, experiments on typological and hygienic-sanitary aspects and construction systems were integrated, to create a building that was both of quality and mass.

Marcello Piacentini – Innocenzo Sabbatini – Augusto Antonelli – Vincenzo Fasolo – Mario De Renzi – Ignazio Guidi – Mario Moretti

The years between the Town Plan of 1883 (Alessandro Viviani) and the Town Plan of 1909 (Edmondo Sanjust di Teulada) saw the urban development of some neighborhoods within and outside the Aurelian Walls of Rome (Esquilino, Prati di Castello, Appio-Latino, Prati delle Vittorie, Salario, Garbatella, Aniene Garden City, etc.); in particular, during the syndication of Ernesto Nathan (1907-1912), measures were taken to implement public services within the neighborhoods built on the basis of the 1883 Town Plan (Esquilino, San Lorenzo, Appio, etc.). So, to help solve the illiteracy problem, new schools were created, increasing the number of students from about 30,000 to over 40,000. Over the course of the twenty-year period, «the school became one of the sources of indoctrination of young people for the political regime»: schools were built for an amount equal to 24 million lire (about 20 million euros) and a technical office for construction was established school directed by Mario Moretti, designer of the Liceo ‘Torquato Tasso’ in Via Sicilia.

Most of the buildings built in those years relate to the perimeter of the urban block according to a courtyard or semi-courtyard system, and establish a hierarchical relationship, also through the architectural facings, with the urban morphology of the neighborhood. In general, what is observed in the first new school building projects in Rome at the beginning of the last century, in fact, is the attempt to coordinate the problem of inserting the new building into the urban fabric and the principles of the new pedagogy that are spreading throughout Europe, in particular the issue of “outdoor schools”, therefore the use of entrance spaces, terraces, loggias, internal gardens or that surround the building, although in Roman school buildings the internal system is characterized by symmetrical courtyards or semi-courtyards, and by the classroom-corridor system up to the interventions of the Sixties (Bonavita 2005, pp. 76-79) which refer, instead, to different models.

The competition launched in 1925 for “Four school buildings in Rome” by the Artistic Association among Architecture Lecturers – cultural institution in which Gustavo Giovannoni had a primary role until the mid-thirties and which culturally influenced the urban and architectural transformations of the capital – demonstrates the importance of the Roman debate on school buildings in those years. Among the projects presented, published in “Architecture and Decorative Arts”[1] in 1926, those drawn up by Alberto Calza Bini, Luigi Ciarrocchi, Roberto Marino, Achille Petrignani, Marcello Canino, Gaetano Rapisardi, Mario De Renzi and Giuseppe Wittinch stand out, Vittorio Cafiero.

In the same years, Innocenzo Sabbatini and Mario De Renzi, undisputed Roman masters, tried their hand at the following projects: the ‘Luigi Luzzatti’ kindergarten at Garbatella (1927-1930) whose loggia looks like a quote of Villa Lante by Giulio Romano on the Gianicolo, inspired by the classicist language – not far from the choices of Mario De Renzi for some model houses in the Garbatella (Lot 24) of 1929 – affirming the concept of “home-school” since the 1920s – a courtly house interpreted in the case of the Sabbatini kindergarten – which will continue to be considered until the 1950s; the Filippo Corridoni elementary school (1932-1935) in Fano, a ‘Roman’ version of rationalism compared to the school designed by Ignazio Guidi, which we will analyze later, a project entirely carried out in the ‘Nordic’ orthodoxy of language rationalist.

In the Esquilino neighborhood, in particular, the first built in post-unification Rome, several years after the first new building built by the Municipal Technical Offices[2], the ‘Pilo Albertelli’ high school (1879), the ‘Di Donato’ school was built considered an experiment that went beyond the idea of the school as a barracks or as a hospital: the administration held a competition and “the winning project is by the architect Augusto Antonelli (1885-1960), ‘brave’ official of the Municipality of Rome”, designer of the School Elementary Fourth November at Testaccio, «which on 22nd September 1923 is entrusted with the executive project» (Severino 2019, p. 8). The building, three floors high above ground and arranged around a courtyard with playgrounds, is marked by decorative elements typical of the more cultured “sixteenth century”, recurrent in Roman architecture of the late nineteenth and early twentieth centuries and by architectural apparatuses of completion of the urban residences of the past centuries (loggias, roof terraces) rather than of modern specialized buildings, to mark the idea of “home-school”.

At the same time, on the lot along Via Nino Bixio, what will become the ‘Galileo Galilei’ Industrial Institute takes shape after a few years. In fact, in 1917, «following the retreat from Caporetto, the temporary transfer to the capital of the ‘A. Rossi’ in Vicenza for his refugee students and some Roman students, in Via di San Basilio, while the workshops were located in shacks in front of the ‘Mercato delle Erbe’ on Via Nino Bixio»[3]. Meanwhile, in 1923, the Gentile Reform was launched; the school was no longer considered a “school of free research”, but a “channel of mobility and social promotion”. Then, the Industrial Institute, which already held courses for pre-military education (fitters, aviation engineers, specialization for telegraphists), whose new headquarters were being built, continued according to the “school-workshop” model. In 1920, therefore, a public competition was announced by the Board of Directors for the construction of the building which «was won by the project presented by Marcello Piacentini (1881-1960)» (Severino, ibidem). The realization of the project, however, continued in several phases due to lack of funds and the completion took place under the responsibility of the engineer Mario Tommasetti, who partially modified the project, adding a floor in the main body (you can guess because of the silent facade on the internal courtyard), with a severe character and inspired by industrial buildings, while the warehouses were the first to be built under the supervision of Piacentini. In 1923 the Liceo ‘Terenzio Mamiani’, established in 1885, also moved to the new headquarters in Viale delle Milizie, built on a project by Vincenzo Fasolo; the planimetric scheme defines a sequence of semi-open courtyards intersected by a central body that ends with an everted portico on the entrance court which qualifies its hierarchical character, one of the most cited examples of the so-called Roman “baroque”. Fasolo had already built the ‘Alberto Cadlolo’ School on Lungotevere Tor di Nona in 1912, a singular building not far from the Liceo Virgilio built between 1936-37 by Piacentini on Via Giulia.

A representative project of other public buildings is the ‘Mario Guglielmotti’ School – today the ‘Alessandro Manzoni’ Elementary School – designed by Ignazio Guidi (another very valued architect and official of the Municipality of Rome) in 1932 in Via Vetulonia in the Appio-Latin district. The building, whose layout could not ignore a pre-existing building, is one of the first rationalist buildings built in Italy[4], remodeled in the 1950s with the addition of a floor. About this school Gaetano Minnucci wrote in 1933: «it is a school building of the Governorate of Rome; it rises a few steps from the monumental and severe Aurelian Walls, in sight of Porta Latina and not far from Porta Metronia; it is the first Italian school conceived from top to bottom from inside and outside, with criteria and with a new spirit, today. All this says that even the official technical and artistic bodies, the offices that, due to their function and atmosphere, seemed less ‘novecentizzabili’ [in line with Novecento Style] in Italy, have finally opened their windows to the pure air of the architecture of our time. […] All the classrooms are equipped with ventilation ducts with regulating valves; [...]» (Minnuci 1933, p. 23-35). The affirmations of Minnucci, one of the most skilled, refined and cultured designers of his generation, are testimony to the cultural climate of those same years.

Pasquale Carbonara – Ludovico Quaroni – Ciro Cicconcelli – Luigi Pellegrin – Alberto Gatti/Diambra De Sanctis – Claudio Dall’Olio – Sergio Lenci – Lucio Barbera – Giuseppe Rebecchini

The teaching and research activities of some professors of the Faculty of Architecture of Rome accompanied or anticipated some ministerial initiatives in the first twenty years of the post-war period, such as the “Ministerial Commission for the development of new programs, instructions and models for elementary and nursery schools” (Ministerial Decree February 9, 1945) by Minister De Ruggiero, “National Commission of Inquiry into School Reform (1947-49)” by Minister Guido Gonnella and Minister Gui’s 1962 “Reform of the Middle School”.

In the 1952 issue of “Rassegna Critica di Architettura” and in the Quaderni del Centro Studi of the Ministry (1953-65), Ciro Cicconcelli proposes as a prominent example the project of the school built by Scharoun in Darmstadt in 1951 and, in Practical Architecture, a few years later, he extended the survey to the school designed by Günter Wilhelm in Stuttgart in 1952-54; both are demonstrative cases of the translation into spatial quality and architectural forms of the most advanced educational principles in those years, including the theories of the German child neuropsychiatrist Erich Stern and his book Jugendpsichologie (Psychology of Youth, 1923) – it is the first time, he recalls Cicconcelli (1952, p. 8), that a school is designed by an architect who «sets out to give the child not a metric space but a psychological space as a” form of the known» (Kant). This type of solutions, together with the theories already widespread and implemented for some time in the achievements of the first thirty years in Rome of the “open school” are interpreted in their respective projects by Ciro Cicconcelli and Diambra de Sanctis with Alberto Gatti in the competition trial delivered for the “National Competition for elementary school projects” banned by the Ministry of Education. The review “Rassegna Critica di Architettura” of 1952 published five of the seven projects reported (not all of which reached the editorial office due to the time of printing). The first prize was awarded to the architects Alberto Gatti and Diambra de Sanctis, the second prize to Ciro Cicconcelli (who the previous year had won the first prize), for a school project with 5 classrooms. The intent of the Ministry’s Central School Building Service was, through these competitions, to finance some small schools in the area around Salerno. The typical school designed by Gatti-de Sanctis was realized in three schools that differ in the number of classes, from two to five: in San Giuseppe di Cava dei Tirreni, San Martino di Cava dei Tirreni and in the hamlet of Marini – it is very recent (June 2021) the news (www.lacittadisalerno.it) of the closure of the latter due to lack of subscribers, only four children, regarding the current demographic trend.

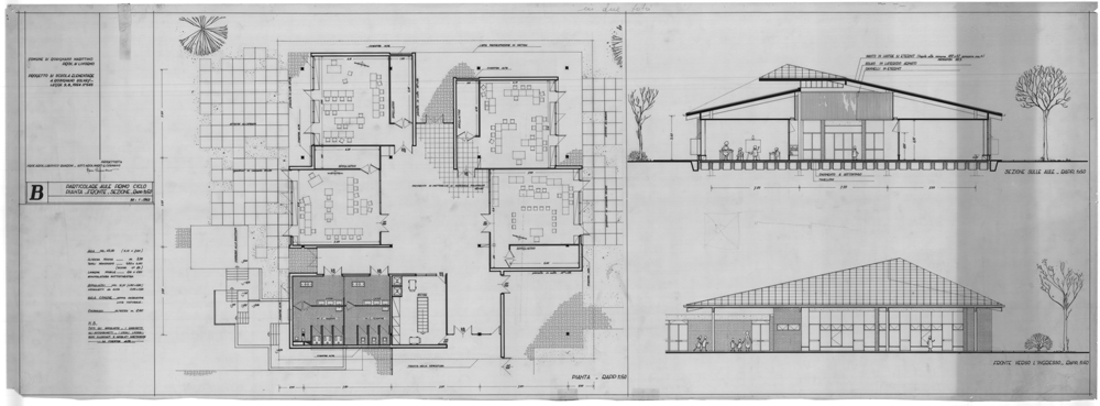
Ludovico Quaroni’s projects for the school of Canton Vesco (1955) and Rosignano Solvay (1961) also date back to the mid-fifties and early sixties, the latter designed with the very young Mario Guido Cusmano (law 9 , 8, 1954 n.645), both based on the idea of modular units (classes) arranged around a common aggregation space, within an enclosure and under the same roof, i.e. an idea of spatial organization that can be associated with that of a “Court house”. But even in this, as in other cases, the idea of space selected by the designers corresponds to the best possibility of optimizing the building quantities and the functional program with respect to the size of the lot and the character of the surrounding urban fabric. Later Cicconcelli continued to develop studies on schools, and to design some with his colleague and partner Luigi Pellegrin, author of several innovative school complexes including the ‘Concetto Marchesi’ school complex in Pisa in 1974, experimenter of prefabrication systems and of related patents, a very widespread system in those years, when «a policy attentive to spin [s] quality and experimentation, so much so that, as rarely happens in Italy, between 1958 and 1963 [were] filed about 200 patents that testify to a phase of research and widespread and innovative entrepreneurship» (Cupelloni 2014). Sergio Lenci, in fact, in the School of Formello – designed with Fausto E. Leschiutta, Vittore Martelli, Eduardo Micheletti, and engineer Roberto Leonori – following a competition tender announced by the Ministry of Education, in implementation of the experimental school building program envisaged by law no. 1358. The main purpose of the program was to promote interest in prefabrication in the school building sector and to qualify the companies concerned. Using the same system, Lenci designed a “School for visually impaired children in Rome” along Via Gregorio VII. «[…] The Leonori construction system consists of a series of prefabricated reinforced concrete elements in the factory and naturally dried, transported on trucks and assembled on site by means of crawler cranes. The pieces fit together and are sealed with a concrete casting or with welding of the steel plates incorporated into the pieces themselves. […] The construction system must also make it possible to obtain a different distribution of the rooms by means of easy displacements or the abolition of internal separation elements. Systems by which large rooms can be obtained, without the encumbrance of pillars or internal structural elements, will be preferred. How the two requirements listed above should be interpreted is clarified in the many writings of Ciro Cicconcelli, director of the Study Center for school buildings of the Ministry of Education, and in particular in “Planning in prefabricated school buildings” in nos. 4-5 of the ‘Papers of the Study Center for school buildings’. [...] For many years Cicconcelli has been conducting a discourse that can be summarized in the formula “equal education for all must correspond to an equal building level for all”. This level can be guaranteed by industries and in particular by prefabrication; prefabrication can be offered as a ‘ready-made’ solution, indeed it is possible, when some fundamental issues have been solved, to repeat the same project. In fact, if you think about how many thousands of schools have to be built in our country, the idea of making each of them a particular object makes no sense; on the contrary, we are much surer of the results if we arrive at standardization, which is achieved precisely through contracts with prefabricated buildings. [...] The Leonori prefabrication system, used in the Formello school, fully responds to these requests, and in addition, it seems to us to have an expressive potential that enhances the possibility of prefabrication in reinforced concrete against that in metal, and indicates a way different from that of the so-called heavy prefabrication, to which all in all we owe the widespread diffidence about the figurative possibilities of prefabrication in reinforced concrete» (Lenci 1969, pp. 324-338). Lenci’s quote describes a series of problems and returns the salient issues of the cultural and technical debate of those decades.

On the “Quaderni del Centro Studi” (new series no. 3) is present, among others, Claudio Dall’Olio with his project for the competition for the Liceo Scientifico in S. Benedetto del Tronto drawn up in the mid-1960s, according to a floor plan divided into modular units corresponding to classrooms and services that surround the larger module, corresponding to the aula magna, and are distributed on the urban lot according to an open plot and dialoguing with the surrounding urban environment. In the same notebook, the Study Center publishes some very interesting projects drawn up in the course of Saul Greco, with commentary texts signed by Sergio Lenci, Saul Greco and Ermanno Leschiutta that deal with “the organization of the technical and professional school as an element of planning”, in particular the “Campus” as a school structure for the city-territory (among the students of the Ciucci course, De Giorgio, Muntoni, Pazzaglini, Toccafondi): «a concentration of school services qualified by specialty and equipment and suitably related and sized with respect to the city-territory can represent an integral structure on which the residence can rest as on one of the fundamental càrdini; that is, an intervention plan is hypothesized in school planning for nuclei concentrated and distributed throughout the territory» (Lenci 1963, p. 28).

This set of questions, projects and studies, conducted in parallel with the events of urban and residential development, almost certainly had a direct and indirect importance for the way in which the experiments on the design of university campuses carried out from the 1960s onwards were conceived. meaning «the mass university as the search for a new model» (De Carlo 1968).

If from the early 1950s the course of Pasquale Carbonara – in which a fundamental seminar, according to the testimony of the students, was held by Ciro Cicconcelli – was centered around the theme of school planning, in the years between 1963 and 1966 the courses of Ludovico Quaroni experimented with the theme of the University. In those courses, most of those among the Roman architects who subsequently ventured into the profession on the subject of school and university buildings were trained as teachers and students (Barbera 2019, p. 58).

In addition to the very important contribution to Italian school buildings, Ciro Cicconcelli and Luigi Pellegrin designed in 1969 a very interesting competition project for the Universidad Autonoma de Barcelona.

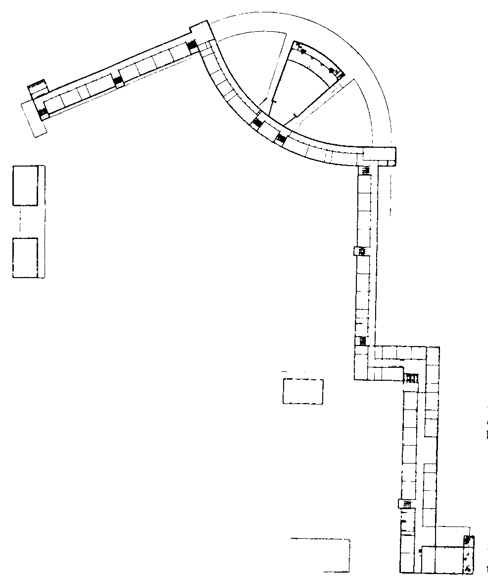
Among the aforementioned personalities, Lucio Barbera, won the competition (contract awarded and final project delivered, but not realized due to conditions of political instability following the Chad war) for the Sebha Campus in Libya in 1972, by whose typological schemes are partly taken from those of the new central offices of the University of Basilicata built in Potenza, designed by the same author in 1990 – a rhythmically-metrically articulated “spinal” system of bridge-buildings, which in the intentions planning should have crossed the valley with the intention of connecting the historic city and the most recent services by foot, entering a space-gallery from the roof, reinterpreted as a modern variant and inspired by the cryptoporticos of the Roman imperial palaces, placing the university building as an indirect solution for an urban and territorial reorganization intervention. Barbera also built a school complex in Naples, within a larger area designed as a public park in Avellino a Tarsia in 1984, inserted in the wider system of about fifty interventions coordinated by himself, for the urban and environmental restructuring carried out in following the 1980 Irpinia earthquake, the Ventaglieri Park. The intervention anticipates a type of urban projects that integrate public functions and services for training, environmental and social requalification in a topographically articulated site, reconstructing the urban identity of a place with historical pre-existing structures; the project has received positive feedback from the inhabitants, as evidenced by the website of the Parco dei Ventaglieri association.

Another personality of a Roman designer who distinguished himself on the subject of the university building is Giuseppe Rebecchini; graduated with Quaroni on the subject of the University of Tor Vergata, he carried out some interventions in the following years, and also designed and built new buildings, extensions and renovations for the University of Udine, Florence, Bologna, of Ferrara, Foggia, Catanzaro.

Against the background of this set of interventions, often conceived on a broad territorial scale, there was the well-known Project 80, which had no implementation feedback, but was the latest political and technical elaboration conceived on a national scale, proposed by the governments of the center-left between 1969 and 1971, relating to the national economic program for the five-year period 1971-75.

Over the last twenty years, since the early 2000s, Paolo Portoghesi, Franco Purini, Laura Thermes and Raffaele Panella have contributed with various titles and responsibilities, the first for the urban project, the last for the architectural one – today in the responsibility of Orazio Carpenzano –, to the design of the Pietralata Campus (not yet built) of Sapienza University of Rome[5]. This experience represents the completion of a long series of studies and consultations that originated in the late 1980s with Diambra Gatti and Paola Coppola Pignatelli, students of Pasquale Carbonara, on behalf of Sapienza together with other colleagues of the DPAU Department, with the aim of giving a knowledge base for the transformation of university real estate assets and its adaptation to new educational and research needs.

This brief testimony, therefore, intended to document, considering the brevity of the discussion, how much the project theme of the schools and university campuses represented an experience of Roman architectural culture, in parallel with the political programs influenced, even conditioned, as well as by the new pedagogical and sociological principles, also and above all from the specific conditions of the urban form within which the interventions were carried out, collaborating together with the architecture of the residence and other services, to imprint the character of the places and determine the results in terms of urban quality, for a politically efficient and innovative idea of a public city.

Note

[1] Valle V. (1926) – Concorso per i progetti di quattro edifici scolastici a Roma. Architettura e Arti Decorative, May.

[2] Antonella Bonavita, Eccezionalità e ortodossie. The above-mentioned Guide lists 48 schools, 22 of which were opened between 1870 and 1900, 14 of which were built in former convents and existing buildings and 7 were newly built. Among the schools built in the first thirty years of the twentieth century in Rome the following ones stand out: Pilo Albertelli, Regina Margherita, Enrico Pestalozzi, Vittorino da Feltre, Regina Elena, Ruggero Bonghi, Edmondo De Amicis, Dante Alighieri, IV Novembre, Di Donato; they followed the new regulations: 1859 Casati Law, 1888 National Technical and Hygienic Institutions for the construction of school buildings and the new pedagogical indications implemented taking into account the specialisation of open spaces.

[3] https://www.itisgalilei.edu.it/it/home-ita/la-storia.html

[4] Giuseppe Terragni’s S. Elia kindergarten dates from 1936-37.

[5] Other school buildings by the same authors (Panella and Thermes) have been published in other contributions by the author, in particular in a volume of the DRACo doctorate, Il poligrafo.

Bibliography

BARBERA L. (2019) – La città radicale di Ludovico Quaroni. Gangemi, 58.
BONAVITA A. (2005) – “Eccezionalità e ortodossie”. In: Bonavita A., Remiddi G., Guida alle scuole del I° municipio, Il moderno attraverso Roma. Rome, 76-79.
CARBONARA P. (1947) – Edifici per l’istruzione, Scuole Materne, Elementari, Medie, Universitarie. Vallardi.
COPPOLA PIGNATELLI P., Mandolesi D. (1997) – L’architettura delle università. Cdp Editrice, Rome.
CICCONCELLI C. (1958) – “Scuole Materne Elementari e Secondarie”. In: Carbonara P., Architettura Pratica (Volume Terzo, Tomo Secondo). Composizione degli Edifici, Utet, 859.
CUPELLONI L. (2014) – Luigi Pellegrin Architetto prefabbricatore, 2014, PresST/letter, https://www.presstletter.com/2014/02/luigi-pellegrin-architetto-prefabbricatore-di-luciano-cupelloni/
DE CARLO G. (1968) – Pianificazione e disegno delle Università. Edizioni Universitarie italiane, Rome.
GUILLEN M. F. (2008) – The Taylorised beauty of of the Mechanical: Scientific Management and the Rise of Modernist Architecture. Princeton architectural Press.
LENCI S. (1963) – “I “Campus” scolastici come struttura della scuola per la città-territorio”. Quaderni del centro studi per l’edilizia scolastica, Nuova serie, 3, 28.
LENCI S. (1969) – “Due edifici scolastici realizzati con elementi prefabbricati in cemento armato nella zona di Roma”. Industria del Cemento, 4, 324-338,
MINNUCCI G. (1933) – “Scuola elementare in Roma, Arch. Ignazio Guidi”. L’Architettura, 1, 23-35.
SEVERINO C. G. (2019) – L’Esquilino a scuola. La Federico Di Donato di via Nino Bixio. Il Cielo sopra l’Esquilino, 32, 8; https://www.cielosopraesquilino.it/lesquilino-a-scuola-la-federico-di-donato-di-via-nino-bixio/; Severino is also author of. Esquilino 1870-1911 ...e nel centro del progettato quartiere una vastissima piazza..., Gangemi 2019.
VALLE C. (1926) – “Concorso per i progetti di quattro edifici scolastici a Roma”. Architettura e Arti Decorative, (May).