New Types/One Type. Complex Buildings and new architectural typologies for the definition of public space in new rural settlements of Agro Pontino

Emanuela Margione



Introduction

What we know today as Agro Pontino is a human-made rural landscape that came to life through the Bonifica Integrale project of the Pontine Marshes developed by Arrigo Serpieri in 1923. New technological inventions in mechanics, hydraulics, and agronomy, as well as the new architectural, urban planning and social theories that arose with the Modern Movement, were experimentally applied within this territorial area. Here, an area of more than 1,000 square kilometres was reclaimed and newly designed from the urbanistic and architectural point of view throughout the construction of five New Towns strictly connected with the surrounding net of around 3,000 poderi and sixteen rural villages called Borghi Rurali. [Fig. 1] [Fig. 2] In this scenario, the urban design assumes a pivotal role in testing a new relationship between city and countryside and in defining scenographically a new type of settlement capable of triggering those effects of place[1] necessary for consolidating the identity of a new heterogeneous colonial community.

The experiments that started within the territorial modernisation processes also invaded the field of architectural composition. The Agro Pontino thus reveals itself as a fertile ground for testing those new architectural typologies that arose at the beginning of the Twentieth Century and are strictly connected with the surrounding urban environment. Among them: are Casa del Balilla, Casa del Fascio, Dopolavoro, Casa della Madre e del Bambino or the Casa del Contadino.

Not surprisingly, one of the most intriguing aspects of the Pontine case study is the analogism between the experimentation undertaken at different scales. Indeed, as a new urban-rural settlement typology starts to be defined, the compositional matrix of a new building type, recognisable in all the above structures, comes into being.

The relationship between the urban context and the experimental promiscuity between antithetical spaces characterises this spatial matrix. These two aspects would seem to make this new architectural typology the precursor of what today we call a Complex Building, a building whose fundamental features remain yet to be investigated.

For this reason, in the following paragraphs, by describing the role of architecture in defining Agro Pontino New Towns' urban space and outlining the results of the architectural experiments undertaken in this context, an attempt will be made to explore the essential characteristics of this complex typology.

The role of architecture in defining the urban and scenography space in new rural settlements of Agro Pontino.

As mentioned in the introduction, five New Towns were built in Agro Pontino: Littoria, today Latina, built in less than six months in 1932; Sabaudia, constructed in eight months between 1933 and 1934; Pontinia, built in twelve months between 1934 and 1935; Aprilia built in eighteen months between 1936 and 1937; Pomezia built in the same timeframe of Aprilia between 1938 and 1939. Moreover, from 1932 to 1936, the triad City-Villages-Farmstead – Città-Borgo-Podere[2] – was developed by creating sixteen Rural Villages and about three thousand new rural houses, poderi, directly settled on the plot of cultivable land.

This list, which only seemingly sequences superfluous and redundant data, highlights a fundamental aspect that characterises the Pontine experience: the time component. It should not be forgotten indeed that the New Towns of Agro Pontino – and with them, the entire system of the modernist rural landscape – although built with the aim of giving life to the new dis-urban prototype promoted by the 1920’s Ruralizing Urbanism policy[3], were built from scratch in a few months[4], thus without being subjected to that typical process of slow, and partly spontaneous, growth that characterizes most European urban settlements. Nevertheless, while this time constraint meant hastening the stages of a complex experimental process, such as building a new town, it also made it necessary to entrust the architects involved in drawing the urban plan with the design of each architectural artefact. The New Towns of Agro Pontino can thus be considered actual Author Cities (Muntoni, 2006) in which the relationship between urban morphology and the architectural composition becomes inseparable.

However, this relationship does not remain constant within the different projects. Instead, it is declined from time to time to support and field-test the new urban planning theories called into question within the national and international debate. This aspect becomes evident by looking at the case studies of Littoria and Sabaudia, where the strong relationship between architectural and urban design becomes explicit.

In Littoria, designed by the architect Oriolo Frezzotti, the role of architecture is twofold. On the one hand, through theatricalising the traditional Italian rural settlement, architecture becomes the scenic apparatus to showcase the modern rural lifestyle. On the other, architecture becomes the tool through which the architect gives volume to an urban form specifically designed to match the radial pattern generated by infrastructural pre-existences with Giovannoni’s theories on modern urban planning and traffic regulation.

The strategy employed by Oriolo Frezzotti becomes evident when looking at the first New Town’s central core, which is only apparently configured as a single large rectangular square. By carefully observing the relationship between the urban enclave and the public architectures that circumscribe its perimeter, it is, in fact, possible to recognise two distinct systems. These two systems are characterised by equally different compositional rules aimed at regularising the pre-existing street layouts from a geometric, strategic and scenic point of view.

In order to reinforce these rules, Oriolo Frezzotti designs the public facilities from the extrusion of the block’s perimeter, thereby giving the architecture a paradoxical two-dimensional connotation in which the meticulous design of the scenographic façade corresponds only partially to the planimetric distribution. Thus, it would seem possible to say that in Littoria, it is not the architectural typology experimentation that determines the plans of public buildings but rather the need to highlight the modernist features of the so-called Urbanistica Rurale.

Three examples best describe this aspect: the City Hall, the Hotel, and the Finance Palace. The first two examples, replicating the geometric structure of the infrastructural axes, are defined by the same floor plan mirrored on the median of the urban system to which they belong. In addition, the City Hall tower is not grafted to the centre of the main facade of the building but is slightly offset to highlight and reinforce the urban system's geometry. The Finance Palace, instead, is designed in the second urban system in which the pre-existing street axes draw an orthogonal pattern. For this reason, Oriolo Frezzotti designs a building consisting of a central body concluding the main square urban scene and two orthogonal side arms. [Fig. 3]

The second helpful example for understanding the role of architecture in defining the modern urban space and the modernist rural landscape is that of the city of Sabaudia, realised in 1934 based on a project by Luigi Piccinato, Gino Cancellotti, Eugenio Muntuori, and Alfredo Scalpelli. Here the architecture, besides playing the same role it plays in the city of Littoria - albeit with quite different figurative connotations - becomes the instrument for experimenting with a new relationship between architecture, urban structure and rural landscape:

Sabaudia has the virtue of fully reflecting one of the most typical and noteworthy features of the modern architectural discipline, which is to design how buildings relate to the environment even before studying their architectural typology. In other words, it is a process of intending the environment as a unitary entity in which the characteristics of social life are expressed with the greatest intensity and naturalness, and so understand the individual building as an inseparable part of the whole. (Piacentini, 1934)

As can be understood from Marcello Piacentini’s words, in Sabaudia, landscape, urban design and architecture are mutually embedded. They work together in the making of a unique scenic space where «the ensemble of buildings is integrated into the surrounding nature: the masses never imprison hermetic spaces like backdrops, they are expertly composed so that, through the wide fractures, the landscape penetrates everywhere» (Piacentini, 1934). In Sabaudia, therefore, architecture discerns its third dimension from its visual relationship with the elements of the surrounding landscape. In this way, the scenic space is no longer characterised by only two-dimensional facades but by three-dimensional volumes whose extension is defined from the territorial scale.

Not surprisingly, most of the drawings made by the authors at the design stage are human-height perspectives in which the sequence of solids and voids is rhythmically defined by the compositional cooperation between the architecture, the horizontal and vertical elements of the in-natural landscape, and the urban enclosures for public activities.

As already anticipated, the experimentation undertaken in Agro Pontino is not only of an urban-territorial nature. Indeed, it is particularly intriguing to observe those experimental processes engaged at the architectural scale. Looking carefully at the plans of the New Towns, it is possible to identify some exceptions that interrupt the scenic building curtain. These exceptions are the aforementioned new building typologies which, by prioritising spatial experimentation, desert the general strategy and compositionally reinvent their relationship with the city.

Genealogy of a new architectural typology. Complex Building in Agro Pontino.

With the introduction of the eight-hour workday – regulated in Italy by the R.D.L of March 15, 1923 – the need to endow cities with new urban polarities designed to organize workers’ leisure time arose. In this scenario, new architectural typologies with an explicit educational role come to be defined through the production of new manuals or the enactment of design competitions.

Once again, the New Towns of Agro Pontino become a proper testing ground to understand the role of new architectural typologies in activating the public sphere. More specifically, were tested typologies such as the Casa del Balilla, the Casa del Fascio and the Dopolavoro, whose purpose was to provide some essential services for the organization of the settlers' leisure time. Other typologies were the Casa della Madre e del Bambino, the Casa dei Mutilati e Invalidi, or the Casa del Contadino, configured as real neighbourhood social and welfare centres.

A careful analysis of these experimental typologies revealed the existence of a single original spatial matrix – a sort of architectural genotype – consisting of three primary elements. The first, and also the more extensive, is the multi-purpose hall. The second and third elements are instead the room of major and minor order dimensioned respectively ½ or ¼ the size of the large multi-purpose hall.

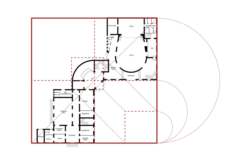
The first building in which this original matrix can be traced is the Casa del Balilla in Littoria, designed by Oriolo Frezzotti in 1932 under the direction of Renato Ricci[5]. The project - following the Prototipo di Casa del Balilla con Palestra No. VIII, published by Enrico del Debbio in the manual Opera Nazionale Balilla: Progetti di Costruzioni. Balilla houses, gyms, sports fields, swimming pools, etc. [Fig. 4] - is configured through a symmetrical central plan, whose height and larger module are dictated by the size of the multi-purpose hall used as a gymnasium and assembly hall. On either side of this central core, determining the maximum extension of the building, the two major classrooms for locker rooms and fencing hall are placed. Finally, the smaller classrooms, used for secondary services and vertical connections, are all organized around a gigantic semicircular atrium whose dimensions compositionally balance the weight of the multi-purpose hall. From this atrium, it is also possible to reach the upper floor gallery facing the gymnasium, a particularly interesting expedient given that it explicit the architects’ desire to make this new typology a kind of Theatre of Sport. [Fig.5]

Equally engaging are the projects for the Three Casa del Fascio Prototypes for the Villages of the Agro Pontino[6] designed in 1935 by Alfredo Pappalardo following the 1932 National Competition for the Design of the Casa del Fascio Prototype for Rural, Inland and Frontier Villages. The original spatial matrix is adapted in these three proposals to accommodate public services deemed essential within the new modernist rural settlements. [Fig. 6] [Fig. 7] [Fig. 8] These include party and labour union envoy spaces, a doctor’s office, a counselling office, a small emergency room, and spaces for educational and recreational activities such as a library, a small playroom, a dance hall, and a gymnasium. Figuratively, the buildings clearly look to the case of Littoria by absorbing either its plan layout or its capacity to give scenic substance to the urban environment.

As the experiments at the urban scale progressed and the new Rural City model was defined, these new architectural typologies were gradually subsumed into a single building cluster which, without contradicting the individual parts of the spatial matrix, was designed as a concrete urban machine. This machine-building, constituting itself of adaptable spaces accommodating welfare and leisure facilities, was embedded within the urban grid with the role of a social condenser.

An example of such experimentation is the one in Sabaudia where the Dopolavoro, the Trade Unions, the Casa del Fascio and the Cinema-Theater with restaurant are aggregated within interdependent volumes. The solution of continuity between these volumes is provided by the linear sequence of commercial and residential porched spaces distributed in two bodies orthogonal to each other. The general plan layout is thus organized to meet the needs dictated by the construction of the urban scene where, as already seen, the spatial volumes of the rural landscape are also protagonists. More specifically, the Sabaudia example cooperates in defining the scenic perspective by breaking the orthogonality of the block and widening the optical cone facing the municipal tower designed as the monumental head of the Migliara 53[7]. [Fig. 9]

The entire building thus seems shaped through excavating a solid mass whose proportions arise from the territorial scale.

The resulting voids – having the same compositional weight and sculptural quality as the solids – give rise to a kind of heterotopic citadel on whose walls, having become inhabitable, are attached the exceptional elements of the Dopolavoro, the Cinema-Theater and the public square. This last one was intended as an extension of the building’s spaces and designed as an open-air gymnasium. [Fig. 10] [Fig. 11]

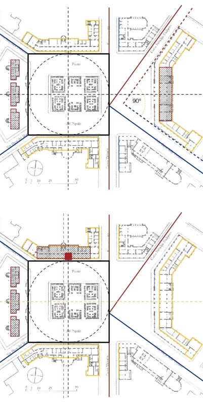
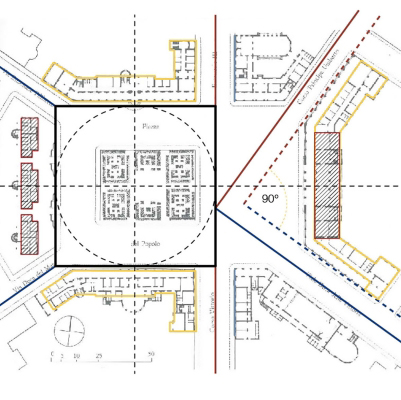
A second illustrative case can be the one realised in Pontinia, the third New Town of the Agro Pontino[8]. Here the building ensemble, not failing to emphasise its belonging to a larger scale system, is built on the diagonal of a square whose side is deduced from the main facade of the Town Hall. [Fig. 12] [Fig.13]. Within this square, two almost symmetrical bodies accommodate the spaces for the Dopolavoro and the Cinema-Theater. These are confluent rooms in which it is possible, once again, to recognise the original spatial matrix.

Experiments on this peculiar typology are also undertaken within Rural Villages where, if possible, the role of the social condenser becomes even more evident. There are two key case studies: the twin buildings made for the villages of Littoria Scalo and Borgo S. Donato; the building designed for Borgo Hermada.

The building made for Littoria Scalo and Borgo San Donato is defined by a strongly symmetrical layout consisting of three autonomous blocks in which the original matrix becomes evident. The central body – anticipated by a portico – is the multipurpose hall hosting the activities of the Dopolavoro, such as the Cinema-Theater, the Dancing Room, the Gymnasium and the Assembly Hall. In the two side volumes are built the major rooms housing respectively the Post Office and the Casa del Fascio. Finally, the minor rooms connecting the two volumes are organised to host the service spaces. [Fig. 14].

The second example is that of Borgo Hermada. [Fig. 15] [Fig. 16] The building, now profoundly transformed and almost entirely unrecognisable, was defined by three autonomous but contiguous volumes. First, two heads resolved by the multipurpose hall of the Dopolavoro and the major-order rooms in which the Post Office and the Syndicate offices were located. Second, a connecting linear body built by the sequence of minor rooms designed to house the cultural spaces of the Opera Nazionale Balilla and the welfare offices for war veterans.

The examples reported so far share two essential characteristics: the interpenetration of antithetical spaces such as interior and exterior, public and private, served and servant, and the overlapping, even temporal, of the activity program. For example, as already described, in Sabaudia, the public square is designed as an authentic extension of the building. At the same time, in Pontinia, the promiscuity of spaces in plan and section makes the hierarchical distinction between the Cinema-Theater and the Dopolavoro imperceptible, if not completely dissolved.

Today it is possible to find these same experimental features within a new building typology that recently returned under the spotlight: the Complex Building.

New Types, One Type. Learning from the past to anticipate the future.

Complex Buildings have been reentered within the scholarly-academic debate thanks to three issues of the A+T Journal published between 2017 and 2018. In these three volumes, Aurora Fernández Per introduces the topic of Complex Buildings starting from the definition of social condenser, namely the spatial response to the state’s need to organise, in controlled environments, those recreational-cultural and socio-welfare activities that were born at the beginning of the twentieth century. Also, according to the authors of the A+T Journal, the genesis of this particular typology can be traced back to the Soviet experience of the 1920s and the contemporaneous American season of Hybrid Buildings. These buildings, opening with solutions of spatial continuity towards the city, encouraged a renewed use of public space capable of densifying the relationships between heterogeneous community members (Fernández Per, 2017).

From the issues described in the previous paragraphs and the writings published in the A+T Journal, it would seem possible to individuate some parallelism between the two experiences of the Soviet and American buildings and the experiments undertaken in Agro Pontino. This parallelism is not only temporal but also - and perhaps above all - spatial and social. Indeed, the complex typology of the Agro Pontino is also experienced by the state’s desire to control and organise the settlers' leisure time. Moreover, it presents a similar architectural spatiality that breaks into the urban scale by transforming the public square – with a perimeter defined by these same buildings – into an open-air room.

The typological parallelism is then reinforced by considering more recent literature. According to Kerstin Sailer, for example, Complex Buildings can be defined as complex systems within which multiple activities can coexist and whose confluence of spaces is liable to generate a range of new spontaneous collective behaviours. It is, therefore, not surprising that this typology, though still unnamed, has been tested in Agro Pontino to activate the public sphere in newly built contexts.

Despite these recent publications, the theme of Complex Buildings - so far widely applied, especially in urban regeneration projects - has been investigated superficially from the genealogical, spatial, and compositional points of view. Therefore, a critical reinterpretation of case studies less mentioned within architectural manuals – such as that of Agro Pontino public buildings – could make significant contributions to the phenomenological understanding of Complex Buildings and the definition of their possible future applications.

Moreover, the identification of similarities between the Pontine experiments and the most current architectural typologies made it possible to observe the process of modernisation of the rural landscape through a lens focusing on the compositional relationship between architecture and urban design. The result of such observation is overcoming the interpretive bias that often affects case studies such as the Agro Pontino in which the political background remains a heavy semantic boulder.

Notes

[1] See the Kenneth Frampton editorials for the fourth number of the Opposition Journal published in 1974

[2] Luigi Piccinato gives the theoretical definition of the Pontine territorial system in his article “The Urban Significance of Sabaudia”, written for the Italian journal Urbanistica in 1934. The text still represents one of the milestones in this case study's literature.

[3] See Riccardo Mariani's essay Fascismo e città nuove published for Feltrinelli in 1976 and Alberto Mioni's text Urbanistica fascista. Ricerche sulle città e il territorio e sulle politiche urbane in Italia tra le due guerre published for Franco angeli in 1980. “Ruralizing Urbanism” is the literal translation of the Italian term “Urbanistica Ruralizzatrice”.

[4] Except for Aprilia and Pomezia, established when Italy was already stricken by the sanctions imposed after the Ethiopian War

[5] Renato Ricci founded the Opera Nazionale Balilla on April 3, 1926, to promote physical exercise in the educational programs of first and second-grade schools. In those years, sports became the tool through which the Fascist regime attempted to shape Italian youth to generate the so-called Italiano-Nuovo. The first national project for a Casa del Balilla was entrusted by Ricci to Del Debbio in 1927 to build an Academy where physical education teachers could be trained. Only a year later, Ricci commissioned Del Debbio to produce a handbook in which to highlight «[that] typological and formal identity capable of compositionally restoring the values of the Opera Nazionale Balilla» (Ricci, 1928). Del Debbio's first handbook provides the reader with a series of architectural prototypes capable of adapting to all the needs of the different national settlements.

[6] The blueprints are kept at the Central State Archives, Opera Nazionale Combattenti Project Fund, envelope 54 app. 111.

[7]The so-called Migliare are part of the infrastructural network of the Agro Pontino and vertically divide the rural area. Being perpendicular to the Via Appia, a Roman road connecting Cisterna and Terracina, they allowed mobility from the Lepini Mountains to the sea.

[8] The story related to the third New Town is peculiar. Due to the media interest aroused around the previous Sabaudia experience, the leading figures in the academic and professional worlds demand a new design competition to test the most advanced urban planning theories.

However, that was not all. In search of a territorial laboratory to test the Ferme Radieuse theories, Le Corbusier tries to be entrusted with the project by acquaintances close to the world of politics and by sending direct letters to the Head of Government.

Such media and academic pressures made it necessary to entrust the project confidentially and personally to Engineer Pappalardo, who was asked to keep the location secret (Mariani, 1976). When the Pontinia project was published in the leading architectural and urban planning journals of the 1930s, it was an absolute scandal. In Quadrante, Bontempelli and Bardi wrote in the image of the architectural project, «On the hopes aroused by the architecture of Sabaudia, comes cool disappointment in the architecture of Pontinia, which we reproduce in some not brilliant essays» (Bontempelli, Bardi, 1934). Decisive was also the condemnation of Giuseppe Pagano. He wrote in his usual mordant style: «It is necessary to remember that the premises of the municipality of Pontinia [...] were obvious: a rural municipality conceived and organized for a community of farmers. [...] With these obvious premises, the sensibility of even a mediocre architect trained in his craft could not fail. [...] It was [at least] a matter of understanding the pre-existing road layouts by that naive urban planning shrewdness that Italian villages offer in thousands of examples, a matter of avoiding and betrayal, like the plague, decorative rhetoric, oddities, vulgarities. [...] I call to witness the illustrations of the projects, and I believe I am doing ungrateful but very fair work by accusing those functionaries of artistic and technical incapacity. A crime that is all the more serious after the creation of Sabaudia, alive modern and beautiful. » (Pagano, 1935)

References

BOCCINI F. e CICCOZZI E. (2007) – Opera nazionale per i Combattenti. Progetti. Pubblicazioni degli Archivi di Stato, Roma.

CILLIERS P. (1998) – Complexity and Postmodernism. Understanding complex systems. Routledge, Londra.

DEL DEBBIO E. (1928) – Progetti di Costruzioni. Case del Balilla, palestre, campi sportivi. Opera Nazionale Balilla, Roma.

EMPSON W. (1949) – Seven types of Ambiguity. Chatto and Windus, Londra.

FERNÁNDEZ PER A. (2017) – “The complexity of continuous presence”. A+T, 50-81.

FERNÁNDEZ PER A. e MOZAS, J. (2017) – “Complex Buildings. Generators, linkers, mixers & storytellers”. A+T, 48, 82-96.

FERNÁNDEZ PER A. e MOZAS, J. (2017) – “Complex Buildings. Learning systems”. A+T, 49, 4-32.

FERNÁNDEZ PER A. e MOZAS, J. (2018) – “Complex Buildings. Dwelling Mixers”. A+T, 50, 4-76.

FOUCAULT M. (1981) – The order of Discourse, in Untying the text: A post-structuralist Reader. Routledge & Kegan Paul Ltd, Boston Mass.

FRAMPTON K. (1974) – “On reading Heidegger”. Oppositions, 4, 1-4.

FREZZOTTI O. e PASQUALINUCCI O. (1937) – “Relazione al P.R. di Littoria”, Urbanistica Rurale dell’E.F. nell’Agro Pontino. Primo Congresso Nazionale di Urbanistica. 5-7 aprile. Edizioni Amministrazione Provinciale di Littoria, Littoria.

GIOVANNONI G. (1932) – Vecchie città ed Edilizia Nuova. Utet, Torino.

HILLIER B. (1996-2007) – Space is the machine. Press Syndicate of the University of Cambridge, Cambridge.

IANNELLA F. (1975) – Il territorio Pontino e la fondazione di Sabaudia. Albigraf, Roma

MARIANI R. (1976) – Fascismo e città nuove. Feltrinelli, Milano.

MOSCATI A. (a cura di) (2014) – Michel Focault. Utopie Eterotopie. Edizioni Cronopio, Napoli.

MUNTONI A. (2004) – “Architetti e archeologi a Roma”. In G. Ciucci e G. Muratore (a cura di), Storia dell'architettura italiana. Il primo Novecento. Electa, Milano.

MUNTONI A. (2006) – “Architettura e urbanistica nelle Città dell’Agro Pontino”. Architetturacittà, 26-35.

PAGANO G. (1935) – “Architettura nazionale”. Casabella, 85, 2-7

PIACENTINI M. (1934) – “Sabaudia. Comunicato ufficiale”. Architettura. Rivista del sindacato nazionale fascista architetti, 321-323.

PICCINATO L. (1932) – “Città Lineari”. Architettura. Rivista del sindacato nazionale fascista architetti, 33-37.

PICCINATO L. (1934) – “Il significato urbanistico di Sabaudia”. Urbanistica, 10-24.

RICCI R. (1928) – “Prefazione”. In Opera Nazionale Balilla: Progetti di Costruzioni. Case del Balilla, palestre, campi sportivi, piscine ecc. Edizioni O.N.B., Roma.

SAILER K. (2016) – “Understanding Complex Buildings. Space Syntax as a theory and method to unpack spatial networks and social processes”. Lecture at the CASA Seminars. London: Bartlett School of Architecture, UCL.

SIMON H. A. (1962) – “The Architecture of Complexity”. Proceedings of the American Philosophical Society, 106(6), 467–482.

TODARO U. (1940) – “L’edilizia urbana e rurale”. Agro Pontino, 67-96.

VENTURI R. (1966-1977) – Complexity and contradiction in architecture. Museum of Modern Art-4, New York.

VIDLER A. (1977) – “The third typology”. Oppositions, 7, 1-40.